
21044 Cavaria, VA, Italy
Residenziale - Appartamento
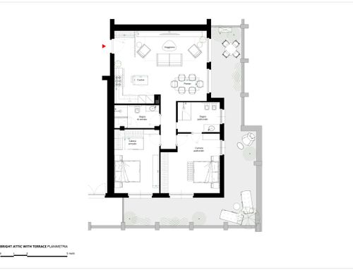
Descrizione
CARATTERISTICHE DELLA CASA
- Casa ben esposta (est/sud) e luminosa, con travi a vista sbiancate.
- Il corridoio ha tre porte raso muro (porta bagno di servizio e porte per camere)
- La porta tra corridoio e bagno padronale è stata sostituita da una lastra di vetro satinato a tutta altezza che riceve luce dal bagno.
STILE (per tutti i locali e il terrazzo)
- Moderno
- Essenziale
- Naturale
VINCOLI
- Parquet in tutta la casa (vedi foto campione: Bassano Parquet-Cambridge Natural) eccetto per il bagno padronale
- Parquet per bagno padronale da decidere
- Travi a vista sbiancate
- Suddivisione spazi: non è possibile fare modifiche
- Posizione sanitari non modificabile
OPZIONI POSSIBILI
- Piante/verde sì ma non troppo ingombrante
- Pareti (una o più) con colori diversi
- Divisori (se necessari) a listelli legno
- Arte moderna sulle pareti (formato medio grande)
- Tende interne: ok se necessarie, con funzione di frangisole, ma non c'è un problema di privacy
- Stile tende: lineare ed essenziale; facilmente apribili.
- Terrazzo: ok pavimentazione con listoni Gres effetto legno chiaro o composito di legno (no vero legno)
- Porte raso muro: si possono differenziare con il colore (per farle sembrare a tutta altezza?)
DA EVITARE
- Minimalismo freddo
- Stile industriale
- Romanticismi e fronzoli
- Divano ad angolo
- Lampadari e punti luce con design bizzarro
- Carte da parati di qualunque genere
- Pareti attrezzate
- Decorazioni su porte e pareti
- Librerie verticali con libri impilati
- No vero legno sul Terrazzo
________________________________________________
CONCEPT DEI VARI SPAZI
Ingresso
- Deve essere ben definito ma non troppo ristretto
- Mobili chiusi per cappotti ecc
Living con cucina a vista
- Spazio per relax conversazione lettura, essenziale e moderno, ma intimo e accogliente.
- Deve esserci una libreria di media grandezza (oppure mensole per libri).
- Ovviamente la TV ci deve essere ma senza forzare il progetto: non mi piacciono le case che sembrano progettate attorno a TV enormi.
- No parete attrezzata.
- Non fondamentale: piccolo spazio studio? (non credo che ci sia spazio).
- Cucina moderna e funzionale ben integrata, ma non dovrà invadere lo spazio del living.
Corridoio
- Ci sono tre porte raso muro e una lastra fissa di vetro satinato a tutta altezza.
- Valutare se differenziare porte rispetto al muro con un colore.
- Come illuminare?
Camera da letto
- Come per tutta la casa vale lo stile essenziale.
- Possibile colorare le pareti per creare uno spazio più intimo (la camera riceve molta luce)
Camera piccola/studio
- E’ uno spazio che non ha ancora una destinazione d’uso definita.
- Mi piacerebbe uno spazio molto personale per relax
- Angolo studio/lavoro
- Secondo letto per ospiti (magari divano o poltrona letto)
- Secondo armadio? (oltre a quello in camera)
- Mobile ripostiglio/contenitore alto?
Bagno Padronale
- Parquet preferibilmente più chiaro di quello messo in tutta la casa
- Rivestimenti muro in “Pastellone” (simile alla resina ma naturale), colore da definire
- Posizione sanitari non modificabile.
Bagno di servizio
- Non è da studiare
Terrazzo
- Prevedere piccola vasca
- Ricco di verde ma in modo ordinato.
- Tavolo e sedie per esterni in zona living.
- Pochi arredi e complementi in zona vasca.
- Pavimentazione a listoni gres o composito tendente al chiaro.
Nota: dimensione e forma della vasca sì possono modificare.
Richiedo Rendering per: living e cucina / camera /bagno padronale / terrazzo
____________________________________________________________________________
____________________________________________________________________________
ENGLHIS VERSION
BASIC INFORMATION
- Well exposed (east / south) and bright, with white exposed beams.
- The corridor has three doors flush with the wall (bathroom door and bedroom doors)
- Between the corridor and the master bathroom a full-height fixed opaque glass is located.
STYLE (for all rooms and the Terrace)
- Modern
- Essential
- Natural
CONSTRAINTS
- All floors have the same Parquet (see sample photo: Bassano Parquet-Cambridge Natural), except master bathroom
- Parquet for master bathroom to be defined
- White painted Beams (see photo example)
- Subdivision of room: not possibile to change
- Bathroom fixtures position: not possibile to change
OPTIONS
- Plants/green yes but not too bulky
- Walls (one or more) with different colors
- Dividers (if necessary) with wooden strips
- Modern art on the walls
- Internal curtain: ok if necessary with sunshades function, but there isn't privacy problem. Curtain style: linear and essential, easy to open.
- Terrace: Ok flooring with Gres planks in light wood effect or wood composite (no real wood)
TO AVOID
- Cool minimalism
- Industrial style
- Romance and frills
- Corner sofa
- Chandeliers and light points with whimsical design
- Wallpapers (any kind)
- Equipped walls
- Decorations on doors and walls
- Vertical bookcases
- No real wood on the Terrace
________________________________________________
CONCEPT
Entrance
- It must be well defined
- Closed furniture for coats etc.
Living room with kitchen
- Space for relaxing conversation, reading, essential and modern, but intimate and welcoming.
- There must be a medium-sized library
- TV must be there but avoiding forcing the project for this: I don't like houses designed around huge TV.
- No equipped wall.
- Not essential: small study space?
- Modern and functional kitchen well integrated into the space but not too intrusive
Aisle
- Evaluate whether to differentiate doors with respect to the wall with a color.
- How to light up?
Bedroom
- Essential style
- Color on the wall to create a more intimate space (there is a lot of light)
- Useful Wardrobe
Small room / study
- It is a space that does not yet have a defined intended use.
- I would like a relaxing personal space
- Study / work corner
- Second bed for guests (maybe sofa or armchair bed)
- Second wardrobe? (in addition to the one in the room)
- High cabinet / storage unit?
Master bathroom
- Fairly light Parquet
- Wall finishing in “Pastellone”(similar to resin but natural); color to be defined
- Sanitary position cannot be changed
Service bathroom
- Project not required
Terrace
- Place a small tub
- Rich in green but in an orderly way.
- Outdoor table and chairs in the living area
- Few furnishings and accessories in the tub area
- Flooring with stoneware or composite planks tending to light.
Note: tub dimension and shape can be changed.
Rendering request: living room and kitchen / bedroom / master bathroom / terrace
____________________________________________________________________________
____________________________________________________________________________
SPA
CARACTERÍSTICAS DE LA CASA
- Vivienda bien expuesta (este/sur) y luminosa, con vigas vistas blanqueadas.
- El corredor tiene tres puertas al ras de la pared (puerta del baño y puertas del dormitorio)
- Se ha sustituido la puerta entre el pasillo y el baño principal por una placa de vidrio esmerilado de altura completa que recibe la luz del baño.
ESTILO (para todas las habitaciones y la terraza)
- Moderno
- Esencial
- Naturales
RESTRICCIONES
- Parquet en toda la casa (ver foto de muestra: Bassano Parquet-Cambridge Natural) excepto el baño principal
- Parquet para baño principal a decidir
- Vigas vistas blanqueadas
- Subdivisión de espacios: no es posible realizar modificaciones
- La posición sanitaria no se puede cambiar.
OPCIONES POSIBLES
- Plantas/verdes si pero no demasiado voluminosas
- Paredes (una o más) con diferentes colores
- Separadores (si es necesario) con listones de madera
- Arte moderno en las paredes (mediano a gran formato)
- Persianas internas: bien si es necesario, con función de persiana, pero no hay problema de privacidad
- Estilo de las cortinas: lineal y esencial; fácil de abrir.
- Terraza: suelo ok con lamas de gres claro efecto madera o composite de madera (sin madera real)
- Puertas a ras de pared: ¿se pueden diferenciar por color (para que parezcan de altura completa?)
PARA EVITAR
- Minimalismo fresco
- Estilo industrial
- Romance y florituras
- Sofá de esquina
- Candelabros y puntos de luz con un diseño extraño
- Fondos de pantalla de cualquier tipo
- Paredes equipadas
- Decoraciones en puertas y paredes
- Librerías verticales con libros apilados
- No hay madera real en la terraza.
________________________________________________
CONCEPTO DE LOS VARIOS ESPACIOS
Entrada
- Debe estar bien definido pero no demasiado estrecho
- Mueble cerrado para abrigos etc.
Salón con cocina abierta
- Espacio de lectura conversacional relajante, esencial y moderno, pero íntimo y acogedor.
- Debe haber una librería (o estanterías) de tamaño mediano.
- Obviamente la tele tiene que estar ahí pero sin forzar el proyecto: no me gustan las casas que parecen estar diseñadas alrededor de enormes teles.
- Sin pared equipada.
- No esencial: ¿pequeño espacio de estudio? (No creo que haya sitio).
- Cocina moderna y funcional bien integrada, pero que no invada el espacio habitable.
Pasillo
- Hay tres puertas enrasadas a la pared y una hoja fija de altura completa de vidrio esmerilado.
- Evaluar si diferenciar las puertas con respecto a la pared con un color.
- ¿Cómo encender?
habitación
- En cuanto a toda la casa, el estilo esencial es válido.
- Posibilidad de colorear las paredes para crear un espacio más íntimo (la habitación recibe mucha luz)
pequeña habitación / estudio
- Es un espacio que aún no tiene un uso previsto definido.
- Me gustaría un espacio muy personal para relajarme
- Rincón de estudio/trabajo
- Segunda cama para invitados (quizás sofá o sillón cama)
- ¿Segundo armario? (además de la de la habitación)
- ¿Mueble alto / unidad de almacenamiento?
Baño principal
- Parquet preferiblemente más claro que el colocado en toda la casa
- Revestimientos de paredes en "Pastellone" (similar a la resina pero natural), color a definir
- La posición sanitaria no se puede cambiar.
baño de servicio
- No es para estudiar
Terraza
- Proporcione una tina pequeña
- Rico en verde pero de forma ordenada.
- Mesa y sillas de exterior en el salón.
- Pocos muebles y accesorios en el área de la tina.
- Pavimentos de gres o lamas mixtas con tendencia a la luz.
Nota: el tamaño y la forma de la bañera se pueden cambiar.
Requiero Rendering para: sala de estar / dormitorio con baño principal / terraza