Campo nell'Elba, LI, Italia
Residenziale - Villa
Con questo progetto ho cercato di rappresentare al meglio le vostre richieste.
PIANTA PIANO RIALZATO
PROPOSTA: In relazione a quanto chiede, ho apportato delle piccole modifiche al progetto che ha inserito nelle risorse. Nella tavola demolizione e ricostruzioni si dovrebbe percepire l ‘idea progettuale, per definire meglio gli spazi è stato necessario modificare alcune aperture nelle murature portanti.
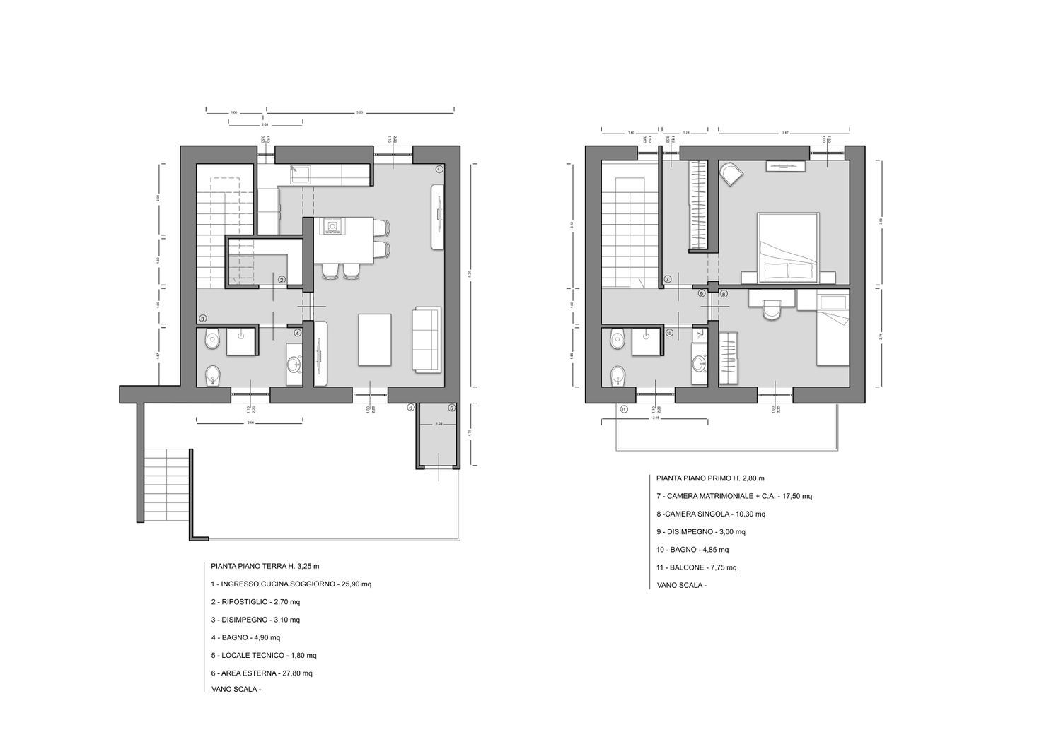
PIANO TERRA: Dall’ingresso si accede ad un grande open space circa 26,00 mq, a destra dello stesso vi è una grande cucina a vista. Nel piano sono presenti un bagno , un ripostiglio e il vano scale cui si accede al piano superiore. E’ stato necessario ingrandire l’apertura sulla zona giorno con cui si può accedere direttamente nel terrazzo. Le rifiniture per questo bilocale sono principalmente pavimento e rivestimenti in gres, la tinteggiatura bianca.
PIANO PRIMO: Dal vano scale si accede ad un disimpegno che conduce al bagno, alla camera singola ed alla camera matrimoniale con cabina armadio. E’ stato necessario ridefinire l’infisso in corrispondenza della scala e della camera da letto. Dal bagno e dalla cameretta si può accedere al terrazzo. Le rifiniture per questo bilocale sono principalmente pavimento e rivestimenti in gres, la tinteggiatura bianca.
Nella zona giorno è prevista una zona penisola