
Campo nell'Elba, LI, Italia
Residenziale - Villa
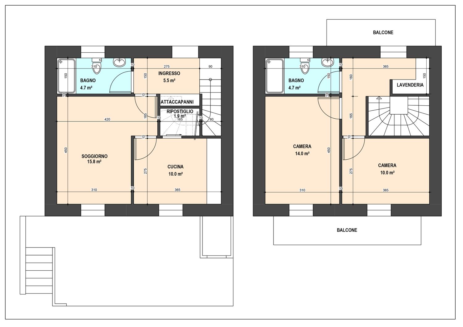
Nell'ingresso si trovano un armadio nel sottoscala e un bagno con finestra che si apre sull'esterno. La cucina è separata dalla zona giorno, ma è possibile rimuovere una parete per creare una cucina a vista, se si preferisce. Una dispensa nel sottoscala è accessibile dalla cucina.
Al piano superiore, un bagno di pari dimensioni si trova direttamente sopra il bagno del piano inferiore. Una zona lavanderia si trova vicino al balcone. E, naturalmente, due camere da letto, di cui una spaziosa.