
Campo nell'Elba, LI, Italia
Residenziale - Villa
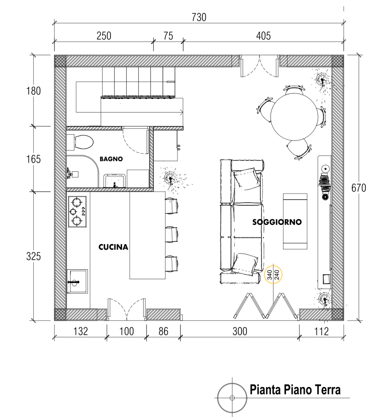
Ciao,
ecco il concept di design che propongo.
Cerco di mantenere la posizione attuale del bagno, così da evitare modifiche alla struttura dell’edificio. Nella zona living ho previsto un’apertura più ampia (se consentito) per rendere l’ambiente più arioso. Ho eliminato il piccolo ripostiglio accanto alla cucina per ottenere uno spazio più ampio e funzionale.
La posizione del bagno rimane invariata, perché spostarlo richiederebbe un investimento piuttosto elevato. In futuro, se necessario, sarà sufficiente rinnovarlo dal sisi estetico per renderlo più moderno.
Per la camera da letto, ho seguito le vostre richieste collocandola al piano superiore. È possibile che alcune porte e finestre debbano essere ricollocate per adattarsi al nuovo layout. Ho inoltre ottimizzato gli spazi del secondo piano per ricavare la zona notte e l’area lavanderia.
Per quanto riguarda la scala, consiglio di trasformarla in una scala a U per ridurre la pendenza ed evitare che la testa possa urtare le travi strutturali.
Nel complesso, propongo un concept dal carattere caldo, mantenendo il soffitto in legno orizzontale e integrandolo con uno sfondo dai toni coerenti con il materiale ligneo. Ho aggiunto anche diversi punti luce per rendere gli ambienti più luminosi e meno cupi.