
Roma, RM, Italia
Residenziale - Appartamento
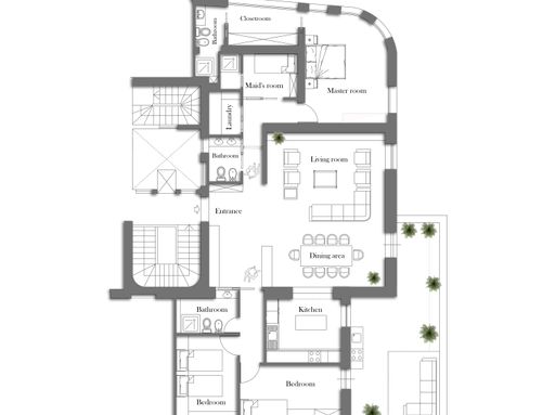
Descrizione
ENG:
We are a family of 5, parents and 4 children 2 boys and 2 girls and we need to completely renovate the house we just bought, the spaces will have to be completely resized and every possible centimeter used.
The apartment is located on the attic floor in the Parioli district of Rome.
What is essential for us is to optimize the spaces:
-3 bedrooms, one for the parents and 2 for the children.
The children's bedrooms must both have a desk and 4 beds with a width of 120-130cm. We are evaluating the possibility of making modern bunk beds to allow the room to have more space.
-a walk-in closet (which can be adjacent to or inside the parents' room)
-2 complete bathrooms (no tub, only shower) double sinks?
- Room for the maid (small and hidden) with its own bathroom (which could be the same as the guests' if there is not enough space
- Small room for washing machine and dryer (which can be put together with the maid's room) or a foldable wall.
It is very important that the living room, dining room and kitchen overlook the large part of the terrace of the house, that the kitchen is open to the dining room and can be closed with a glass door or similar and that entering from the entrance door of the apartment you enter directly into the living area.
The entrance with a wardrobe for jackets
-On the terrace we would like an external kitchen equipped with a stove and a sink
The sleeping area can be separated from the living area otherwise another option is for the parents' room to be separated from the children's room.
The house must be modern, functional and not difficult in the dyes and finishes, easy to clean.
-It must have parquet throughout the house, possibly Hungarian herringbone, optional bathroom
-Light, neutral colors. Black or white window frames.
-We would like the kitchen with high stools that allow some of us to eat there too. Large sink
We really like to invite friends for dinner/aperitifs, I want to emphasize this
-For the bathrooms we evaluate Porcelain Stoneware, black bathroom taps, white sanitary ware, niche in the shower for soaps.
SPA:
Somos una familia de 5, padres y 4 hijos, 2 niños y 2 niñas, y necesitamos reformar íntegramente la casa que acabamos de comprar, habrá que redimensionar por completo los espacios y aprovechar cada centímetro posible.
El apartamento está situado en el ático en el distrito Parioli de Roma.
Para nosotros lo fundamental es optimizar los espacios:
-3 habitaciones, una para padres y 2 para niños.
Las habitaciones de los niños deben disponer de un escritorio y 4 camas con un ancho de 120-130cm. Estamos considerando hacer literas modernas para permitir que la habitación tenga más espacio.
-un vestidor (que puede estar junto a la habitación de los padres o dentro de ella)
-2 baños completos (sin bañera, solo ducha) ¿lavabos dobles?
- Habitación para empleada doméstica (pequeña y escondida) con baño propio (que podría ser el mismo que el de los huéspedes si no hay suficiente espacio)
- Pequeño cuarto para lavadora y secadora (que puede colocarse junto al cuarto de servicio) o pared abatible.
Es muy importante que el salón, comedor y cocina den a la gran parte de la terraza de la casa, que la cocina dé al comedor y se pueda cerrar con una puerta de cristal o similar y que entrando desde la puerta de entrada del apartamento se acceda directamente a la zona de estar.
La entrada con un armario para chaquetas.
-En la terraza nos gustaría una cocina exterior equipada con vitrocerámica y fregadero.
La zona de dormir se puede separar de la zona de estar, o bien otra opción es separar la habitación de los padres de la habitación de los niños.
La casa debe ser moderna, funcional y no difícil de pintar y terminar, fácil de limpiar.
-Imprescindible parquet en toda la casa, posiblemente en espiga, baño opcional.
-Colores claros y neutros. Los marcos negros o blancos.
-Nos gustaría que la cocina tuviera taburetes altos que permitieran que algunos de nosotros pudiéramos comer allí también. fregadero grande
Nos gusta mucho invitar a amigos a cenar/aperitivos, quiero subrayar esto
-Para baños evaluamos gres porcelánico, grifería de baño negra, sanitarios blancos, nicho en la ducha para jabones.
ITA:
Siamo una famiglia di 5 persone, genitori e 4 bambini 2 maschi e 2 femmina ed abbiamo necessità di ristrutturare per intero la casa che abbiamo appena acquistato, dovranno essere ridimensionati interamente gli spazi e sfruttato ogni signolo centimetro possibile.
L'appartamento si trova al piano attico nel quartiere Parioli di Roma.
Quello che per noi è fondamentale è ottimizzare gli spazi:
-3 camere da letto, una per i genitori e 2 per i figli.
Le camere per i bambini devono avere entrambe una scrivania ed i 4 letti con larghezza 120-130cm. Valutiamo la possibilità di fare dei letti a castello moderni per permettere alla stanza di avere più spazio.
-una cabina armadio (che può stare adiacente o dentro stanza dei genitori)
-2 bagni completi (nessuna vasca, solo doccia) doppi lavandini?
- Stanza per la domestica (piccola e nascosta) con suo bagno (che potrebbe essere lo stesso degli ospiti se non bastano gli spazi
- Stanzino per lavatrice ed asciugatrice (che può esser messo insieme alla stanza della domestica) o parete richiudibile.
Molto importante è che il salotto, sala da pranzo e cucina diano sulla parte larga del terrazzo di casa, che la cucina sia a vista sulla sala da pranzo e chiudibile con vetrata o similare e che entrando dalla porta d'ingresso dell'appartamento si entri direttamente nella zona giorno.
L’ingresso con armadio per giacche
-Nel terrazzo ci piacerebbe una cucina esterna dotata di una piastra ed un lavandino
La zona notte può essere separata da quella giorno altrimenti un altra opzione è che la stanza genitori sia separata da quella dei figli.
La casa deve essere moderna, funzionale e non difficile nelle tinture e rifiniture, facile da pulire.
-Deve avere parquet per tutta la casa, possibilmente a spina ungherese, bagno opzionale
-Colori chiari, neutri. Gli infissi neri o bianchi.
-La cucina ci piacerebbe con sgabelli alti che permette a qualcuno di noi di mangiare anche li. Lavandino grande
Ci piace molto invitare gli amici a cena/aperitivo, ci tengo a sottolinearlo
-Per i bagni valutiamo il Gres Porcellanato, Rubinetterie dei bagni neri, sanitari bianchi, nicchia nella doccia per saponi.