
95016 Mascali CT, Italy
Commerciale - Altro
Descrizione
🇮🇹 Camping/village: realizzazione nuovo gruppo di servizi igienici di qualità e confortevoli bungalow/villa da due a cinque posti letto.
🇬🇧 Camping/village: construction of a new group of quality toilets and comfortable bungalows / villas for two to five beds.
🇩🇪 Camping/village: bau einer neuen Gruppe von hochwertigen Toiletten und komfortablen Bungalows / Villen für zwei bis fünf Betten.
🇫🇷 Camping/village: construction d'un nouveau groupe de toilettes de qualité et de bungalows / villas confortables pour deux à cinq lits.
🇪🇸 Camping/village: construcción de un nuevo grupo de baños de calidad y confortables bungalows / villas de dos a cinco camas.
🇳🇱 Camping/village: bouw van een nieuwe groep kwaliteits-toiletten en comfortabele bungalows / villa's voor twee tot vijf bedden.
🇭🇺 Camping/village: Új minőségi WC-k és kényelmes bungalók / villák létrehozása 2-5 ágyhoz.
🇨🇿 Camping/village: výstavba nové skupiny kvalitních toalet a pohodlných bungalovů / vil pro dvě až pět lůžek.
🇵🇱 Camping/village: budowa nowej grupy wysokiej jakości toalet i komfortowych bungalowów / willi na dwa do pięciu łóżek.
🇷🇺 Camping/village: Строительство новой группы качественных туалетов и комфортабельных бунгало / вилл на две-пять кроватей.
🇸🇪 Camping/village: byggande av en ny grupp av kvalitetstoaletter och bekväma bungalows / villor för två till fem bäddar.
🇩🇰 Camping/village: opførelse af en ny gruppe af kvalitets toiletter og komfortable bungalows / villaer for to til fem senge.
🇯🇵 Camping/village: キャンプ/町: 2〜5ベッド用の新しいトイレと快適なバンガロー/ヴィラの建設。
🇦🇪 Camping/village: بناء مجموعة جديدة من المراحيض الجيدة وبناغل / فيلات مريحة تتسع من سريرين إلى خمسة أسرة.
Link area on google maps
https://www.google.com/maps/d/edit?mid=1cEjGX8nWaKERW_HGdtIyqLkCxY_6zMqd&ll=37.749319839502675%2C15.206309253325458&z=18
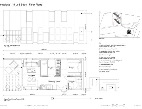
BUNGALOW/VILLE
N. 5 UNITA’ ABITATIVE DA 2/3 POSTI LETTO (MONOLOCALE)
N. 5 UNITA’ ABITATIVE DA 4/6 POSTI LETTO
CARATTERISTICHE E DOTAZIONE:
• SPAZIO ESTERNO COPERTO LIVING ARREDATO
• SPAZIO VERDE DI PERTINENZA
• ANGOLO CUCINA SEPARATO NON A VISTA
• BAGNO DOTATO DI WC, LAVABO, DOCCIA E BIDET
• LAVATRICE
• ARIA CONDIZIONATA
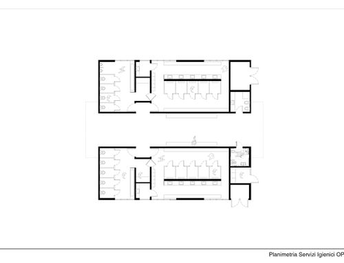
SERVIZI IGIENICI
LOCALE DOCCE:
SETTORE UOMO
• N.5 DOCCE
• N.5 LAVABI
• N.1 CABINA LAVABO CHIUSA
SETTORE DONNA
• N.5 DOCCE
• N.5 LAVABI
• N.1 CABINA LAVABO CHIUSA
N.1 STANZINO BOILER ACQUACALDA + CALDAIA+ RICOVERO ATTREZZI PULIZIA
LOCALE BAGNI:
SETTORE UOMO
• N.4 BAGNI
• N.2 ORINATOI
• N.1 LAVABO COMUNE
SETTORE DONNA
• N.5 BAGNI
• N.1 LAVABO COMUNE
N.1 BAGNO DISABILI CON ACCESSO INDIPENDENTE
N.1 BAGNO PRIVATO CON WC, LAVABO, DOCCIA E BIDET, DOTATO DI ACCESSO INDIPENDENTE, DA AFFITTARE AGLI OSPITI
LOCALE LAVANDERIA:
• N.2 LAVATRICI
• N.1 LAVAPANNI
ESTERNO CON COPERTURA
• N.5 LAVELLI STOVIGLIE
• N.2 LAVAPANNI
CON INGRESSO INDIPENDENTE
• N.1 CABINA PER VUOTATOIO WC CHIMICO
NOTE: Nella progettazione degli spazi specifici bisogna favorire l’aerazione e l’illuminazione naturale (per esempio: i lavabi con specchio devono essere posizionati in modo da far accedere la luce naturale trasversalmente, ciò al fine di garantirne un confortevole uso; i bungalow possono prevedere delle ampie vetrate che permettano non solo l’accesso della luce naturale, ma anche una vista panoramica dell’Etna o del verde circostante).
Per la progettazione, attenersi ai criteri inseriti nella documentazione allegata.
BUNGALOWS/VILLAS
N.5 HOUSING UNITS 2/3 BEDS (STUDIO FLAT)
N.5 HOUSING UNITS 4/6 BEDS
FEATURES AND EQUIPMENT OF BUNGALOWS:
• OUTDOOR SPACE COVERED LIVING AREA WITH FURNITURE
• RELEVANT GREEN SPACE
• SEPARATE KITCHEN CORNER NOT VISIBLE
• BATHROOM WITH TOILET, SINK, SHOWER, AND BIDET
• WASHING MACHINE
• AIR CONDITIONING
SANITARY FACILITIES
SHOWERS ROOM
MEN AREA
• N.5 SHOWERS
• N.5 SINKS
• N.1 SINK CABIN CLOSED
WOMEN AREA
• N.5 SHOWERS
• N.5 SINKS
• N.1 SINK CABIN CLOSED
N.1 ROOM FOR BOILER HOT WATER + STORAGE ROOM FOR CLEANING TOOLS
TOILETS ROOM
MEN AREA
• N.4 TOILETS
• N.2 URINALS
• N.1 COMMON SINK
SETTORE DONNA
• N.5 TOILETS
• N.1 COMMON SINK
N.1 DISABLED TOILET WITH INDIPENDENT ACCESS
N.1 PRIVATE TOILET QUIPPED WITH WC, SINK, SHOWER AND BIDET, WITH INDIPENDENT ACCESS, TO RENT TO THE CUSTOMERS
LAUNDRY ROOM
• N.2 WASHING MACHINE
• N.1 WASHBOARD
EXTERIOR WITH COVER
• N.5 DISHWASHING
• N.2 WASHBOARD
WITH INDIPENDENT ACCESS
• N.1 CHEMICAL WC CABIN
NOTES: In the design of specific spaces, natural ventilation and lighting must be encouraged (for examples: Washbasins with mirrors must be positioned so that natural light can be accessed transversely, in order to ensure comfortable use of the accessories; the bungalows can have large windows that allow not only the access of natural light, but also a panoramic view of Etna or the surrounding greenery).
When designing, follow the criteria in the attached documentation.