🔥 CYBER MONDAY 24H: -60% su tutti i prezzi del sito! Solo fino a mezzanotte. Usa il codice CYBERMONDAY25 👉🏼
img

Cagliero House

Milano, MI, Italia

Residenziale - Appartamento

Erika Morandi

  • architect
  • Sesto Fiorentino, Italy
Descrizione Progetto

Si presentano tre diverse ipotesi progettuali che combinano vari livelli di intervento per rispondere in modo flessibile alle esigenze abitative.

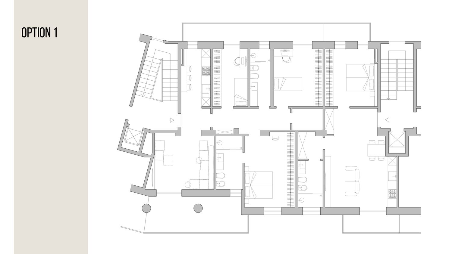
IPOTESI 1: Ottimizzazione con Modifiche Mirate (Approccio Conservativo)

Unità A (Quadrilocale): L'intervento prevede l'annessione di un vano adiacente per ricavare una camera da letto e la creazione di un secondo bagno a servizio delle camerette.

Unità B (Bilocale): La zona giorno è concepita come un unico open space che integra cucina e soggiorno.

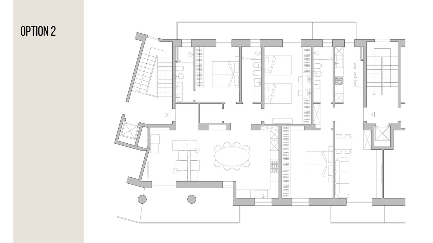
IPOTESI 2: Riconfigurazione Parziale (Approccio Trasformativo)

Unità A (Quadrilocale): Il layout viene rivoluzionato per creare un'ampia zona giorno open space (salotto, cucina, pranzo) e una zona notte con suite matrimoniale dotata di bagno privato.

Unità B (Bilocale): La cucina viene progettata come ambiente semi-indipendente, a vista sul soggiorno ma funzionalmente distinto.

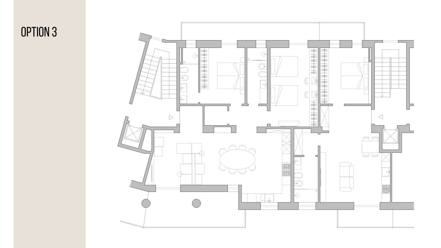
IPOTESI 3: Soluzione Ibrida (Combinazione Strategica)

Unità A (Quadrilocale): Si implementa la riconfigurazione totale prevista nell'Ipotesi 2, demolendo le partizioni interne per creare un grande open space e una suite padronale.

Unità B (Bilocale): Si adotta la soluzione open space dell'Ipotesi 1, che unisce cucina e salotto in un unico ambiente conviviale e versatile.

Leggi di Più