
Milano, MI, Italia
Residenziale - Appartamento
Descrizione
ENG:
We have a property with two adjacent apartments of equal size, and we need to create:
A one-bedroom apartment of 40 sqm where my elderly parents will live.
It is important to have a spacious living area with an open kitchen.
A four-room apartment of 130 sqm for a family of four (parents and two sons), which must include:
at least 2 bathrooms
2 large bedrooms
a storage room
a comfortable living area, suitable for hosting guests
and optimal use of the terrace/loggia
For the four-room apartment, we are especially focused on achieving the best possible layout, but with limited-impact work, as it is our current home, already renovated, and now being expanded.
SPA:
Disponemos de un inmueble con dos apartamentos contiguos de igual tamaño, del que necesitamos obtener:
Un apartamento de dos ambientes de 40 m² para mis padres mayores.
Es fundamental que tenga una zona de día amplia con cocina integrada.
Un apartamento de cuatro ambientes de 130 m² donde viviremos 4 personas (padres y dos hijos varones), que deberá incluir:
mínimo 2 baños
2 dormitorios amplios
un trastero
una zona de estar cómoda, también para recibir visitas
y un buen aprovechamiento del terraza o logia
En el caso del apartamento de cuatro ambientes, nos interesa especialmente obtener la mejor distribución posible, pero con intervenciones de bajo impacto, ya que se trata de nuestra vivienda actual, ya reformada, que se va a ampliar.
ITA:
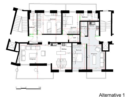
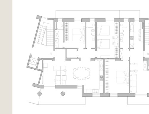
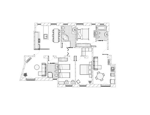
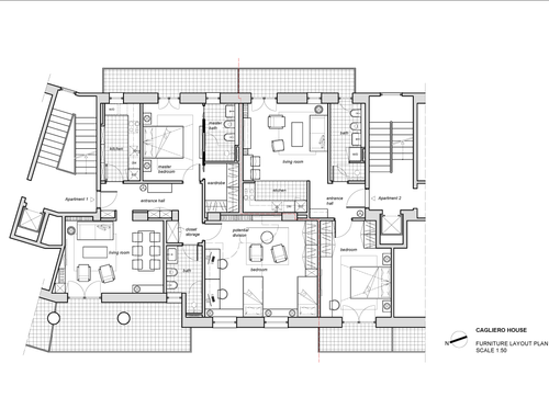
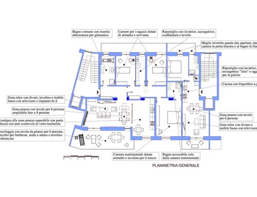
Abbiamo un immobile con due appartamenti confinanti di pari metratura da cui dobbiamo creare :
1) un bilocale di 40 mq dove vivranno i miei genitori anziani (importante una zona giorno ampia con cucina a vista);
2) un quadrilocale da 130 mq dove vivremo in 4 (genitori e due figli maschi), che dovrà avere minimo 2 bagni, 2 ampie camere da letto, un ripostiglio, una zona giorno ben vivibile anche con ospiti e che sfrutti al meglio il terrazzo/loggia.
Per il quadrilocale siamo molto interessati alla miglior distribuzione degli spazi, ma con lavori di impatto limitato, trattandosi dell'attuale casa di residenza, già ristrutturata, da ampliare.
Risorse