
Parma, PR, Italia
Residenziale - Palazzo
Descrizione
ENG:
Interior space distribution project.
Hello everyone, I need to design apartments within a pre-established plan. I already provide the plans and elevations and sections. The plans cannot be modified except by a few centimeters in length (no more than 24 cm) but if possible, better not.
I would need the drawing of the standard plan and the top floor. Please work within the assigned plans. There is no need to draw the ground floor, but keep in mind that there must be an entrance hall or corridor, I indicate this as an indication for the positioning of the staircase.
The requirements are these:
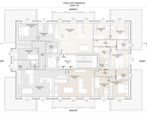
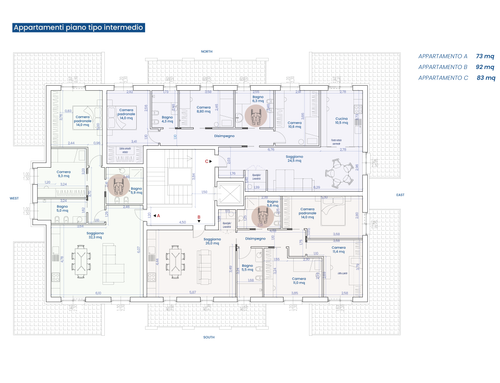
Standard plan:
- 3 apartments (2 apartments with 3 bedrooms and 2 bathrooms, 1 apartment with 2 bedrooms with 2 bathrooms).
- at least 2 living rooms on the South side (ok South/East and South/West corner)
- 1 bathroom at least must have a window
- 1 bathroom at least must have a toilet + bidet
- 1 bathroom at least a 90x90 shower or similar (no 70x70 or 80x80 showers)
- 1 bathroom at least must have 80cm free in front of the sink and 100cm free from half the toilet on the left or right (not considering the bidet), a circle of diameter 1.50 must be circumscribed inside the bathroom for people with wheelchairs.
- 1 bedroom of at least 12 m2
- the other bedrooms at least 8.5 m2 (better > 9.00 m2)
- living room + kitchen at least 25 m2
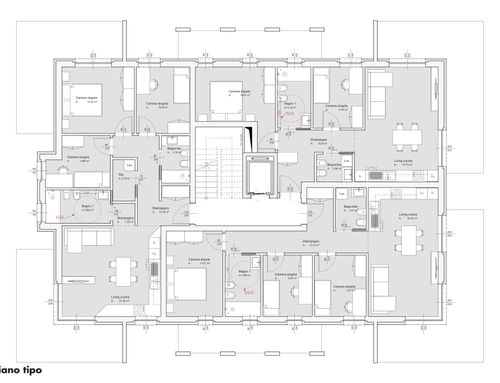
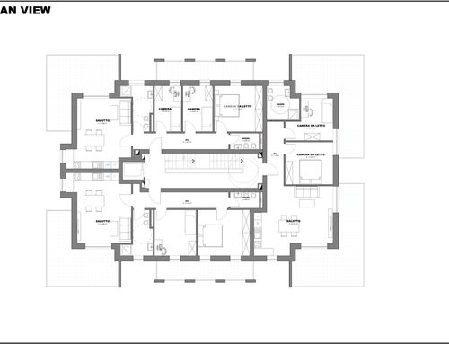
Top floor:
- 3 apartments (1 apartment with 3 bedrooms and 2 bathrooms, 1 apartment with 2 bedrooms and 2 bathrooms, 1 apartment with 2 rooms and 1 bathroom, better 2.. but difficult)
- 1 bathroom at least must have a window (ok velux)
- 1 bathroom at least with toilet + bidet
- 1 bathroom at least with a 90x90 shower or similar (no 70x70 or 80x80 showers)
- 1 bathroom at least must have 80 centimeters free in front of the sink and 100 cm free from half the toilet on the left or right (not considering the bidet), a circle of diameter 1.50 must be circumscribed inside the bathroom for people with wheelchairs.
- 1 bedroom of at least 12 m2
- the other bedrooms at least 8.5 m2
- living room + kitchen >25 m2
STAIRS
The insertion of the stairs is essential. It can be inserted wherever you want except in the 2 green areas marked on the plan.
- The stairs must have 19 risers and 30 cm of tread.
- There must be at least 1.50 m of free space in front of the elevator
- Staircase width of 1.20 m
- Distribution or corridor at least 1.20 m
I have also inserted the sections and elevations, the windows can be modified, the elevation must clearly be checked, even modifying the balconies a little. Dividing wall between apartments 30 cm.
Important update 03/04/25. At north and sud at the top floor you can increase lenght about the small wall from 3,47m at 3,70m but you leave the lenght of the palace at 3,50m
ITA:
Progetto di distribuzione degli spazi interni.
Ciao a tutti, ho necessità di progettare all'interno di una pianta prestabilita degli appartamenti. Le piante ed i prospetti e le sezioni le fornisco già io. Le piante non si possono modificare se non di qualche centimetro in lunghezza (non + di 24 cm) ma se possibile meglio di no.
A me servirebbe il disegno del piano tipo e dell'ultimo piano. Vi prego di lavorare all'interno delle piante assegnate. Il piano terra non c'è bisogno di disegnarlo, ma tenete conto che dovrà esserci un atrio o corridoio di ingresso, questo lo indico come indicazione per il posizionamento della scala.
I requisiti sono questi:
Piano tipo:
- 3 appartamenti (2 appartamenti con 3 stanze da letto e 2 bagni, 1 appartamento con 2 stanze da letto con 2 bagni).
- almeno 2 soggiorni a lato Sud (ok angolo Sud/Est e Sud/ovest)
- 1 bagno almeno deve essere con finestra
- 1 bagno almeno deve avere wc+bidet
- 1 bagno almeno doccia 90x90 o similari ( no docce 70x70 o 80x80)
- 1 bagno almeno deve avere di fronte al lavabo 80 centimetri libero e 100cm libero da metà wc a sinistra o destra (non considerando il bidet), all'interno del bagno deve essere circoscritto un cerchio di diametro 1,50 per persone con carrozzina.
- 1 stanza da letto almeno di 12 mq
- le altre stanze da letto almeno da 8,5 mq (meglio> 9,00 mq)
- soggiorno+cucina almeno da 25 mq
Piano ultimo:
- 3 appartamenti (1 appartamento con 3 stanze da letto e 2 bagni, 1 appartamento con 2 stanze da letto e 2 bagni, 1 appartamento con 2 stanze e 1 bagno, meglio 2.. ma difficile)
- 1 bagno almeno deve essere con finestra (ok velux)
- 1 bagno almeno con wc+bidet
- 1 bagno almeno doccia 90x90 o similari ( no docce 70x70 o 80x80)
- 1 bagno almeno deve avere di fronte al lavabo 80 centimetri libero e 100 cm libero da metà wc a sinistra o destra (non considerando il bidet), all'interno del bagno deve essere circoscritto un cerchio di diametro 1,50 per persone con carrozzina.
- 1 stanza da letto almeno di 12 mq
- le altre stanze da letto almeno 8,5 mq
- soggiorno+cucina >25 mq
SCALA
Fondamentale è l'inserimento della scala. Puo essere inserita dove si vuole tranne che nelle 2 zone verdi segnate in pianta.
- La scala deve avere 19 alzate e 30 cm di pedata.
- Di fronte all'ascensore deve esserci almeno 1,50m di spazio libero
- Larghezza scala da 1,20m
- Distribuzione o corridoio almeno 1,20m
Ho inserito anche le sezioni e i prospetti, le finestre possono essere modificate deve chiaramente essere controllato il prospetto, anche modificando un pò i balconi. Muro divisorio tra appartamenti 30 cm.
Aggiornamento importante del 3/04/25: all'ultimo piano nei prospetti nord e sud, dove ci sono le rientranze, è possibile portare da 3,47m a 3,70m i 4 tratti di muro esterni mantenendo la larghezza della casa a 21,50m
SPA:
Proyecto de distribución de espacios interiores.
Hola a todos, necesito diseñar departamentos dentro de un plano preestablecido. Ya proporciono los planos, alzados y secciones. Las plantas no se pueden modificar salvo unos centímetros de longitud (no más de 24 cm) pero si es posible, mejor no hacerlo.
Necesitaría un plano del piso estándar y del piso superior. Por favor trabajar dentro de las plantas asignadas. No es necesario dibujar la planta baja, pero tenga en cuenta que será necesario un hall de entrada o pasillo, lo indico como indicación para la ubicación de la escalera.
Los requisitos son los siguientes:
Plan típico:
- 3 apartamentos (2 apartamentos de 3 dormitorios y 2 baños, 1 apartamento de 2 dormitorios y 2 baños).
- al menos 2 salas de estar en el lado sur (ok esquina sur/este y sur/oeste)
- Al menos 1 baño debe tener ventana
- Al menos 1 baño debe tener inodoro + bidet
- 1 baño con ducha de al menos 90x90 o similar (no duchas de 70x70 o 80x80)
- Al menos 1 baño debe tener 80cm de espacio libre delante del lavabo y 100cm de espacio libre desde el centro del inodoro a la izquierda o derecha (sin considerar el bidet), se debe encerrar un círculo de 1,50 de diámetro en el interior del baño para personas con silla de ruedas.
- 1 dormitorio de al menos 12 m2
- otros dormitorios al menos 8,5 m2 (mejor > 9,00 m2)
- salón + cocina de al menos 25 m2
Piso superior:
- 3 apartamentos (1 apartamento con 3 habitaciones y 2 baños, 1 apartamento con 2 habitaciones y 2 baños, 1 apartamento con 2 habitaciones y 1 baño, mejor 2.. pero difícil)
- Al menos 1 baño debe tener ventana (ok velux)
- 1 baño al menos con inodoro + bidet
- 1 baño con ducha de al menos 90x90 o similar (no duchas de 70x70 o 80x80)
- 1 baño debe tener al menos 80 cm de espacio libre delante del lavabo y 100 cm de espacio libre desde el centro del inodoro a la izquierda o derecha (sin considerar el bidet), se debe encerrar un círculo de 1,50 de diámetro en el interior del baño para personas con silla de ruedas.
- 1 dormitorio de al menos 12 m2
- otros dormitorios al menos 8,5 m2
- salón + cocina >25 m2
ESCALERAS
La inclusión de la escala es fundamental. Se puede colocar donde se desee excepto en las 2 zonas verdes marcadas en el plano.
- La escalera deberá tener 19 contrahuellas y 30 cm de huella.
- Debe haber al menos 1,50m de espacio libre delante del ascensor.
- Ancho de escalera 1,20m
- Distribución o pasillo mínimo 1,20m
También he insertado las secciones y alzados, las ventanas se pueden modificar, obviamente hay que revisar el alzado, incluso modificando un poco los balcones. Muro divisorio entre viviendas 30 cm.
Risorse