
89044 Locri, Metropolitan City of Reggio Calabria, Italy
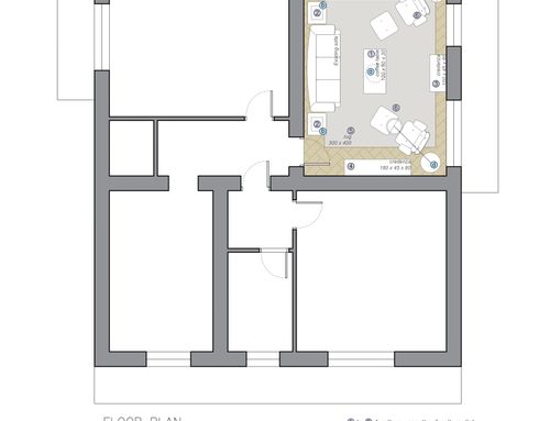
Residenziale - Zona Giorno/Notte
Descrizione
ENG:
Hi to everyone!!! We are embarking on a project to transform our living space into a modern, bright, and welcoming environment. Our preferences lean toward warm tones, Mediterranean nuances, and a special fondness for the color blue. Project Scope: Living Area Enhancement (Two Levels).
°°°(Living Room A): 1A Ceiling Design and Lighting: Design a suspended ceiling using gypsum board. This is in response to the existing installation of a heating and cooling system via ceiling-mounted fan coil units.
Important Note: The gypsum proposal for the living room must include an inspection hatch beneath the fan coil unit. Additionally, air vents need to be incorporated into the gypsum structure. The proper circulation of air is essential for the fan coil unit’s functionality. 2A - Illumination: The plan includes thoughtful lighting design for the entire space 3A - Furniture: a quick note-->intend to reuse the existing sofa and armchairs. 4A - General Note: The flooring will remain unchanged.°°°END Living room A°°°. °°°Start (Living Area B) The goal is to reorganize this space effectively. Kindly proposal of furniture arrangements that also serve to screen access to the bathroom.
The proposed furniture element will achieve this dual purpose.
UPDATE May 2nd, 2024
Hi everyone! A quick update with more information. I uploaded some photos with the style I like: essential but not cold. The apartment will be used during holiday periods and/or to escape from the metropolis for smartworking. The house is close to the Mediterranean sea in the south of Italy.
Below few further info on the two living areas: Living room A: It will be dedicated to carving out a "silence"/relaxation and reading area.
Living room B: it is close to the kitchen and will be used every day (for example to watch a film, welcome friends in winter in front of the fireplace). The space is not huge and the idea is to have functional furniture but leave the right spaces.
Feel free to ask any questions!
UPDATE MAY 25TH, 2024
Hello to All and thank you for questions submitted. A few update based on your questions:
1) REPLACEMENT OF FIXTURES: The fixtures in both living rooms (as well as the entire property) will be completely replaced. The style is minimal to have light and sun and the color is total white.
2) REPLACEMENT OF DOORS: LIVING ROOM A): The replacement of the internal doors was planned but no idea of the style (minimal is preferable) or the color depending on the project. The entrance door will also be replaced: not yet chosen (waiting for your project) as the color of the floors of the stairs is black and white while the color of the floors inside the apartment is beige °-° LIVING ROOM B) Their replacement was not planned as they were custom made by the carpenter when the apartment was renovated 8 years ago by another family. Keeping them is a plan, especially if they align with your design vision.
3) WALLS POSITION CHANGES: LIVING ROOM A) NOT foreseen and your project in the revision of the furnishings, lights and plasterboard covering (plaster) is very welcome. LIVING ROOM B) The change position of the bathroom on the wall was not foreseen however since I don't like it (reduce the space of the living room) new proposals are welcome. At the time of the last apartment overhaul, extedn bathroom for having a shower seemed like the only applicable solution.
4) FLOOR MATERIAL CHANGES: The flooring material remains for both living rooms. I love it as they connect to my childhood memories.
5) FIREPLACE CHANGES POSITION: Unfortunately the fireplace cannot be moved as it would require the overhaul of all the heating systems.
I hope I have integrated all the missing information and look forward to your projects and ideas for renovating the two living rooms. Last but not least: they will be used above all as holiday homes, moments of escape from the city and for smart working from the sea. I love design, minimal and functional furnishings to please the eye and reduce stress. Thank you!
UPDATE 5 June 2024
Hello to All and thank you for questions. I added in the "planimetry" section a pdf with details on the bathroom furnitures.
SPA:
Hola a todos!!! Estamos emprendiendo un proyecto para transformar nuestro espacio vital en un ambiente moderno, luminoso y acogedor. Nuestras preferencias tienden hacia los tonos cálidos, los tonos mediterráneos y una especial predilección por el color azul. Alcance del proyecto: mejora de la zona habitable (dos niveles).
°°°(Salón A): 1A Diseño e iluminación de techos: Diseñar un falso techo mediante placas de yeso. Esto es en respuesta a la instalación existente de un sistema de calefacción y refrigeración mediante ventiladores de techo.
Nota importante: La propuesta de revoque para el salón debe incluir una trampilla de inspección debajo del fancoil. Adicionalmente, es necesario incorporar respiraderos a la estructura de yeso. Una correcta circulación del aire es fundamental para el funcionamiento del fancoil. 2A - Iluminación: el plan incluye un cuidado diseño de iluminación para todo el espacio 3A - Mobiliario: una nota rápida --> intención de reutilizar el sofá y los sillones existentes. 4A - Nota General: El pavimento permanecerá inalterado.°°°FIN Salón A°°°. °°°Inicio (Sala de estar B) El objetivo es reorganizar este espacio de manera efectiva. Sugiera amablemente arreglos de mobiliario que también sirvan para bloquear el acceso al baño.
El elemento de decoración propuesto logrará este doble propósito.
ACTUALIZACIÓN 2 de mayo de 2024
¡Hola a todos! Una actualización rápida con más información. Subí unas fotos con el estilo que me gusta: esencial pero no frío. El apartamento se utilizará durante periodos de vacaciones y/o para escapar de la metrópoli para trabajar de forma inteligente. La casa está cerca del mar Mediterráneo, en el sur de Italia.
A continuación se ofrece más información sobre las dos zonas de estar: Salón A: Se dedicará a crear una zona de "silencio"/relajación y lectura.
Salón B: está cerca de la cocina y se utilizará todos los días (por ejemplo para ver una película, recibir a los amigos en invierno frente a la chimenea). El espacio no es enorme y la idea es tener muebles funcionales pero dejar los espacios adecuados.
¡No dude en hacer cualquier pregunta!
ITA:
Ciao a tutti!!! Stiamo intraprendendo un progetto per trasformare il nostro spazio abitativo in un ambiente moderno, luminoso e accogliente. Le nostre preferenze tendono ai toni caldi, alle sfumature mediterranee e ad una predilezione speciale per il colore blu. Ambito del progetto: miglioramento della zona giorno (due livelli).
°°°(Soggiorno A): 1A Progettazione e illuminazione del soffitto: Progettare un controsoffitto utilizzando cartongesso. Ciò in risposta all'installazione esistente di un sistema di riscaldamento e raffrescamento tramite ventilconvettori a soffitto.
Nota importante: La proposta in gesso per il soggiorno deve prevedere una botola di ispezione sotto il ventilconvettore. Inoltre, è necessario incorporare prese d'aria nella struttura in gesso. La corretta circolazione dell’aria è essenziale per il funzionamento del ventilconvettore. 2A - Illuminazione: il piano prevede un'attenta progettazione dell'illuminazione per l'intero spazio 3A - Mobili: una breve nota-->intenzione di riutilizzare il divano e le poltrone esistenti. 4A - Nota Generale: La pavimentazione rimarrà invariata.°°°END Soggiorno A°°°. °°°Inizio (Zona giorno B) L'obiettivo è riorganizzare questo spazio in modo efficace. Gentilmente proposta di disposizioni d'arredo che servano anche a schermare l'accesso al bagno.
L'elemento d'arredo proposto raggiungerà questo duplice scopo.
AGGIORNAMENTO 2 maggio 2024
Ciao a tutti! Un rapido aggiornamento con ulteriori informazioni. Ho caricato alcune foto con lo stile che mi piace: essenziale ma non freddo. L'appartamento verrà utilizzato durante i periodi di vacanza e/o per fuga dalla metropoli per smartworking. La casa è vicino al Mar Mediterraneo, nel sud dell'Italia.
Di seguito qualche ulteriore informazione sulle due zone giorno: Soggiorno A: Sarà dedicato a ritagliare una zona “silenzio”/relax e lettura.
Soggiorno B: è vicino alla cucina e verrà utilizzato tutti i giorni (ad esempio per vedere un film, accogliere gli amici in inverno davanti al camino). Lo spazio non è enorme e l'idea è quella di avere mobili funzionali ma lasciare i giusti spazi.
Sentiti libero di porre qualsiasi domanda!