
Cagliari, Province of Cagliari, Italy
Commerciale - B&B
Descrizione
ENG
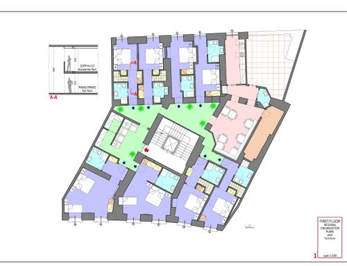
This project is about a noble apartment located in the historic center of the city, within an antique building. The roof's height is 5mt, and the apartment is going to be fully renovated. The bearing walls are 50/60cm thick. We need to restore the attic, replace all the internal and external fixtures, and redo all the systems. The aim of this project is to create a small hotel with 8 rooms, breakfast area with at least 6/7 tables. The total area to be used for the breakfast area and the common areas (including the entrances) is of 40 square meters. We need an area dedicated to clothing storage near the entrance (3/4 square meters), a space for deposit/kitchen of 6/8 square meters, a guest bathroom available for all the guests (sink and wc). Each bedroom must have its own private bathroom, the minimum size for each bedroom is of 15/18 square meters (not including the bathroom). If it's possible, the rooms must have the possibility to add a third bed. Each room must include an closet (also open) of minimum 80/90cm and a courtesy corner containing a mini-fridge, safety box and courtesy set (glasses / cups / kettle etc.). The goal is to create a small luxury accommodation facility. The reception will be in another builgin (as this would be a unit of a widespread hotel in the historic center, and reception is located elsewhere).
UPDATE 2.12.2019
The unit is currently composed of 2 apartments that are going to me merged. The entrance will be unique for all the guests. It is possible to open doors also in the bearing walls (max 90/100cm and after the realization of the lintel) if you need.
ITA
Si tratta di un appartamento nobiliare situato nel centro storico della città, all'interno di un palazzo antico. I soffitti sono alti 5mt, e l'appartamento è totalmente da ristrutturare. I muri portanti sono spessi 50/60cm. Occorre il rifacimento del solaio di calpestio, sostituzione di tutti gli infissi esterni ed interni, e il rifacimento di tutti gli impianti. Il progetto è volto a realizzare un piccolo Hotel di 8 camere, con una sala colazione che contenga almeno 6/7 tavoli, un totale di mq tra sala colazione ed aree comuni (contano anche gli ingressi) di 40mq. Spazi dedicati al deposito biancheria in prossimità dell'ingresso (3/4mq) , uno spazio deposito/cucina di 6/8mq, un bagno comune a disposizione degli ospiti (lavabo e wc). Ciascuna camera deve avere il proprio bagno, ed avere una dimensione minima di 15/18mq (bagno escluso). Le camere laddove possibile dovranno contenere la possibilità di avere un terzo letto. La dotazione di ciascuna camere deve prevedere un armadio (anche a giorno) di min 80/90 cm ed una angolo "cortesia" contenente un mini-frigo, cassaforte e set di cortesia (bicchieri/tazze/bollitore etc.). L'obiettivo è quello di realizzare una piccola struttura ricettiva di lusso. La reception è prevista in un altro ambiente (in quanto questa sarebbe un unità di un albergo diffuso del centro storico, e l'accoglienza è centralizzata all'esterno).
AGGIORNAMENTO 02.12.2019: Attualmente l'unità immobiliare è composta da 2 appartamenti distinti, che verranno uniti. L'accesso avverrà da solo 1 ingresso dal quale si potranno raggiungere tutti gli ambienti. Sono previste (e pertanto possibili) delle aperture anche nella muratura portante (max 90/100cm previa realizzazione di architrave) per consentire una migliore fruizione degli spazi.
----------------------------------------
ESPAÑOL
Se trata de un apartamento noble situado en el centro histórico de la ciudad, en el interior de un edificio antiguo. Los techos tienen 5 metros de altura, y el apartamento está para ser restaurado por completo. Los muros de carga tienen un grosor de 50/60cm. Se necesita reconstruir la losa del piso, reemplazar todos los accesorios internos y externos, y la reconstrucción de todas las plantas. El proyecto tiene como objetivo crear un pequeño hotel con 8 habitaciones, con una sala para desayuno que contenga por lo menos 6/7 mesas, un total
de 40m² entre la sala de desayuno y las áreas comunes (contando también los ingresos).
Espacios dedicados al almacenamiento de ropa cerca de la entrada (3/4 m²), un espacio para deposito/cocina de 6/8m², un baño común a disposición de los huéspedes (lavabo y water).
Cada habitación debe tener su propio baño, con un tamaño mínimo de 15/18m² (no incluye el baño).
Siempre que sea posible, las habitaciones deben tener la posibilidad de contener una tercera cama. Cada habitación debe incluir un armario (también abierto) de mínimo 80/90cm y un rincón de "cortesía" que contenga un mini refrigerador, caja fuerte y set de cortesía (vasos/tazas/tetera, etc.).
El objetivo es crear una pequeña instalación de alojamiento de lujo. La recepción se espera que este en otro ambiente (ya que este sería una unidad de un hotel extendido en el centro histórico, y la recepción está centralizada afuera).