🔥 CYBER MONDAY 24H: -60% su tutti i prezzi del sito! Solo fino a mezzanotte. Usa il codice CYBERMONDAY25 👉🏼
img
2°

BORGO RIVOLI 66

Porto Viro, RO, Italia

Residenziale - Villa

Matteo Fiorentini

  • architect
  • Rome, Italy
Descrizione Progetto

RELAZIONE DI PRESENTAZIONE DEL PROGETTO

Oggetto: Ristrutturazione edilizia con miglioramento sismico ed efficientamento energetico, con incremento volumetrico ai sensi del “Piano Casa”
Immobile sito in: Via Borgo Rivoli 66, Porto Viro (RO)

1. Premessa

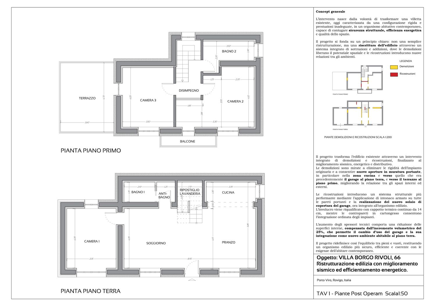
L’intervento riguarda la ristrutturazione completa di una villetta unifamiliare sviluppata su due livelli fuori terra, con annesso garage posto in aderenza al corpo principale.

Il progetto si configura come intervento di ristrutturazione edilizia rilevante, finalizzato al miglioramento delle prestazioni strutturali ed energetiche dell’edificio, avvalendosi delle premialità volumetriche previste dalla normativa vigente in materia di “Piano Casa”, che consente un incremento della cubatura pari al 25% a fronte dell’esecuzione di interventi di adeguamento e riqualificazione.

2. Stato di fatto

L’edificio esistente presenta caratteristiche costruttive tradizionali, con murature portanti e solai non adeguati agli attuali standard prestazionali, sia in termini di sicurezza sismica che di efficienza energetica.

Il garage, attualmente destinato a uso accessorio, risulta strutturalmente e funzionalmente separato, con copertura non idonea ad un utilizzo residenziale.

3. Obiettivi dell’intervento

Il progetto si pone i seguenti obiettivi principali:

Miglioramento sismico dell’intero organismo edilizio
Efficientamento energetico dell’involucro
Razionalizzazione distributiva degli spazi interni
Incremento della superficie utile abitabile mediante cambio di destinazione d’uso
Adeguamento funzionale e qualitativo dell’immobile agli standard abitativi contemporanei
4. Interventi strutturali

Al fine di conseguire il miglioramento sismico richiesto, si prevede:

Realizzazione di intonaco armato su tutte le pareti portanti, al fine di incrementarne la capacitĂ  resistente e la risposta alle azioni orizzontali
Esecuzione di nuove aperture in muratura portante, opportunamente cerchiate, in particolare:
apertura al piano terra in corrispondenza della cucina
apertura al piano primo per l’accesso diretto al terrazzo
Realizzazione di un nuovo solaio di copertura del garage esistente, strutturalmente integrato con il fabbricato principale

Tali interventi concorrono a migliorare in modo significativo il comportamento globale dell’edificio sotto azione sismica.

5. Interventi di efficientamento energetico

In coerenza con gli obiettivi di riqualificazione energetica, il progetto prevede:

Realizzazione di cappotto termico esterno dello spessore di 14 cm, continuo su tutte le superfici disperdenti verticali
Miglioramento delle prestazioni dell’involucro opaco, con riduzione delle dispersioni termiche
Ottimizzazione delle condizioni di comfort interno sia in regime invernale che estivo

L’intervento consente un significativo contenimento dei consumi energetici e un miglioramento della classe energetica dell’edificio.

6. Impianti e soluzioni costruttive

L’adozione dell’intonaco armato comporta la necessità di realizzare:

Contropareti interne in cartongesso, finalizzate al passaggio degli impianti tecnologici

Questa soluzione consente:

una maggiore flessibilitĂ  impiantistica
una migliore qualitĂ  esecutiva
la possibilitĂ  di manutenzione futura senza interventi invasivi sulle strutture portanti
7. Nuova distribuzione interna

La nuova configurazione degli spazi interni risulta influenzata dalla riduzione delle superfici utili derivante dall’incremento degli spessori murari (intonaco armato + contropareti + cappotto).

Tuttavia, tale riduzione viene compensata dall’incremento volumetrico consentito dal Piano Casa.

In particolare:

Il garage viene trasformato in ambiente residenziale, attraverso cambio di destinazione d’uso
Il nuovo volume viene integrato funzionalmente al piano terra, configurandosi come un vano abitabile aggiuntivo
Gli spazi interni vengono ridistribuiti per migliorare:
la fruibilitĂ  degli ambienti
i rapporti tra zona giorno e zona notte
la connessione con gli spazi esterni
8. Incremento volumetrico

L’intervento usufruisce della premialità prevista dalla normativa, con un incremento pari al 25% della cubatura esistente, subordinato all’esecuzione delle opere di miglioramento sismico ed energetico sopra descritte.

Tale incremento consente:

il recupero funzionale del garage
l’ampliamento della superficie abitabile
una maggiore qualità dell’organismo edilizio nel suo complesso
9. Conclusioni

Il progetto si configura come un intervento organico e integrato, volto alla trasformazione dell’edificio esistente in un organismo edilizio sicuro, efficiente e rispondente alle esigenze dell’abitare contemporaneo.

Attraverso l’applicazione coordinata di tecnologie per il miglioramento sismico ed energetico, unitamente alla riorganizzazione distributiva e all’incremento volumetrico, si ottiene un significativo innalzamento delle prestazioni complessive dell’immobile, nel rispetto delle normative vigenti e con particolare attenzione alla qualità architettonica e costruttiva.

Leggi di PiĂą