
Messina, Province of Messina, Italy
Residenziale - Casa
Descrizione
Ho appena acquistato una villetta in una zona prospiciente il mar Tirreno, dove vorrei trasferirmi in via definitiva, in quanto desideravo degli spazi verdi che un appartamento in zona centrale, non può dare.
Amo molto vivere la mia casa. Pur facendo un lavoro che mi impegna tutto il giorno fuori, ho un attenzione per i particolari ed i dettagli, soprattutto per la costruzione di ambienti che non diano nulla per scontato, che siano accoglienti e mi diano un senso di tranquillità e di comfort.
Apprezzo molto gli ambienti strutturati in modo che vi siano spazi dedicati alle gestioni operative quotidiane, ripostigli, dispense e quant’altro mi aiuti a tenere tutto in ordine.
Mi piacciono anche vani di servizio “nascosti”.
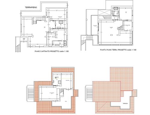
Al piano seminterrato, vorrei realizzare la zona notte, con 2 camere da letto matrimoniali di cui 1 con bagno in camera. Nell’area living riservata, vorrei posizionare un camino, visto che è presente la predisposizione e anche il mio studio che all’occorrenza possa diventare una stanza per accogliere ospiti;
Nei bagni amo la doccia walk in, senza porte.
Al piano terra, che ha la vista migliore, desidererei realizzare l’area giorno, con un piccolo bagno per gli ospiti, che abbia lavabo, wc e se entra anche il bidet, null’altro. Gli ambienti dovrebbero essere ampi, con zone definite, oltre che la cucina comoda che acceda all’area pranzo, ma da cui resti separata.
Vorrei inserire un pianoforte regolare.
In riferimento alla cucina, sono abituata ad avere un isola centrale abbastanza grande, la mia attuale misura cm 250x120, oltre che armadi e pensili grandi e comodi ed un vano dispensa con lavabo buttatoio. Vorrei trasferire i mobili della mia cucina, che è una Veneta Cucine modello Oyster bianco lucido, magari cambiando i piani attuali, in Okite bianco assoluto, in un marmo statuario, se fosse opportuno.
Nel sottotetto, che è abitabile, vorrei realizzare una camera da letto, bagno e cabina armadio. Essendo un area dedicata a mia figlia, le piacerebbe che i tetti avessero delle travi a vista..
I miei gusti sono poliedrici, comunque mi piace quello che è ben fatto, la mia casa attuale è arredata in modo moderno, ma amo molto il moderno contemporaneo, mi piacciono le carte da parati anche particolari, mi piacciono diversi stili e non disdegno l’industrial o un infiltrazione di rustico : capisco che non potrà esserci tutto…. !
Amo anche i colori, soprattutto i verdi e le tonalità dei blu azzurro, ma anche i toni neutri, bianco, sabbia, tortora, grigio nelle varie declinazioni.
Adoro il legno con colori non troppo caldi.
Mi piacerebbe posizionare nell’area notte il parquet a spina di pesce o a cassettoni, almeno nella zona living riservata, mentre al piano superiore, nell’area giorno, sono disponibile a valutare vari rivestimenti. Amo molto le pavimentazioni materiche che ricordino le pietre anche scure.
***
Non ho necessità di zona dedicata alla lavanderia, poichè lo spazio verrà dedicato in un area separata della casa.
Nella area cucina, al 1°piano, ho immaginato fosse possibile aprire una vetrata, con accesso ad una pergola bio climatica, fruibile in estate ed in inverno.
Il riscaldameno/raffrescamento sarà a pavimento
SPA
Acabo de comprar una villa en una zona con vistas al mar Tirreno, donde me gustaría mudarme permanentemente, ya que quería espacios verdes que un apartamento en la zona central no puede dar.
Realmente amo vivir en mi casa. Mientras hago un trabajo que me lleva todo el día, presto atención a los detalles, especialmente para la construcción de ambientes que no dan nada por sentado, que son acogedores y me dan una sensación de tranquilidad y comodidad.
Realmente valoro los ambientes estructurados para que existan espacios dedicados a la gestión operativa diaria, closets, despensas y todo lo que me ayude a mantener todo en orden.
También me gustan los compartimentos de servicio "ocultos".
En el sótano, me gustaría crear la zona de noche, con 2 habitaciones dobles, 1 con baño en suite. En la zona de estar reservada, me gustaría colocar una chimenea, ya que existe la predisposición y también mi estudio que, si es necesario, puede convertirse en una habitación para recibir invitados;
En los baños me encanta la ducha walk in, sin puertas.
En la planta baja, que tiene la mejor vista, me gustaría crear la sala de estar, con un pequeño baño para invitados, que tiene lavabo, inodoro y si también entra el bidé, nada más. Las estancias deben ser amplias, con áreas definidas, así como la cómoda cocina que accede al comedor, pero de la cual permanece separada.
Me gustaría insertar un piano normal.
En referencia a la cocina, estoy acostumbrado a tener una isla central bastante grande, mi isla actual es 250x120 cm, además de amplios y cómodos armarios y muebles altos y un compartimento despensa con fregadero. Me gustaría trasladar el mobiliario de mi cocina, que es un modelo Veneta Cucine Oyster blanco brillante, quizás cambiando las encimeras actuales, en absoluto blanco Okite, en un mármol estatuario, si procede.
En el ático, que es habitable, me gustaría crear un dormitorio, un baño y un vestidor. Al ser un área dedicada a mi hija, a ella le gustaría que los techos tuvieran vigas a la vista.
Mis gustos son multifacéticos, sin embargo me gusta lo bien hecho, mi casa actual está amueblada de forma moderna, pero me encanta lo moderno contemporáneo, me gustan los papeles pintados que también son particulares, me gustan los estilos diferentes y no desdeño lo industrial ni lo rústico. infiltración: entiendo que no puede haber todo…. !
También me encantan los colores, especialmente los verdes y tonos de azul celeste, pero también los tonos neutros, blanco, arena, gris paloma, gris en diversas variaciones.
Me encanta la madera con colores no demasiado cálidos.
Me gustaría colocar parquet en espiga o artesonado en el área de dormir, al menos en el área de estar reservada, mientras que arriba, en el área de estar, estoy disponible para evaluar varios revestimientos. Realmente me encantan los pisos de material que se parecen incluso a piedras oscuras.
***
No necesito área de lavandería, ya que el espacio se dedicará en un área separada de la casa.
En el área de la cocina, en el 1er piso, imaginé que era posible abrir una ventana, con acceso a una pérgola bioclimática, utilizable en verano e invierno.
La calefacción / refrigeración estará en el suelo.
ENG
I have just bought a villa in an area overlooking the Tyrrhenian Sea, where I would like to move permanently, as I wanted green spaces that an apartment in the central area cannot give.
I love living in my home very much. While doing a job that takes me out all day, I have an attention to detail, especially for the construction of environments that take nothing for granted, that are welcoming and give me a sense of tranquility and comfort.
I really appreciate the environments structured so that there are spaces dedicated to daily operational management, closets, pantries and anything else that helps me keep everything in order.
I also like “hidden” service compartments.
In the basement, I would like to create the sleeping area, with 2 double bedrooms, 1 with ensuite bathroom. In the reserved living area, I would like to place a fireplace, given that there is a predisposition and also my study which, if necessary, can become a room for welcoming guests;
In the bathrooms I love the walk in shower, without doors.
On the ground floor, which has the best view, I would like to create the living area, with a small bathroom for guests, which has a sink, toilet and if the bidet also comes in, nothing else. The rooms should be large, with defined areas, as well as the comfortable kitchen that accesses the dining area, but from which it remains separate.
I would like to insert a regular piano.
In reference to the kitchen, I'm used to having a fairly large central island, my current size 250x120 cm, as well as large and comfortable wardrobes and wall units and a pantry compartment with sink. I would like to transfer the furniture of my kitchen, which is a glossy white Veneta Cucine Oyster model, perhaps by changing the current tops, in absolute white Okite, in a statuary marble, if appropriate.
In the attic, which is habitable, I would like to create a bedroom, bathroom and walk-in closet. Being an area dedicated to my daughter, she would like the roofs to have exposed beams ..
My tastes are multifaceted, however I like what is well done, my current house is furnished in a modern way, but I love modern contemporary, I like wallpapers that are also particular, I like different styles and I do not disdain industrial or a rustic infiltration: I understand that there can't be everything…. !
I also love the colors, especially the greens and shades of azure blue, but also the neutral tones, white, sand, dove gray, gray in various variations.
I love wood with not too warm colors.
I would like to place herringbone or coffered parquet in the sleeping area, at least in the reserved living area, while upstairs, in the living area, I am available to evaluate various coatings. I really love material flooring that resembles even dark stones.
***
I don't need an area dedicated to laundry, as the space will be dedicated in a separate area of the house.
In the kitchen area, on the 1st floor, I imagined it was possible to open a window, with access to a bio-climatic pergola, usable in summer and winter.
The heating / cooling will be on the floor