
06190 Roquebrune-Cap-Martin, France
Residenziale - Appartamento
Descrizione
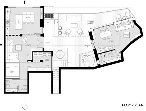
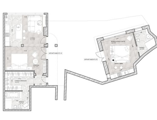
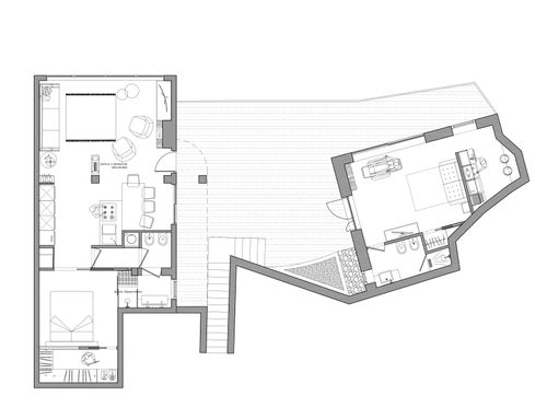
ENGLISH My apartment is in a Provencal style villa, with only 4 apartments, I am on the garden level, I access to my terrace and garden through a private staircase that starts from the floor where you arrive by car. I need to have space for 3 people minimum. My apartment consists of 2 different parts: going down the stairs of the villa you get to my terrace, which divides the 2 parts (A and B). The largest part is an apartment (A) of about 50-52 m2, consisting of: a large window with sea view, 2 Door windows, an entrance door. The second part is an apartment (B) of about 26 m2, built externally in stone, consisting of: entrance door, 2 small windows, a large Door windows with a view towards the mountains. In Apartment A I would like: a bathroom with an floor-level shower with glass, a bedroom, an open walk-in closet, a kitchen with an island. Apartment B I would like to realize: a studio that during the day is a living room, at night is a bedroom, a bathroom with floor-level shower with glass (eventually open in view in the studio), kitchen. In apartment B the large window of 2.3 meters high by 3.0 meters wide, currently does not exist, but will be built with renovation works.
ITALIAN Il mio appartamento si trova in una villa in stile provenzale, con solo 4 appartamenti, io sono al livello del giardino, accedo al mio terrazzo e giardino tramite una scala privata che inizia dal piano dove si arriva in auto. Mi serve avere spazio per 3 persone minimo. Il mio appartamento è composto da 2 parti diverse: scendendo le scale della villa si arriva al mio terrazzo, che divide le 2 parti (A e B). La parte più grande è un appartamento (A) di circa 50-52 m2, composto da: una grande finestra con vista mare, 2 Porte finestra, una porta d'ingresso. La seconda parte è un appartamento (B) di circa 26 m2, costruito esternamente in pietra, composto da: porta d'ingresso, 2 piccole finestre, una grande Porta finestra con vista verso le montagne. Nell’appartamento A vorrei: un bagno con una doccia a vetro a vista e a livello pavimento, una camera da letto, una cabina armadio a vista, una cucina con isola. Appartamento B mi piacerebbe realizzare: monolocale che di giorno è un salone, di notte è una camera da letto, un bagno con doccia a filo pavimento con vetro (eventualmente aperto a vista nel monolocale), cucina. Nell'appartamento B la grande finestra di 2.3 metri di altezza per 3.0 metri di larghezza, attualmente non esiste, ma sarà costruita con i lavori di ristrutturazione.