
Verona, VR, Italia
Commerciale - B&B
Il progetto prevede la definizione degli spazi delle 18 stanze richieste con particolare attenzione al posizionamento e dimensionamento dei bagni e alle relative colonne di scarico. In alcuni casi le linee di scarico correranno orizzontalmente per brevi tratti nel controsofitto dei bagni ai piani inferiori. In ogni caso la colonna degli impianti è isolata acusticamente sia nei tratti verticali che orizzontali con contropareti in cartongesso. E' consigliato anche l'inserimento di un isolamento acustico anticalpestio delle solette orizzontali.
Le camere hanno una superficie media di 43 mq ciascuna e di 7.60 mq per i bagni. In totale si possono ospitare 63 ospiti, 38 nei letti e altri 25 nei divanoletti. Nella maggior parte dei casi il letto aggiuntivo è in una stanza separata rispetto al letto principale. Inoltre spesso il letto matrimoniale può essere separato in due letti singoli.
Come richiesto 15 camere hanno un angolo cottura nella zona living, spesso separata dalla zona notte da una porta. L'angolo cottura sarà mascherato o integrato negli arredi.
Gli arredi disegnati sono indicativi per comprendere le dimensioni degli spazi e possono prevedere boiserie a parete o ampie testiere letto e saranno approfonditi in una seconda fase come indicato nel contest.
I bagni sono ampi (sup media 7.60 mq) di cui 9 con doppio lavabo, 15 con wc e bidet separati, 8 con finestra, 4 con vasca e in genere vano doccia generoso. In molti casi la doccia è un locale separato e può essere dotata di ulteriori comfort quali colonna idromassaggio, cromoterapia e/o sauna/bagno turco.
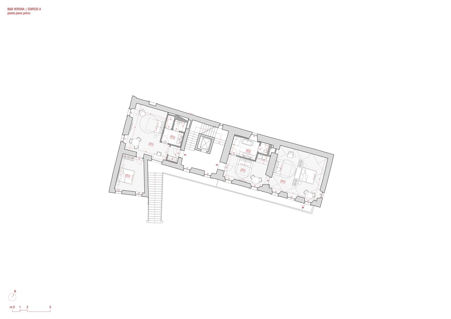
EDIFICIO A
A002: ingresso camera da un giardino privato. Il divano letto può essere separato dalla zona pranzo con una tenda o una parete vetrata. Lo spazio del sottoscala, dedicato al bagno comune, è diventato una comoda cabina armadio. Il bagno comune sarà inserito nella sala colazioni/spazio coworking. In questo modo è più visibile e accessibile a tutti gli ospiti.
A004: ingresso camera da un giardino privato. La stanza è voltata e completamente a vista ad eccezione della colonna di scarico delle camere ai piani superiori.
A102: camera gemella alla A002 tranne per la cabina armadio.
A104: ingresso camera in zona giorno con angolo cottura, bagno con vasca. La stanza voltata ha un arredo centrale che divide la zona letto dal salottino privato. L'armadio ha un altezza di 210-240 cm lasciando visibile l'interezza della volta.
A202: camera su due livelli con scala interna. Al piano inferiore si trova la zona giorno con bagno di servizio mentre al piano superiore la camera principale con bagno completo di doccia e vasca.
EDIFICIO B
Le camere al piano terra hanno accesso da un giardinetto privato.
B002, B008, B108: non hanno angolo cottura viste le ridotte dimensioni.
B004, B104, B106, B108: un elemento d'arredo separa la zona living dalla zona notte.
B010, B012: sono dei bilocali/suite a tutti gli effetti con camere separate dalla zona giorno.
B102: l'ingresso camera prevede un armadio appenderia per le giacche di tutti i gironi e angolo cottura con un piano colazione affiacciato sulla porta finestra che conduce alla scala esterna. Anche in questa camera un elemento d'arredo separa la zona living dalla zona notte.
B110: camera con angolo cottura più ampio con pensiola e tavolo, per soggiorni prolungati nel tempo. Bagno comodo, finestrato e dotato di vasca.
B112: stanza con due camere da letto, una delle quali può avere i letti separabili (CAMERA 112B) e divano letto nella zona living. Anche qui la cucina è più ampia e può essere completamente separata da vetrate apribili.
B202: Il bagno finestrato è l'elemento caratterizzante di questa stanza ed è dotato di lavabo 2 vasche, angolo beauty e vasca da bagno.