
00020 Ciciliano RM, Italy
Residenziale - Zona Giorno/Notte
Descrizione
ITA VERS:
Il progetto è una parete che ha un grande sottoscala in cui inserire la cantinetta e due porte, una a destra e una a sinistra. Potete vedere tutto nelle foto e nei progetti che allego.
Oltre le foto, allego qui due video: https://photos.app.goo.gl/gV8JeJ14YaU3sfzs6
La porta a sinistra, guardando la parete, deve essere una porta a due ante in quanto la larghezza del controtelaio è di 136cm e deve avere l’apertura a saloon. Questa porta, poiché dà verso la sala, dovrà essere di doppio colore: il colore verso la cucina, che come si può vedere dalle immagini allegate, ha la carta da parati bianca e celeste e i mobili bianchi, quindi ho messo degli spunti sul modello della porta e sul suo colore blu/celeste; mentre il colore della porta che affaccia verso la sala, deve essere abbinato alle immagini della sala, che è di stile classico. Questa porta la preferisco a vetri smussati all’inglese nella parte superiore e la parte sotto con pannelli bugnati.
Sopra questa porta, c’è un condizionatore che va rivestito per rendere un tutt’uno con la parete e deve esserci solo il foro per il passaggio dell’aria condizionata.
La porta a destra, dà verso il ripostiglio, quindi deve essere uguale all’altra, ma ad un’anta con apertura a tirare a sinistra e poiché avrà sempre i vetri, ci va messa qualche rifinitura, tipo delle tendine carine di vedo - non vedo
C’è poi una terza porta che non è in questa parete, ma sta nella sala, prima della scale per salire al secondo piano e è la porta per il bagno e poiché anche questa, dà verso la sala, deve riprenderne lo stile, seppur resta una porta per il bagno, ma sempre con vetri, chiaramente opachi o comunque non trasparenti
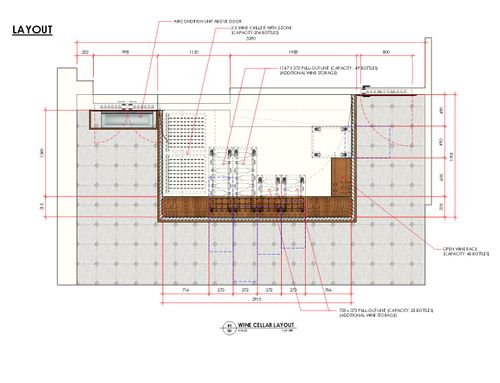
Il fulcro del progetto è il sottoscala che da sempre mi tormenta, infatti avere questo grande ingombro all’interno della sala da pranzo mi dà molto fastidio a causa della sua strana forma e l’idea che vorrei avere per ridurre l’impatto è quella di inserirci dentro una cantinetta di vini in modo da valorizzarla e, cosa fondamentale, che sia invisibile, cioè non si deve percepire che sia un sottoscala, ma deve apparire come un unico corpo, come se fosse un mobili intero dal soffitto al pavimento, cambiandone anche un po’ la forma se si vuole testare dei disegni, cioè ora è tonda, ma potrebbe andar bene anche esagonale o altro.
La cantinetta deve cercare di sfruttare tutta la profondità del sottoscala, anche se le bottiglie devono poi essere messe al perimetro, ma la profondità va sfruttata con dei cassetti o armadi che si estraggono o soluzioni alternative. Deve contenere almeno 200 bottiglie in totale, ma credo si riesca ad inserirne di più.
Va divisa in due spazi, una con più impatto visivo che è quella frontale e con le bottiglie che non staranno dentro il frigo, mentre sulla parte sinistra più alta, ci dovrà essere il frigo cantinetta, con almeno due temperature diverse, meglio se fossero tre.
Infatti nel progetto chiedo che ci sia la lista dei materiali da comprare, quindi inclusa la cantinetta frigo.
Mi raccomando di curare al meglio l'illuminazione di tutte le aree della cantinetta.
Allego diverse immagini solo come spunti, ma amo avere idee che, dopo aver compreso il mio stile, siano originali e mi sorprendano in positivo. Infatti l’utilizzo di questo servizio è proprio per cercare di trovare idee originali. Usai tempo fa un architetto, ma non mi soddisfò ed è quello che ha fatto i disegni/bozze allegati. Spero davvero di trovare qualcuno che riesca a risolvere il mio problema
ENG VERS:
The project is a wall that has a large basement in which to insert the wine cellar and two doors, one on the right and one on the left. You can see everything in the photos and projects that I attach.
In addition to the photos, I attach two videos here: https://photos.app.goo.gl/gV8JeJ14YaU3sfzs6
The door on the left, looking at the wall, must be a two-leaved door as the counterframe width is 136cm and must have a saloon opening. This door, as it faces the room, must be double in color: the color towards the kitchen, which as you can see from the attached images, has white and light blue wallpaper and white furniture, so I put some ideas on the model of the door and its blue / light blue color; while the color of the door that faces towards the hall, must be combined with the images of the hall, which is of classic style. I prefer this door with English beveled glass in the upper part and the lower part with rusticated panels.
Above this door, there is an air conditioner that must be covered to make it one with the wall and there must be only the hole for the passage of air conditioning.
The door on the right, leads to the closet, so it must be the same as the other, but with a door with an opening to pull to the left and since it will always have the glass, it needs some finishing, like the cute curtains I see - not I see
Then there is a third door which is not in this wall, but is in the hall, before the stairs to go up to the second floor and is the door to the bathroom and since this too, it gives to the hall, it must resume its style, albeit there remains a door to the bathroom, but always with glass, clearly opaque or otherwise non-transparent
The fulcrum of the project is the basement that has always tormented me, in fact having this large footprint inside the dining room annoys me because of its strange shape and the idea that I would like to have to reduce the impact is to insert a wine cellar in it in order to enhance it and, fundamentally, that it is invisible, that is, it must not be perceived as a basement, but must appear as a single body, as if it were an entire piece of furniture from the ceiling to the floor, also changing the shape is a bit if you want to test the designs, that is, it is now round, but hexagonal or other could also be fine.
The wine cellar must try to exploit the full depth of the basement, even if the bottles must then be placed at the perimeter, but the depth must be exploited with drawers or wardrobes that are extracted or alternative solutions. It must contain at least 200 bottles in total, but I think we can insert more.
It must be divided into two spaces, one with a more visual impact which is the front one and with the bottles that will not be inside the fridge, while on the upper left side, there must be the wine cellar fridge, with at least two different temperatures, better if they were three .
In fact, in the project I ask that there is a list of materials to buy, therefore including the fridge cellar.
I recommend taking care of the lighting of all areas of the wine cellar.
I attach several images only as ideas, but I love having ideas that, after understanding my style, are original and positively surprise me. In fact, the use of this service is precisely to try to find original ideas. I used an architect some time ago, but it didn't satisfy me and that's what made the drawings / drafts attached. I really hope to find someone who can solve my problem
SPA VERS:
El proyecto es una pared que tiene una alacena debajo la escalera en el que se pondrá una bodega y dos puertas, una a la derecha y otra a la izquierda. Puedes ver todo en las fotos y proyectos que adjunto.
Además de las fotos, adjunto dos videos aquí: https://photos.app.goo.gl/gV8JeJ14YaU3sfzs6
La puerta de la izquierda, mirando hacia la pared, debe ser de dos hojas, ya que el ancho del contramarco es de 136 cm y debe tener una abertura hacia el salón. Esta puerta, que da a la habitación, debe ser de doble color: el color hacia la cocina, que como se puede ver en las imágenes adjuntas, tiene papel tapiz blanco y azul claro y muebles blancos, así que pongo algunas ideas sobre el modelo de la puerta y su color azul / azul claro; mientras que el color de la puerta que mira hacia la sala, debe combinarse con las imágenes de la sala, que es de estilo clásico. Prefiero esta puerta con vidrio biselado inglés en la parte superior y la parte inferior con paneles rústicos.
Sobre esta puerta, hay un aire acondicionado que debe cubrirse para que quede uno con la pared y solo debe haber un orificio para el paso del aire.
La puerta de la derecha conduce a la despensa, por lo que debe ser la misma que la otra, pero con una puerta con una abertura para tirar hacia la izquierda y como siempre tendrá el vidrio, debe haber algún acabado, como las lindas persianas enrollables.
Luego hay una tercera puerta que no está en esta pared, pero está en el salón, antes de las escaleras para subir al segundo piso y es la puerta del baño y como esto también da al salón, debe reanudar su estilo, aunque sea una puerta de baño, siempre con vidrio, claramente opaco o no transparente.
El centro del proyecto es la escalera que siempre me ha atormentado, de hecho, tener esta gran huella dentro del comedor me molesta debido a su forma extraña y la idea de que me gustaría reducir el impacto es inserte una bodega para mejorarla y, fundamentalmente, que sea invisible, es decir, que no debe percibirse como una alacena debajo la escalera, sino que debe aparecer como un solo cuerpo, como si fuera un mueble completo desde el techo hasta el piso, también cambiándolo la forma es un poco si quieres probar los diseños, es decir, ahora es redonda, pero hexagonal u otro también podría estar bien.
La bodega debe tratar de abarcar toda la profundidad de la escalera, incluso si las botellas deben colocarse en el perímetro, pero la profundidad debe explotarse con cajones o armarios que se extraen o soluciones alternativas. Debe contener al menos 200 botellas en total, pero creo que podemos insertar más.
Debe dividirse en dos espacios, uno con un impacto más visual que es el frontal y con las botellas que no estarán dentro del refrigerador, mientras que en la parte superior izquierda, debe estar el refrigerador de la bodega, con al menos dos temperaturas diferentes, mejor si fueran tres .
De hecho, en el proyecto pido que haya una lista de materiales para comprar, por lo tanto, incluido el refrigerador.
Recomiendo cuidar la iluminación de todas las áreas de la bodega.
Adjunto varias imágenes solo como ideas, pero me encanta tener ideas que, después de comprender mi estilo, son originales y me sorprenden positivamente. De hecho, el uso de este servicio es precisamente para tratar de encontrar ideas originales. Utilicé un arquitecto hace algún tiempo, pero no me satisfizo y es quien hizo los dibujos / borradores adjuntos. Realmente espero encontrar a alguien que pueda resolver mi problema.