
Naples, Metropolitan City of Naples, Italy
Residenziale - Appartamento
Descrizione
ENG VERS
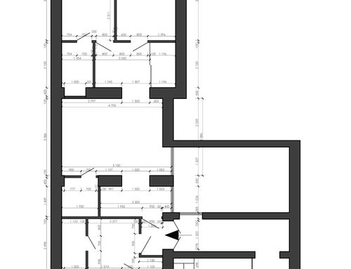
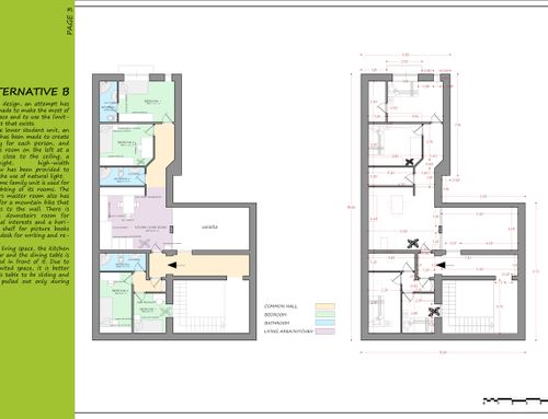
I love light colors that allow you to amplify light and space. I value functionality in space; built-in wardrobes to store clothes, books and objects and to hide from view. It is important for me to have two apartments: a smaller / two-room apartment and a larger three-room apartment. I would like to rent the smaller one to university students and it needs at least two beds. The other apartment has two rooms for my two sons, aged 22 and 23. The former needs space for his mountain bike and a basic personal bathroom (shower and toilet). The other needs a wall of shelves to display his vast comic book collection. The third room should be a welcoming kitchen for everyone during the day, offering space to allow a couple to dance. However, at night it should be able to turn into a bedroom, possibly with a queen-size bed. I would like that every room has a detail in the shape of an "L" (in capital italics), even in the ceiling stucco.
My sons’ rooms are twins and each consist of:
FOR THE MAJOR APARTMENT
BEDROOM
- wardrobe 244x60x180
- vertical shelves (n. 2) 47x35x246
- horizontal shelf (n. 1.) 140x28x31
- bedside table 48x39x48
- sofa bed 200x88x82
- desk. 150x83x75
KITCHEN
- sideboard 181x60x223
- table.130x80x77
- mob. kitchen 360x60x240
- living room modules (n. 3) 80x50x36
- living room (no. 1) with 4 doors. 120x33x120
FOR THE MINOR APARTMENT
- table 90x50x75
-equipped wall 231x45x180
-desk 143x61x78
FOR THE BATHROOM
- cabinet 70x38x33
The measurements are in cm and in the order:
Length x Width x Height
Heartfelt thanks and looking forward to seeing your good work!
SPA VERS
Me encantan los colores claros que te permiten capturar y amplificar la luz y el espacio. Quiero funcionalidad y espacio. Armarios empotrados para guardar ropa, libros y objetos, para esconderse de la vista. Es importante para mí obtener dos apartamentos: un apartamento más pequeño de una o dos habitaciones y el otro apartamento más grande de tres habitaciones. Me gustaría alquilar el menor a jóvenes universitarios y debe contener al menos dos camas. El otro apartamento me gustaría que tuviera dos habitaciones para mis dos hijos de 22 y 23 años. El primero necesita espacio para la bicicleta de montaña de tamaño L y un baño personal básico (ducha e inodoro). El otro, en cambio, necesita una pared de estantes para mostrar la rica colección de cómics. La tercera habitación debe ser una cocina acogedora para todos durante el día, ofreciendo también espacio para que una pareja baile pero por la noche convertirse en un dormitorio, posiblemente con una cama queen size. Me gustaría que en cada habitación hubiera un detalle en forma de "L" pero en cursiva mayúscula, tal vez también en el techo de estuco.
Las habitaciones de los niños son iguales y cada una se compone de:
PARA EL APARTAMENTO PRINCIPAL
HABITACIÓN
- armario 244x60x180
- estantes verticales n. 2 47x35x246
- estante horizontal norte. 1. 140 x 28 x 31
- mesita de noche 48x39x48
- sofá cama 200x88x82
- escritorio. 150 x 83 x 75
COCINA
- aparador 181x60x223
- mesa 130x80x77
- muebles cocina 360x60x240
- módulos de sala n. 3 80x50x36
- sala de estar no. 1 con 4 puertas. 120x33x120
PARA EL APARTAMENTO MENOR
- mesa 90x50x75
-pared equipada 231x45x180
-escritorio 143x61x78
PARA EL BAÑO
- mueble 70x38x33
Las medidas están en cm y en el orden:
Largo ancho alto
Gracias de todo corazón y buen trabajo
ITA VERS
Amo i colori chiari che permettono di catturare e amplificare luce e spazio. Desidero la funzionalita' è spazio. Armadi a muro per riporre abiti, libri e oggetti, da noscondere alla vista. È importante per me ricavare due appartamenti: uno mono/bilocale più piccolo e l'altro appartamento trilocale maggiore. Il minore vorrei darlo in affitto a giovani universitari e dovrà contenere almeno due posti letto. L'altro appartamento vorrei avesse due camere per i miei due ragazzi di 22 e 23 anni. Il primo ha bisogno di spazi per la mountain bike di misura L e un bagno personale essenziale (doccia e water). L'altro ha invece bisogno di una parete di scaffali per esporre la ricca collezione di fumetti. La terza stanza deve essere cucina accogliente per tutti di giorno, offrire spazio anche per consentire ad una coppia di ballare ma di notte trasformarsi in una camera da letto, possibilmente con letto di una piazza e mezzo. Mi piacerebbe che in ogni stanza vi fosse un particolare a forma di " L" ma in corsivo maiuscola, fosse pure negli stucchi del soffitto.
Le camere dei ragazzi sono gemelle e sono composte ciascuna da:
PER L'APPARTAMENTO MAGGIORE
CAMERA DA LETTO
- armadio 244x60x180
- scaffali verticali n. 2 47x35x246
- scaffale orizz. n. 1. 140x28x31
- comodino 48x39x48
- divano letto 200x88x82
- scrivania. 150x83x75
CUCINA
- credenza 181x60x223
- tavolo.130x80x77
- mob. cucina 360x60x240
- moduli soggiorno n. 3 80x50x36
- pensile soggiorno n. 1 con 4 ante. 120x33x120
PER L'APPARTAMENTO MINORE
- tavolo 90x50x75
- parete attrezzata 231x45x180
- scrivania 143x61x78
PER IL BAGNO
- mobile 70x38x33
Le misure sono in cm e nell'ordine:
lunghezza/larghezza/altezza
Grazie. Buon lavoro