
Riyadh Saudi Arabia
Residenziale - Casa
Descrizione
ENG
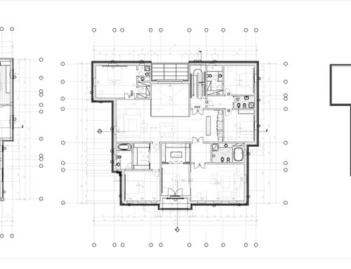
This house was built 9 years ago and needs full renovation of the interior and exterior with minor wall demolition work. We want to keep a similar architectural style of the house but make it softer and more french. I have as-built CAD drawings of the house. The grandfather's room will be converted into an office and the grandmother's room will become an art room. I will upload a draft layout of the desired changes.
SPA
Esta casa fue construida hace 9 años y necesita una renovación completa del interior y exterior con trabajos menores de demolición de paredes. Queremos mantener un estilo arquitectónico similar de la casa, pero que sea más suave y más francés. Tengo planos CAD construidos de la casa. La habitación del abuelo se convertirá en una oficina y la habitación de la abuela se convertirá en una sala de arte. Cargaré un borrador de diseño de los cambios deseados.
FRA
Cette maison a été construite il y a 9 ans et nécessite une rénovation complète de l'intérieur et de l'extérieur avec des travaux de démolition mineurs. Nous voulons conserver un style architectural similaire à la maison, mais la rendre plus douce et plus française. J'ai des dessins CAD de la maison tels que construits. La chambre du grand-père sera transformée en bureau et la chambre de la grand-mère deviendra une salle d'art. Je vais télécharger un brouillon de mise en page des modifications souhaitées.
ITA
Gentili designer, questa casa è stata costruita 9 anni fa e necessità di una completa ristrutturazione degli interni e degli esterni. Mi piacerebbe ridurre al minimo la demolizione delle pareti. Vorremmo mantenere più o meno lo stesso stile di adesso, ma rendendolo più morbido e con degli accenti francesi. Allego i CAD della casa come è stata costruita. La granfather room segnata in pianta verrà convertita in un ufficio e la grandmother room verrà convertita in una stanza hobby/artistica. Allegherò una bozza fatta da noi dei cambiamenti desiderati.