
20015 Parabiago, Metropolitan City of Milan, Italy
Commerciale - Ristorante
Descrizione
Gentili Designer,
Il mood per questo progetto una volta ultimato è:” Food & Hospitality” far trascorrere dei piacevoli, gustosi e raffinati momenti agli associati.
Riservatezza, contemporaneità, che non stanchi mai.
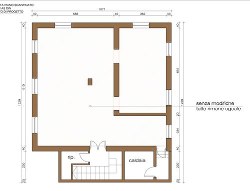
Vorrei realizzare al piano rialzato una sala ristorante, al piano primo 2 stanze indipendenti con bagno privato ed al piano interrato uno spazio multiuso (es: sala corsi cucina/sommelier)
N.B.:non sono richieste modifiche strutturali ma gradirei soluzioni di organizzazioni degli spazi e ingombri in base a quanto indicato sopra.
Il set cucina deve rimanere così com’è in quanto le preparazioni saranno tutte home made.
Grazie e buon progetto.
Cordiali saluti.
AB
---------------------
Dear Designers,
Once completed, the mood for this project is: "Food & Hospitality" to let the associates spend pleasant, tasty and refined moments.
Confidentiality, contemporaneity, that never get tired.
I would like to create a restaurant room on the mezzanine floor, 2 independent rooms with private bathroom on the first floor and a multipurpose space in the basement (e.g. kitchen / sommelier training room)
N.B .: no structural changes are required but I would appreciate solutions of organization of spaces and dimensions based on what is indicated above.
The kitchen set must remain as it is as the preparations will all be home made.
Thanks and have a good project.
Best regards,
AB
-------------------------------
Estimados diseñadores,
Una vez completado, el ambiente de este proyecto es: "Food & Hospitality" para que los asociados pasen momentos agradables, sabrosos y refinados.
Confidencialidad, contemporaneidad, que nunca se cansan.
Me gustaría crear una sala de restaurante en la entreplanta, 2 habitaciones independientes con baño privado en el primer piso y un espacio polivalente en el sótano (por ejemplo, cocina / sala de formación de sumiller)
N.B.: no se requieren cambios estructurales pero agradecería soluciones de organización de espacios y dimensiones en base a lo indicado anteriormente.
El menaje de cocina debe quedar como está ya que los preparativos serán todos caseros.
Gracias y que tengas un buen proyecto.
Atentamente.
AB