Descrizione
ENG:
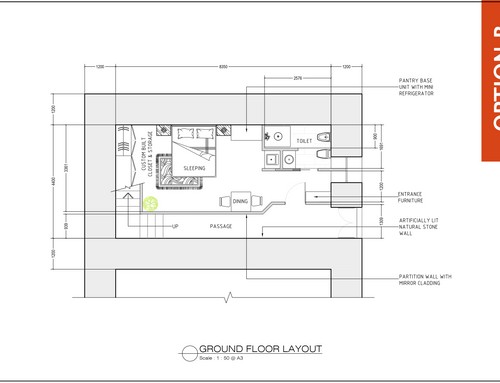
Establishment of a B&B by creating a corridor to access the second room on the upper floor, where a bathroom will need to be constructed. The existing bathroom on the lower floor can also be relocated to another side of the room.
ESP:
Establecimiento de un B&B creando un pasillo para acceder a la segunda habitación en el piso superior, donde se deberá construir un baño. El baño existente en el piso inferior también puede ser trasladado a otro lado de la habitación.
ITA:
Realizzazione di un B&B creando un corridoio per accedere alla seconda stanza sul piano superiore in cui dovrà essere realizzato un bagno e il bagno esistente al piano inferiore potrà anche essere spostato su un altro lato della stanza.