
43035 Felino PR, Italy
Commerciale - Altro
Descrizione
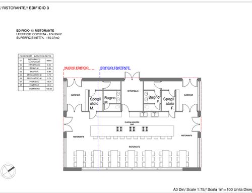
Avvio questo contest per la progettazione preliminare (piante e prospetti) di un'azienda agricola/agriturismo con un micro birrificio e un piccolo frantoio. Vorrei realizzare un'area degustazione / ristorante e anche un forno per pizza e pane, magari rinnovando quello esistente. Sarebbe anche importante avere una rimessa per gli attrezzi. Non è necessario ma se possibile mi piacerebbe trovare un posto per la sistemazione in B&B. Avendo anche un vigneto sarebbe fantastico poter utilizzare la zona per il birrificio anche per pigiare l'uva e avere una cantina ipogea dove lavorare il mosto. Il lotto su cui sorgono gli edifici esistenti è di circa 4000mq. I fabbricati sono un casale libero su tre lati di circa 200 mq in pianta. Un forno di 13 mq in pianta. Un edificio residenziale di circa 100mq in pianta e una barchessa di circa 120mq in pianta. Ho la planimetria degli edifici e del lotto in formato .dwg.
I start this contest for the preliminary design (plans and elevations) of a farm / farm house with a micro brewery and a small oil mill. I would like to create a tasting / restaurant area and also an oven for pizza and bread, perhaps renovating the existing one. It would also be important to have a tool shed. It is not necessary but if possible I would like to find a place for B&B accommodation. Having also a vineyard it would be fantastic to be able to use the area for the brewery also to press the grapes and have an underground cellar where to work the must. The lot on which the existing buildings stand is about 4000sqm. The buildings are a free farmhouse on three sides of about 200 square meters in plan. An oven of 13 square meters in plan. A residential building of about 100sqm in plan and a barn of about 120sqm in plan. I have the floor plan of the buildings and the lot in .dwg format.
Empiezo este concurso para el diseño preliminar (planos y alzados) de una finca / cortijo con una microcervecería y una pequeña almazara. Me gustaría crear un área de degustación / restaurante y también un horno para pizza y pan, quizás renovando el existente. También sería importante tener un cobertizo para herramientas. No es necesario, pero si es posible, me gustaría encontrar un lugar para alojamiento en B&B. Teniendo también un viñedo sería fantástico poder utilizar el área de la cervecería también para prensar la uva y tener una bodega subterránea donde trabajar el mosto. El lote sobre el que se encuentran los edificios existentes es de unos 4000m2. Los edificios son una masía libre en tres lados de unos 200 metros cuadrados en planta. Un horno de 13 metros cuadrados en planta. Un edificio residencial de unos 100m2 en planta y un granero de unos 120m2 en planta. Tengo el plano de los edificios y el lote en formato .dwg.