
Milan, Metropolitan City of Milan, Italy
Residenziale - Appartamento
Descrizione
ENG:
Concept Ausonio living
Keywords: industrial - New York - urban - Soho - Material
warm and intimate place integrated into the urban fabric and the concept of the property.
Usage and description:
Second home and lease use under construction Ausonio living project in central Milan https://www.ausoniomilano.it/
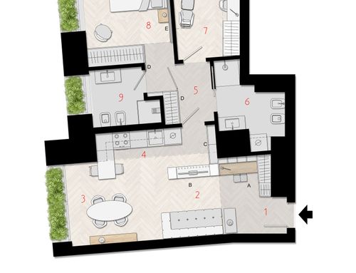
First floor without balconies total 82sqm
The style we would like to give to the house is urban with a hint of industrial. We like the style of New York Soho.
What we love:
The brightness
The wallpapers (ref London Art)
Spaces for books and objects
Creative wall painting
Multifunctional spaces
The green
Functional aspects of the house.
2 bedrooms -2 bathrooms. In the small room, provide a study corner
Maximize storage areas (there is no cellar or high-altitude deposits)
The kitchen is an integral part of the living room and we would like a suspended cabinet for spices and glasses above the worktop
Warm materials such as stone - wood
Led illumination
I enclose the specifications of the company where the materials and finishes are reported
In particular parquet floors in pure oak essence and bathroom floors made of Marazzi porcelain stoneware tiles or similar, available in the following alternatives:- Marazzi Mystone Gris Fleury
We provide custom-made furniture and wardrobes to maximize space
Socket arrangement to be studied according to the lighting
To be evaluated outside the specifications for floors and walls.
Budget 20K
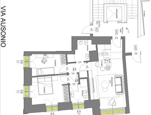
Documentation: Elevated plan - Furnishing arrangement plan from commercial offer - commercial documentation and specifications.
Ideas and suggestions (reference images):
https://www.houzz.it/ideabooks/170217374/thumbs/idee-per-ausonio-living
SPA:
Concepto de vida Ausonio
Palabras clave: industrial - Nueva York - urbano - Soho - Material
Lugar cálido e íntimo integrado en el tejido urbano y el concepto del edificio.
Uso y descripción:
Segunda vivienda y uso de arrendamiento en construcción Proyecto residencial Ausonio en el centro de Milán https://www.ausoniomilano.it/
Primer piso sin balcones total 82m2
El estilo que queremos darle a la casa es urbano con un toque industrial. Nos gusta el estilo del Soho de Nueva York.
Lo que amamos:
El brillo
Los fondos de pantalla (ref London Art)
Espacios para libros y objetos.
Blanqueo con geometrías
Espacios multifuncionales
El verde
Aspectos funcionales de la casa.
2 dormitorios -2 baños. En la habitación pequeña, proporcione un rincón de estudio.
Maximizar las áreas de almacenamiento (no hay bodega ni depósitos de gran altura)
La cocina es una parte integral del salón y nos gustaría colocar un mueble suspendido para especias y vasos encima de la encimera.
Materiales cálidos como la piedra - madera
iluminación led
Adjunto las especificaciones de la empresa donde se informan los materiales y acabados.
En particular, suelos de parquet en pura esencia de roble y suelos de baño fabricados con gres porcelánico de Marazzi o similar, disponibles en las siguientes alternativas:- Marazzi Mystone Gris Fleury
Proporcionamos muebles y armarios hechos a medida para maximizar el espacio.
Disposición de enchufes a estudiar según la iluminación.
A evaluar fuera de las especificaciones para pisos y paredes.
Presupuesto 20K
Documentación: Plano elevado - Plano de disposición de mobiliario de oferta comercial - Documentación comercial y especificaciones.
Ideas y sugerencias (imágenes de referencia):
https://www.houzz.it/ideabooks/170217374/thumbs/idee-per-ausonio-living
ITA:
Concept Ausonio living
Keywords: industriale - newyorchese - urbano - Soho - Materico
luogo caldo ed intimo integrato nel tessuto urbano e nel concept dell'immobile.
Utilizzo e descrizione:
Seconda casa e uso locazione in costruzione progetto Ausonio living in Milano centro https://www.ausoniomilano.it/
Primo piano senza balconi totali 82mq
Lo stile che vorremmo dare all'abitazione è urbano con un pizzico di industriale. Ci piace lo stile del soho di new york.
Cosa amiamo:
La luminosità
Le carte da parati (rif London Art)
Gli spazi per libri ed oggettistica
Imbiancatura con geometrie
Spazi polifunzionali
Il verde
Aspetti funzionali dell’abitazione.
2 camere -2 bagni. In camera piccola prevedere angolo studio
Massimizzare le aree di stoccaggio (mancano la cantina o depositi in quota)
La cucina è parte integrante del living e ci piacerebbe un mobile sospeso porta spezie e bicchieri sopra il piano lavoro
Materiali caldi tipo pietra - legno
Illuminazione a led
Allego il capitolato dell'impresa dove sono riportati i materiali e le finiture
In particolare pavimenti in parquet in essenza rovere puro e pavimenti dei bagni realizzati in piastrelle di gres porcellanato Marazzi o similare, disponibili nelle seguenti alternative:- Marazzi Mystone Gris Fleury
Prevediamo Mobili ed armadiature su misura per massimizzare spazio
Disposizione prese da studiare in funzione della illuminazione
Da valutare fuori capitolato per pavimenti e rivestimenti.
Budget 20K
Documentazione: Pianta quotata - Pianta disposizione arredi da offerta commerciale - documentazione commerciale e capitolato.
Idee e suggestioni (immagini di riferimento) :
https://www.houzz.it/ideabooks/170217374/thumbs/idee-per-ausonio-living