Milan, Italy
Residenziale - Appartamento
Descrizione
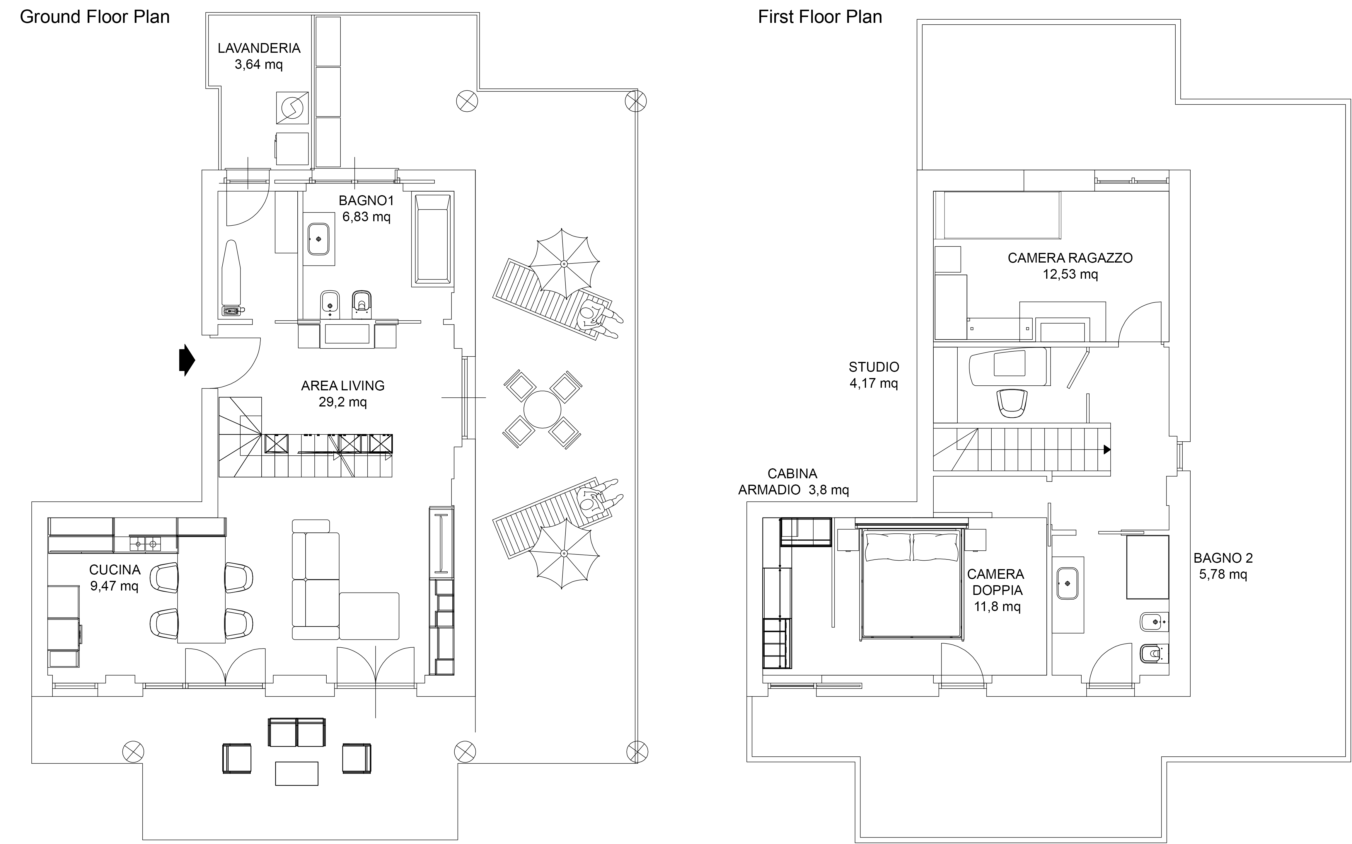
Lo stato di fatto è quello evidente nel DWG, ove sono 2 bagni (1 per piano), uno spazio predisposto per la cucina, una colonna per scarichi tecnici (non portante) ed una scala.
L'appartamento è nuovo, mai abitato TUTTO da riprogettare e rifinire (quindi non considerate i bagni, né che la cucina debba rimanere ove pensata al momento).
Le nostre richieste IMPRESCINDIBILI:
- piano inferiore zona giorno, un bagno con vasca, cucina aperta sul living (cucina renderizzata come da ultima immagine), zona ripostiglio/lavanderia (lavatrice + asciugatrice);
- piano superiore: bagno con box doccia (almeno da 80x120), 2 camere da letto (una matrimoniale una per un bambino...tra 10 anni adolescente!) ciascuna con il proprio guardaroba. (il piano superiore presente altezza di 2,20m nel lato più basso (lato NORD, camera da 12mq) a salire fino a 2,80m (lato SUD camera matrimoniale);
- non vogliamo bagno con accesso da una camera;
Richieste DESIDERATA:
- zona/locale studio
- sfruttare AL MEGLIO lo spazio sul terrazzo; **AGGIORNAMENTO** HO VISTO STRUTTURE IN ALLUMINIO CHIUDIBILI SUI LATI DA TELI IN PVC (https://www.corradi.eu/it/prodotti/pergotenda.html) FATTIBILI A MILANO ED ESTETICAMENTE GRADEVOLI.
COSE IMPORTANTI:
- valutiamo anche la possibilità di spostare la scala, tagliando parte della soletta;
- valutiamo anche la possibilità di spostare la colonna di scarichi (se possibile) - posteremo planimetrie con dettagli tecnici);
STILE:
moderno
Risorse