Roma, RM, Italia
Residenziale - Appartamento
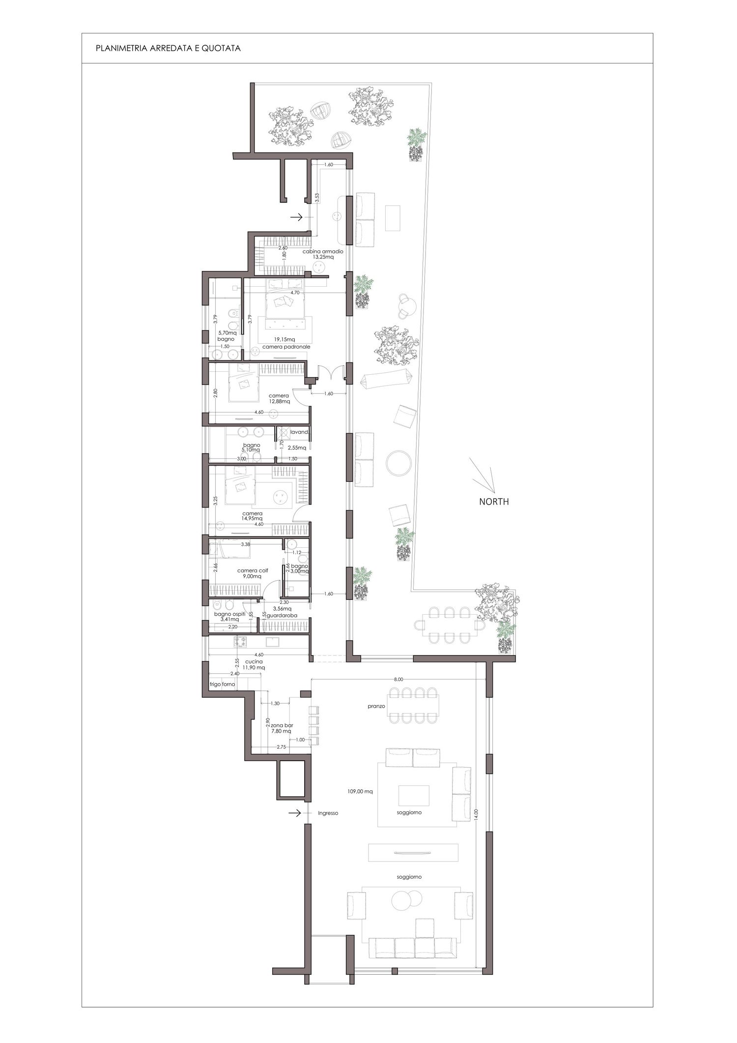
Il progetto prevede un grande doppio salone open space, in cui la zona conversazione si apre sull'ingresso; zona pranzo fronte cucina; una cucina che resta nello stesso ambiente ma viene fatta comunicare con la zona pranzo e si aggiunge un'area penisola con angolo bar.
Vicino la cucina, un bagno ospiti con guardaroba e la stanza della colf con il bagno.
A seguire la zona notte con due grandi camere con bagno comune e area lavanderia.
La zona in fondo viene tutta dedicata alla camera padronale con un'ampia camera con affaccio sul terrazzo, bagno privato e grande cabina armadio con zona trucco ed ingresso indipendente.
Il terrazzo viene distribuito con una zona pranzo vicino la cucina, zona relax salotto e la parte in fondo riservata per la camera padronale.