
Roma, RM, Italia
Residenziale - Appartamento
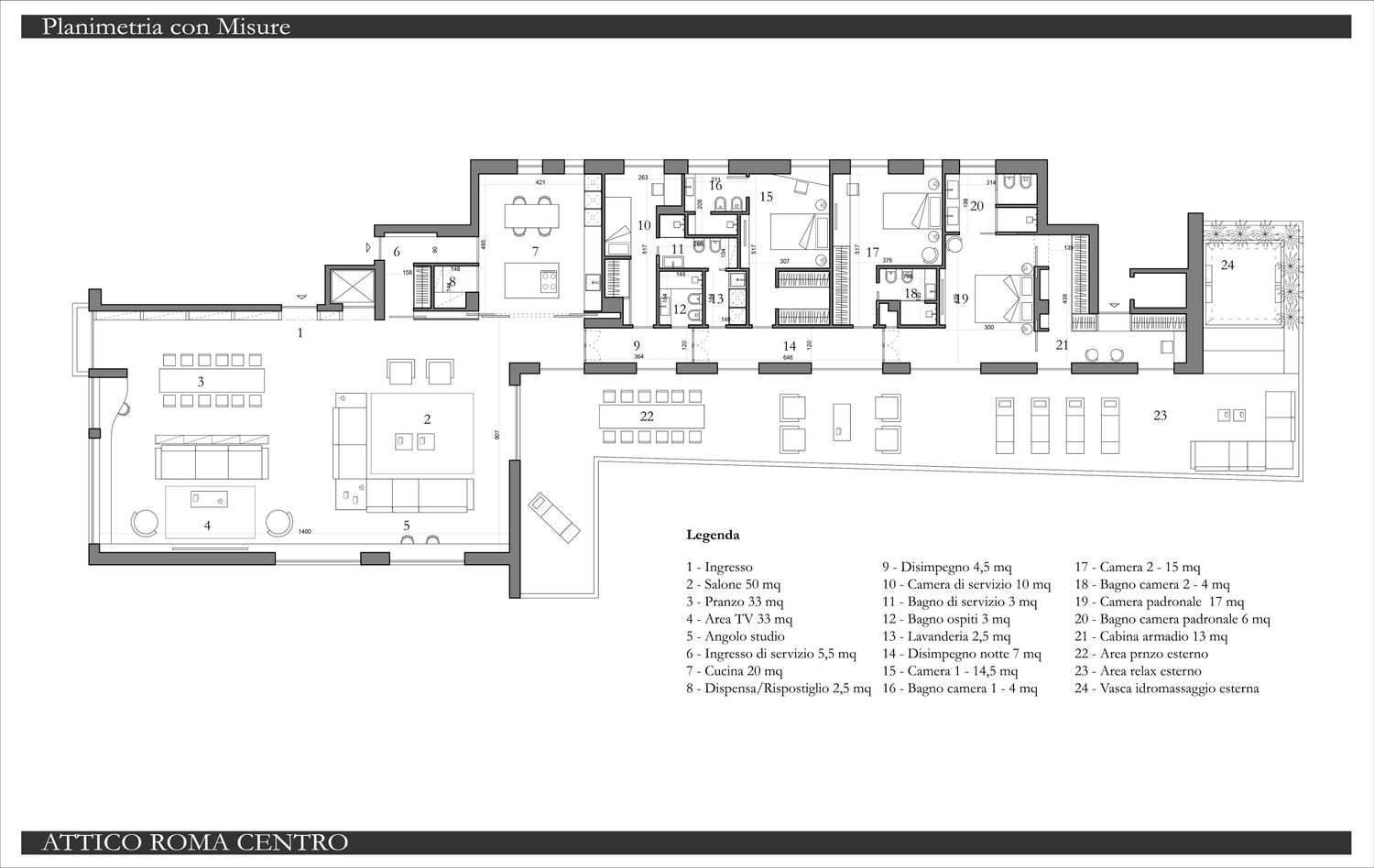
La soluzione progettuale proposta è stata sviluppata seguendo le seguenti linee guida:
Le richieste del cliente
Si è cercato di individuare una soluzione in grado di soddisfare tutte le esigenze espresse.
La fruibilità e la funzionalità degli ambienti
L’obiettivo è stato ottimizzare la distribuzione interna e il posizionamento degli arredi, realizzando spazi dalla forma il più possibile regolare.
La fattibilità dell’intervento in vista della sua effettiva realizzazione
Particolare attenzione è stata posta alla realizzazione dell’impianto idraulico, mantenendo in considerazione la posizione attuale degli scarichi dei bagni e cercando, per quanto possibile, di collocare i nuovi ambienti bagno e cucina nelle loro vicinanze.
Il rispetto dei regolamenti edilizi comunali
Tutte le norme edilizie previste sono state rispettate, comprese quelle relative alle dimensioni minime degli ambienti, all’illuminazione naturale, ai rapporti aeroilluminanti e agli affacci.
Lo sfruttamento della luce naturale
Nelle tavole allegate è possibile trovare informazioni più dettagliate sulle scelte progettuali e alcuni suggerimenti d’arredo.
Mi auguro che la soluzione proposta sia di vostro gradimento