
Roma, RM, Italia
Residenziale - Appartamento
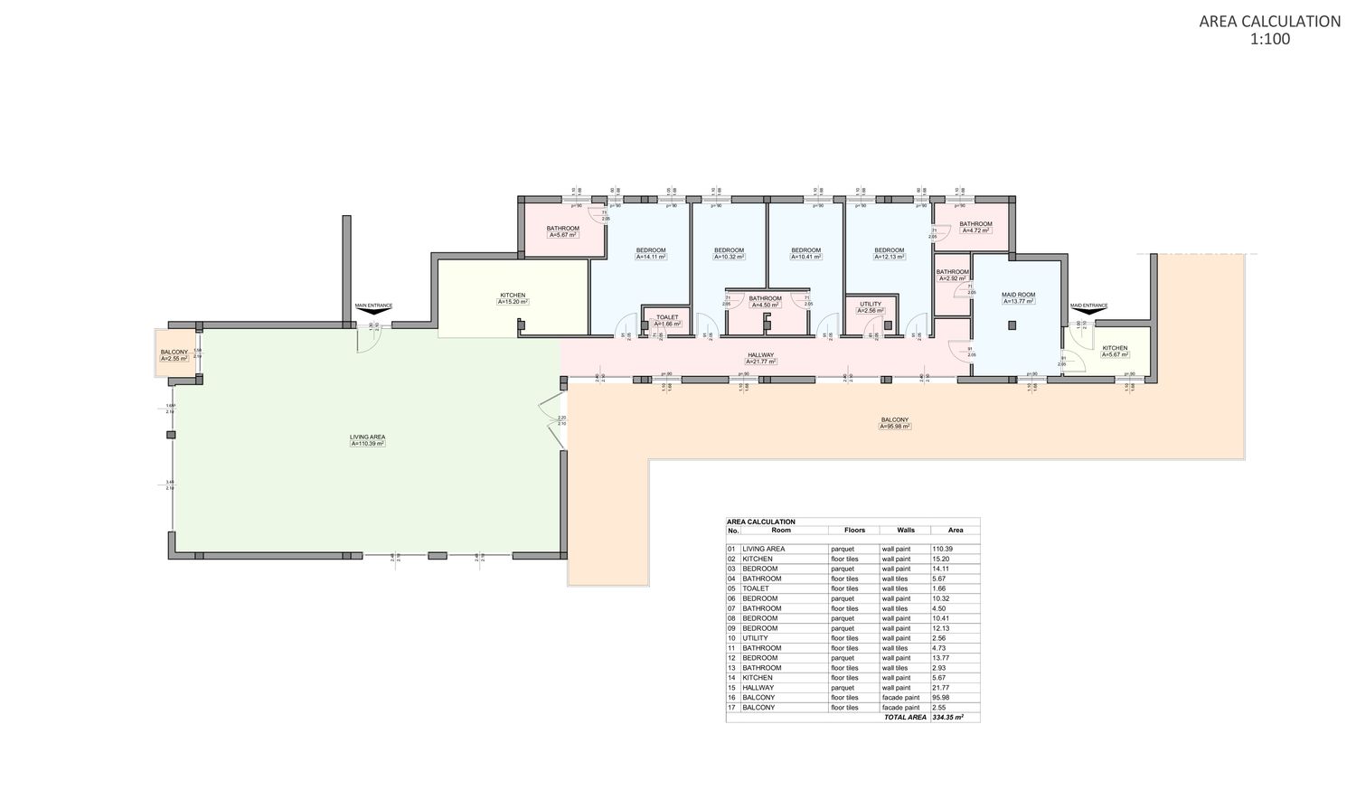
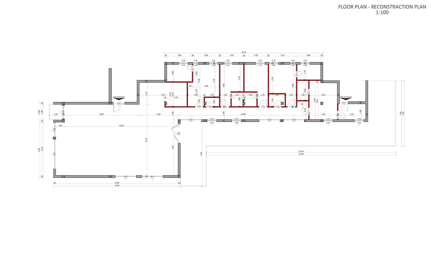
The apartment features an expansive open-plan layout that emphasizes light, flow, and spaciousness. Upon entering, a small foyer composed of built-in closets leads into a wide living area divided into three zones: a fully open dining area, an open living area, and a TV area separated by a semi-transparent partition.
The living room serves as a comfortable central hub, designed with elegant furnishings, warm textures, and unobstructed sightlines toward the dining and kitchen spaces.
Outdoor space is another highlight, featuring a wide balcony that extends the living area and provides room for seating, greenery, or even an outdoor dining setup.
Overall, the apartment combines comfort, luxury, and functionality, resulting in a refined interior tailored for modern living.