
08100 Nuoro, Province of Nuoro, Italy
Residenziale - Appartamento
Descrizione
ENG:
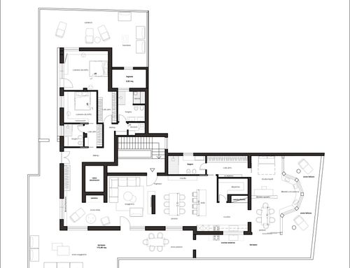
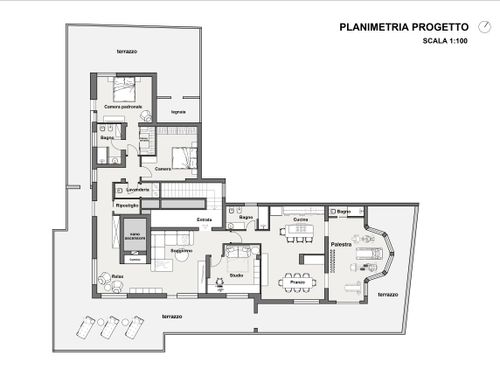
Being an attic with a panoramic terrace, I would like the interior and exterior to blend in an essential, elegant, not very modern style, I don't like black, I like materials such as parquet, planks, but also cement and resin.
For these reasons I would be curious to see what my house would look like in different versions. The building dates back to the 70s and my apartment is in the shape of a horseshoe and overlooks the terrace which extends along the entire front, therefore
very bright .
SPA:
Al ser un ático con terraza panorámica, me gustaría que el interior y el exterior se fundieran en un estilo esencial, elegante, no muy moderno, no me gusta el negro, me gustan materiales como el parquet, lamas, pero también el cemento y la resina.
Por estas razones, tendría curiosidad por ver cómo se vería mi casa en diferentes versiones. El edificio data de los años 70 y mi apartamento tiene forma de herradura y da a la terraza que se extiende por todo el frente, por lo tanto
muy brillante .
ITA:
essendo un attico con terrazzo panoramico vorrei che interno ed esterno si amalgamassero in uno stile essenziale , elegante, non modernissimo, non amo il nero , mi piacciono i materiali come il parquet , i listoni , ma anche il cemento e la resina.
Per questi motivo avrei la curiosità di vedere come sarebbe la mia casa in diverse versioni. Il palazzo è degli anni 70 e il mio appartamento è a forma di ferro di cavallo e si affaccia sul terrazzo che si estende per tutta la parte frontale, quindi
molto luminoso .