07020 Palau, Province of Sassari, Italy
Residenziale - Zona Giorno/Notte
Descrizione
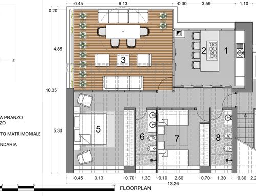
A Palau in Sardegna, nella centralissima Via Capo d'Orso a due passi dal porto turistico sono proprietario di un sottotetto di 45,21 mq e di un contiguo terrazzo panoramico di 45,44 mq. Si tratta di spazi dalle potenzialità inespresse, fino ad oggi sottoutilizzati come servizio e sgombero. Vorrei ricavarne un attico da mettere a reddito. Il progetto dovrà prevedere un minimo di quattro posti letto con due bagni e per questo faccio presente quanto segue: intera proprietà avrà in comune le scale che dal piano terra, anch'esso di mia proprietà, portano al piano primo di proprietà di mio fratello e all'attico. Ho intenzione di installare esternamente un piccolo ascensore. Viste le attuale dimensioni del sottotetto vorrei ampliare l'attico occupando lo spazio di mt 4,49 x 3,58 e aumentare la superficie coperta per la restante parte di 1 / 1,5 mt. La riduzione dello spazio aperto vorrei recuperarla con una struttura in aggetto sul lato di mt 6,13 per rendere lo spazio aperto vivibile. L'attuale tetto dovrà essere demolito e ricostruito solelvando sul lato ovest l'altezza oggi di mt 1,65. Sul tetto vorrei collocare l'impianto fotovoltaico. Lo spazio di mt 1,26 x 1,38 posto a destra dell'attuale ingresso vorrei utilizzarlo come spazio di servizio. Il lato di chiusura dell'attico verso est vorrei fosse realizzato con vetrate panoramiche per regalare maggiore luminosità agli ambienti e renderli un unicum con il terrazzo nella bella stagione. Il lato nord nella terrazza esterna vorrei proteggerlo con un sistema che lasci filtrare la luce, sia di facile pulizia e rispetti le caratteristiche di sicurezza, fungendo da barriera per i forti venti di maestrale e tramontana. Gli arredi per gli interni e gli esterni dovranno essere in stile minimal ridotto all'essenziale privilegiando funzionalità, luce e praticità di pulizia. L'ambiente cucina dovrà essere separato dal resto dell'attico da vetrate scorrevoli. Il bagno della camera padronale dovrà essere interno alla stessa. Allego: planimetria, foto attuale sottotetto e terrazza, filmato panorama, foto arredi esemplificativa di massima. Resto a disposizione per quanto possa occorrere.
In Palau in Sardinia, in the very central Via Capo d'Orso, a stone's throw from the marina, I am the owner of an attic of 45.21 square meters and an adjoining panoramic terrace of 45.44 square meters. These are spaces with unexpressed potential, up to now underused as a service and evacuation. I would like to make an attic out of it to make an income. The project must provide for a minimum of four beds with two bathrooms and for this I would like to point out the following: the entire property will share the stairs that from the ground floor, also owned by me, lead to the first floor owned by my brother and at the attic. I intend to install a small elevator externally. Given the current size of the attic I would like to expand the attic by occupying the space of 4.49 x 3.58 meters and increase the covered area for the remaining part by 1 / 1.5 meters. The reduction of the open space I would like to recover with a structure projecting on the side of 6.13 meters to make the open space livable. The current roof will have to be demolished and rebuilt by raising the current height of 1.65 meters on the west side. On the roof I would like to place the photovoltaic system. I would like to use the space of 1.26 x 1.38 meters to the right of the current entrance as a service space. I would like the closing side of the penthouse to the east to be made with panoramic windows to give more brightness to the rooms and make them unique with the terrace in the summer. I would like to protect the north side of the outdoor terrace with a system that allows light to filter through, is easy to clean and respects the safety features, acting as a barrier against strong winds from the north and north winds. The furnishings for interiors and exteriors must be in a minimal style reduced to the essentials, favoring functionality, light and practicality of cleaning. The kitchen area must be separated from the rest of the attic by sliding glass doors. The bathroom of the master bedroom must be inside it. I enclose: floor plan, current photo of the attic and terrace, panorama film, rough photos of the furnishings. I remain available as long as it may be necessary.
En Palau, Cerdeña; en la muy céntrica Via Capo d'Orso, a tiro de piedra del puerto deportivo, soy propietario de un ático de 45,21 metros cuadrados y una terraza panorámica contigua de 45,44 metros cuadrados. Se trata de espacios con potencial inexpresado, hasta ahora infrautilizados como servicio y evacuación. Me gustaría hacer un ático con él para generar ingresos. El proyecto debe prever un mínimo de cuatro camas con dos baños y para ello me gustaría señalar lo siguiente: toda la propiedad compartirá las escaleras que desde la planta baja, también de mi propiedad, conducen al primer piso propiedad de mi hermano y al ático. Tengo la intención de instalar un pequeño ascensor en el exterior. Dado el tamaño actual del ático, me gustaría ampliar el ático ocupando el espacio de 4,49 x 3,58 metros y aumentar el área cubierta para la parte restante en 1 / 1,5 metros. En la reducción del espacio abierto me gustaría recuperar con una estructura que se proyecta en el lateral de 6,13 metros para hacer habitable dicho espacio abierto. El techo actual deberá ser demolido y reconstruido, elevando la altura actual de 1,65 metros en el lado oeste. En el techo me gustaría colocar el sistema fotovoltaico. Me gustaría utilizar el espacio de 1,26 x 1,38 metros a la derecha de la entrada actual como espacio de servicio. Quisiera que el lado de cierre del ático hacia el este se hiciera con ventanas panorámicas para dar más luminosidad a las estancias y hacerlas únicas con la terraza en verano. Me gustaría proteger el lado norte de la terraza exterior con un sistema que permita que la luz se filtre, sea fácil de limpiar y respete las características de seguridad, actuando como una barrera contra los fuertes vientos del norte. El mobiliario para interiores y exteriores debe ser de un estilo minimalista reducido a lo esencial, favoreciendo la funcionalidad, la ligereza y la practicidad de la limpieza. El área de la cocina debe estar separada del resto del ático por puertas corredizas de vidrio. El baño del dormitorio principal debe estar en su interior. Adjunto: plano de planta, foto actual del ático y terraza, película panorámica, fotos en bruto del mobiliario. Estoy disponible para aclaraciones todo el tiempo que sea necesario.