
81100 Caserta, Province of Caserta, Italy
Residenziale - Appartamento
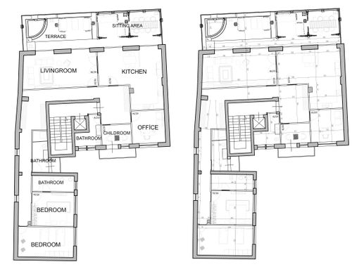
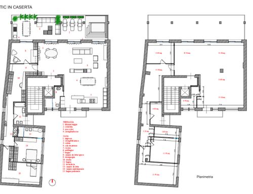
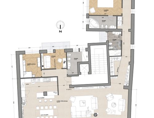
Descrizione
Salve e grazie a tutti,
Quello che Vi sto sottoponendo รจ l'appartamento acquistato con mia moglie e dove intendiamo vivere con nostra figlia e tra un po' magari altri figli.
Dell'appartamento ci ha colpito soprattutto il terrazzo ed รจ quindi insieme con l'ambiente che ci si affaccia il punto da valorizzare al meglio in assoluto, per la vita quotidiana ma anche per cene e feste con i nostri amici.
Dove viviamo attualmente cucina, sala da pranzo e area living sono tutti in un unico ambiente e la cosa ci piace molto a patto che la cucina sia posizionata in modo tale da non avere problemi con l'aspirazione dei fumi, sul terrazzo vorremmo avere un punto esterno per la preparazione di cibi e bbq ed un bancone frigo/bar.
Non vorremmo sacrificare nessuno dei bagni esistenti, e lasciare una sala da bagno con servizi e doccia a servizio della zona giorno, mentre per quelli nella zona notte gradiremmo averne almeno uno in quella che diventerebbe a quel punto la stanza padronale, per il bagno di quest'ultima gradiremmo una grande doccia larga e comoda, mentre per l'altro un sistema con una vasca.
Se fosse possibile desideriamo ricavare: Nยฐ 1 stanza con bagno in camera, Nยฐ 1 stanza per bambini, Nยฐ 1 stanza /studiolo e nยฐ 1 stanza gioco che possa poi servire anche da stanza degli ospiti.
Credo di avere detto tutto per il momento, buon lavoro.
---------------------------------------------
ENG
Hi everyone,
This is a new apartment that I've recently bought and where I'm going to live with my wife and my daughter and future sons.
We chose this apartment mainly for the beautiful terrace and we'd like to have a stunning living area linked to the terrace to enjoy in the everyday life and when we have dinners and parties with our friends.
We'd like to have a single open space with kitchen, dining area and living area but we'd like the kitchen to be placed in a way so that smells and smoke won't affect the other areas.
We'd like to have a barbecue and kitchen area with a fridge/minibar on the terrace.
We'd like to keep all the existing bathrooms, we'd like to keep the bathroom with the shower near the living area. In the sleeping area we'd like one bathroom in the master bedroom with a large and comfy shower and the other bathroom with the bathub if possible.
If possible, we'd like to have: 1 master bedroom with en-suite bathroom, 1 kids' bedroom, 1 study room, 1 playroom for kids/guestroom.
If you need any information please just ask.
Kind regards.