
Rimini, Province of Rimini, Italy
Residenziale - Appartamento
Descrizione
Update 1/12/25
Added floor plan with reference size
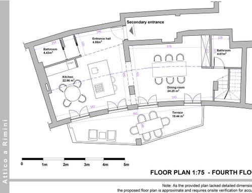
ENGLISH
UPDATE 15/8/25
Finally we have bought a double floor house, the lower one, fourth, is composed by a large kitchen (around 30 m2), a dining room (about 35 m2) and two bathrooms (5 m2 each) and a 20 m2 terrace. The stairs connect it with the upper one, the fifth, composed by a relax area (about 40 m2), two bedrooms (one 15 m2 including walk-in wardrobe and one 10 m2), one small room that in the future will be increased in order to became the third bedroom (currently 7 m2, later about 10 m2), one multiuse room of around 10 m2 for smart working, ironing, guest’s room etc, two bathrooms about 4 m2 each, a small crawl space and two small terraces of about 11 m2 each.
The current owner will take away all the furniture with the exception of the kitchen.
We love the current style, we would like to receive brilliant ideas for completing the furniture with low cost solutions, starting from lighting, colors, etc etc...
Please help us also to furnish the terraces: in the lower floor one we would like to have an extendable table for hosting many friends and some relaxing armchair. In the one outside the living room we would like a compact, high bar table with 4 stools and a small sofa. In the one outside the double room a small inflatable hydromassage (about 1,50 m diameter) and a small sofa.
In order to save space we are considering hanging plants and lights in the terraces, if you could suggest us even what plants and lights to use, we are at about 500 meters from the sea...
Please help us with your fantastic ideas!!!
UPDATE 05/05/25
The project modification has been rejected by the public building department, consequently we are not buying the house any more. Sorry for your time...
As soon as we will have news we will inform you...
AGGIORNAMENTO 05/05/2025
L'ufficio per l'edilizia pubblica ha rigettato le modifiche all'edifico, pertanto non abbiamo proceduto con l'acquisto dello stesso. Scusate per il tempo che avete perso. Appena possibile aggiorneremo le planimetrie con la nuova casa