Milan, Italy
main-room - kitchen
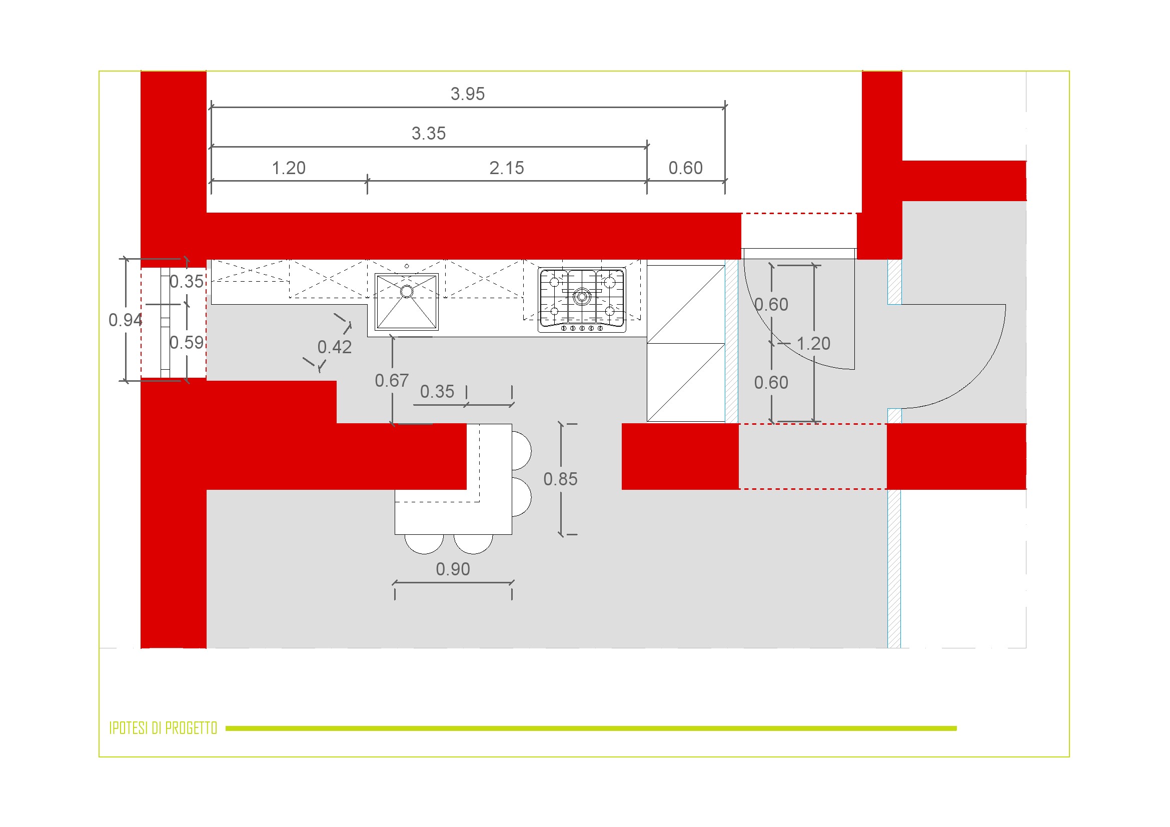
Descrizione
Progettazione ed arredo cucina, cassettoni senza maniglie. Cucina per l'angolo cottura:
L'angolo cottura è come da piantina un po' piccola e sacrificata, la parete in basso sarà abbattuta per recuperare in Lunghezza, si tratta di quella vicino alla porta d'ingresso lasciandola poi a vista.
a) L'altezza del soffitto è di circa m, 3.10, la quale vorremmo sfruttarla tutta in altezza con i mobili, la lunghezza sarà circa m, 4.00.
Larghezza, la parte più stretta vicino alla finestra circa cm, 90 poi si allarga un po' arrivando a circa m, 1.26.
la parte della colonna del muro portante dove vorremmo mettere la mensola tipo bar, è larga circa cm, 45.
b) La cucina dovrebbe essere più attrezzata possibile di tipo moderno "laccata" e se esiste anti impronta ma, non in acciaio, senza maniglie, molto accessoriata con cassetti porta pentole, Porta utensili, ante chiuse con porta calici sottosopra, o a vista sopra il banco tipo bar e, accessori vari, forno a colonna, spazio per forno micronde, lavabo con tritatutto. Poi, con piano lavoro o con piano lavoro a scomparsa da non ingombrare.
Le profondità del banco bisogna decidere se farla da cm, 60 o da cm, 50 oppure misto dipende dal punto della cucina, anche con mobiletti di cm, 30 o cm, 40 di profondità per sfruttare qualunque zona e avere la possibilità di aprire la finestra.
c) La parte centrale d'entrata dalla sala per dell'angolo cottura vorrei che venisse chiusa da una mensola tipo banco bar fatta a (T) per poterci mettere le gambe sia per chi sta in sala sia per chi sta in cucina, per mangiare con due sgabelli alti, da poter utilizzare o dalla sala o dalla cucina.
d) Per gli elettrodomestici: Lavastiviglie, Forno, Kappa, Frigo, Dissipatore oTritatutto per lavello, Lavello, dei quali trovate i vari link dei siti negli allegati, logicamente se si trovassero gli stessi a minor prezzo meglio ancora.
Il progetto andrà realizzato con uno stile moderno.
Risorse