
20062 Cassano d'Adda, Metropolitan City of Milan, Italy
Residenziale - Zona Giorno/Notte
Descrizione
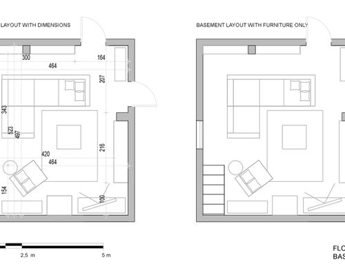
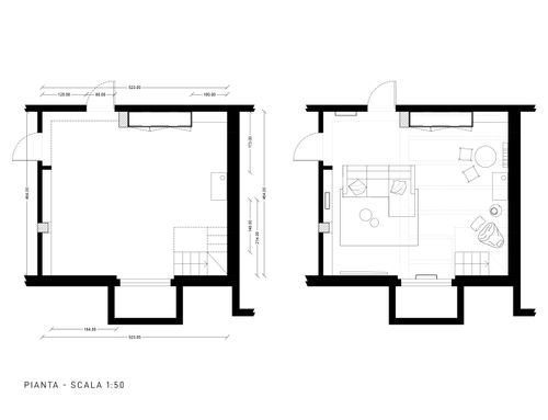
ENG: This contest looks for furnishing proposals for a basement room using one of the following styles: Industrial, Rustic or Vintage ... or a mixture of them.
The idea is to create a relax area, where is possible dedicate yourself to your hobbies, such as TV, reading, wines ...
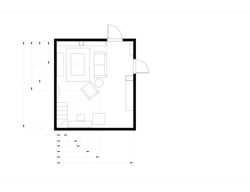
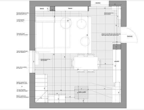
As per attached photos, I would like to point out that there are some "fixed" elements that cannot be eliminated or moved, such as the bookcase, the pellet-stove and the wardrobe.
SPA: Este concurso busca propuestas de mobiliario para una habitación en el sótano utilizando uno de los siguientes estilos: industrial, rústico o vintage ... o una mezcla de ellos.
La idea es crear un área de relajación, donde sea posible dedicarse a sus pasatiempos, como televisión, lectura, vinos ...
Según las fotos adjuntas, me gustaría señalar que hay algunos elementos "fijos" que no se pueden eliminar ni mover, como la estantería, la estufa de pellets y el armario.
ITA: Il contest ricerca proposte di arredo per una taverna in uno dei seguenti stili: Industrial, Rustico o Vintage … oppure un misto di essi.
L’idea è quella di creare una zona relax, dove potersi dedicare ai propri hobbies, tipo TV, lettura, vini ...
Come da foto allegate, faccio presente che ci sono alcuni elementi “fissi” che non possono essere eliminati o spostati, come la libreria, la stufa a pellet e l’armadio.