πŸ”₯ CYBER MONDAY 24H: -60% su tutti i prezzi del sito! Solo fino a mezzanotte. Usa il codice CYBERMONDAY25 πŸ‘‰πŸΌ
img

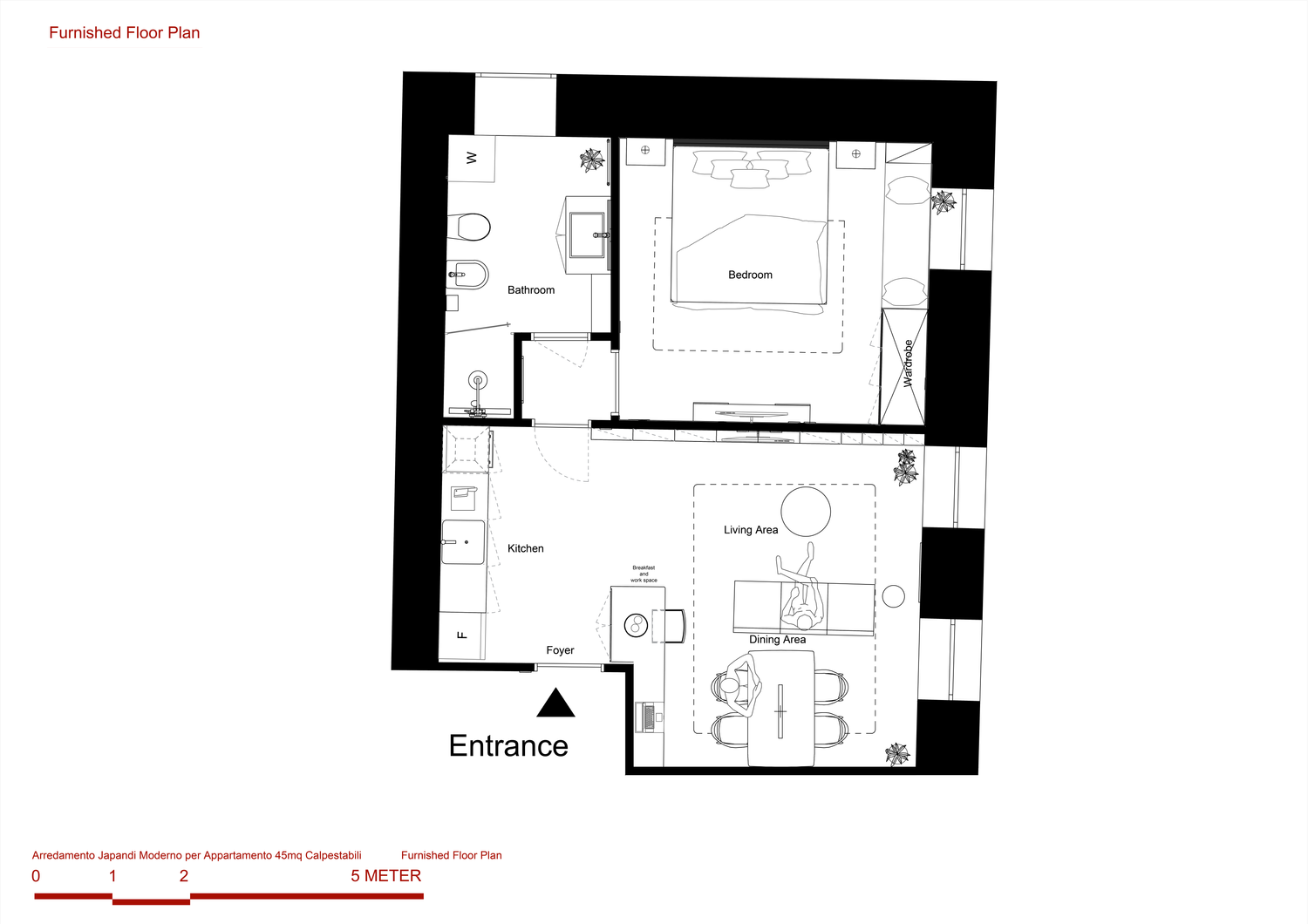
Arredamento Japandi Moderno per Appartamento 45mq Calpestabili

Piovene Rocchette, VI, Italia

Residenziale - Appartamento

Kevin Chheav

  • architect
  • Dki Jakarta, Indonesia
Descrizione Progetto

The overall design concept for this 45 sq m apartment is a sophisticated and highly functional Japandi sanctuary, meticulously crafted to embody modern minimalism with a warm, organic soul. The strategy centers on maximizing every inch of space through intelligent IKEA furnishing, focusing on multi-functional pieces and integrated storage, all while creating a cohesive, magazine-worthy aesthetic.

From the clean, linear kitchen with its light wood accents and integrated Miele appliances, to the serene master bedroom with its hidden storage and discreet media integration, every element serves a dual purpose: enhancing utility and contributing to a tranquil, uncluttered living experience. The consistent use of natural materials like wood and linen, paired with a calm palette of white, dark wood, and neutral tones, ensures a seamless flow and an enduring sense of calm throughout the compact yet luxurious home. This is a design where efficiency meets elegance, creating an inviting and inspiring urban retreat.

Leggi di PiΓΉ