
Verona, VR, Italy
Residenziale - Zona Giorno/Notte
Descrizione
**ITALIANO**
Vorrei avere uno studio dell'arredo di casa nuova, la divisione degli spazi è quella data dalla planimetrie ma sono ancora possibili piccole modifiche sia sul posizionamento delle pareti interne sia sulle posizione e dimensioni delle finestre.
Lo stile che mi piace è tendente al moderno ma non troppo, allego una serie di immagini di stili che mi piacciono.
Alcune note:
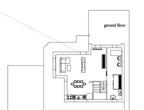
PIANO TERRA
In cucina vorrei l'isola ma senza lavandino e/o fornello.
La finestra sulla parete a sud andrà ad inserirsi tra il piano ed i pensili (vedi immagine di esempio) e sarà fissa.
La pavimentazione di tutto il piano terra e piano primo (ad esclusione dei bagni) sarà in legno.
In ingresso studiare una zona appendiabiti / zaini borse etc.
Il bagno a piano terrà sarà di servizio quindi senza doccia, solo con lavabo, water e bidet
Il bidet dovrà esserci in tutti i bagni.
In soggiorno c'è una finestra fissa, mi piace l'idea di farci una seduta (vedi immagini di esempio)
PIANO PRIMO
Seguire sempre lo stile, nessuna nota particolare.
La camera matrimoniale deve avere un bel contenimento per l'abbigliamento, vedere se si riesce a ricavare un guardaroba, ma non è strettamente necessario.
PIANO INTERRATO
Nel piano interrato ho segnato dove andrà un tavolo in legno di cui sono già in possesso.
Nella pain cave ci sarà una exercise bike, un treadmill e una sauna da 3/4 posti. (valutare se ha senso invertire la zona pain cave con quella della laundry/wc)
A disposizione per ulteriore dettagli.
**ENGLISH**
I would like to have a design proposal for the interior layout of my new home. The division of spaces follows the floor plan provided, but small modifications are still possible regarding the positioning of internal walls and the size or placement of windows.
The style I prefer leans towards modern, but not overly so.
I am attaching a selection of images that reflect the styles I like.
GROUND FLOOR
In the kitchen, I would like an island, but without a sink or stovetop.
The window on the south wall should be positioned between the countertop and the upper cabinets (see example image) and should be fixed.
The flooring for the entire ground floor and first floor (except the bathrooms) will be wooden.
In the entryway, I’d like a space for hanging coats, backpacks, bags, etc.
The ground-floor bathroom will serve as a guest restroom and will not include a shower—just a sink, toilet, and bidet.
A bidet is required in all bathrooms.
In the living room, there’s a fixed window, I like the idea of incorporating a built-in seat below it (see example images).
FIRST FLOOR
Follow the same style, no specific notes.
The master bedroom should have good storage for clothing. Consider whether it's possible to include a walk-in wardrobe, but it's not strictly necessary.
BASEMENT
In the basement, I’ve marked the area where a wooden table I already own will be placed.
The pain cave will include an exercise bike, a treadmill, and a 3- to 4-person sauna. Consider whether it makes sense to swap the locations of the pain cave with the laundry/WC area.
Let me know if you need more details or further clarifications!