Milan, Metropolitan City of Milan, Italy
Residenziale - Appartamento
Descrizione
ENGLISH
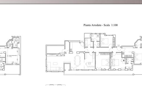
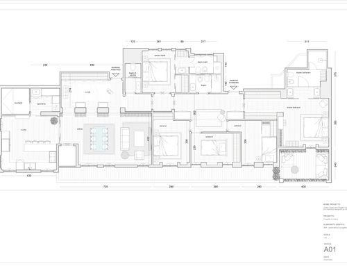
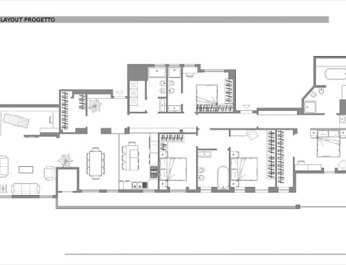
Our total renovation of finishes and internal layout conserves the finest details and enhances the spaces. To achieve: entrance, double or triple living room, access from the turret (feasibility studies will be conducted), kitchen connected to the living room by stained glass window, 4 bedrooms 2 of them with ensuite service (bathrooms) 3-4 bathrooms, 2 of them with ante-room (washbasin separated from the sanitary area and shower). Feasibility studies will be conducted.
-----------------
ESPAÑOL
Renovación total de acabados y diseño en nombre de una modernidad aristocrática que conserva los elementos preciosos de los acabados y mejora los espacios de manera funcional. Para obtener: entrada, sala de estar doble o triple con acceso a la torre desde el interior (para explorar la viabilidad) cocina separada pero transparencia en la sala de estar, 4 dormitorios de los cuales mínimo 2 con baño privado (principal y de invitados) 3-4 baños de los cuales 2 (el de invitados en la sala de estar y el de la habitación principal) con antebaño con el lavabo separado de la zona del inodoro y la ducha. Para verificar la viabilidad de unir los espacios spp a la unidad.
-----------------
ITALIANO
Restyling totale di finiture e layout all'insegna di una modernità aristocratica che conserva gli elementi pregiati delle finiture e valorizza gli spazi in modo funzionale. Da ricavare: ingresso, soggiorno doppio o triplo con accesso alla torretta dall'interno (da approfondire la fattibilità) cucina separata ma trasparenza sul soggiorno,4 camere da letto di cui minimo 2 con servizio ensuite (principale e ospiti) 3-4 servizi di cui, 2 (quello di cortesia della zona giorno e quello nella master room) con antibagno con solo il lavabo separato dalla zona sanitari e doccia). Da verificare la fattibilità di unire gli spazi spp all'unità.