Rome, Italy
main-room - living-room
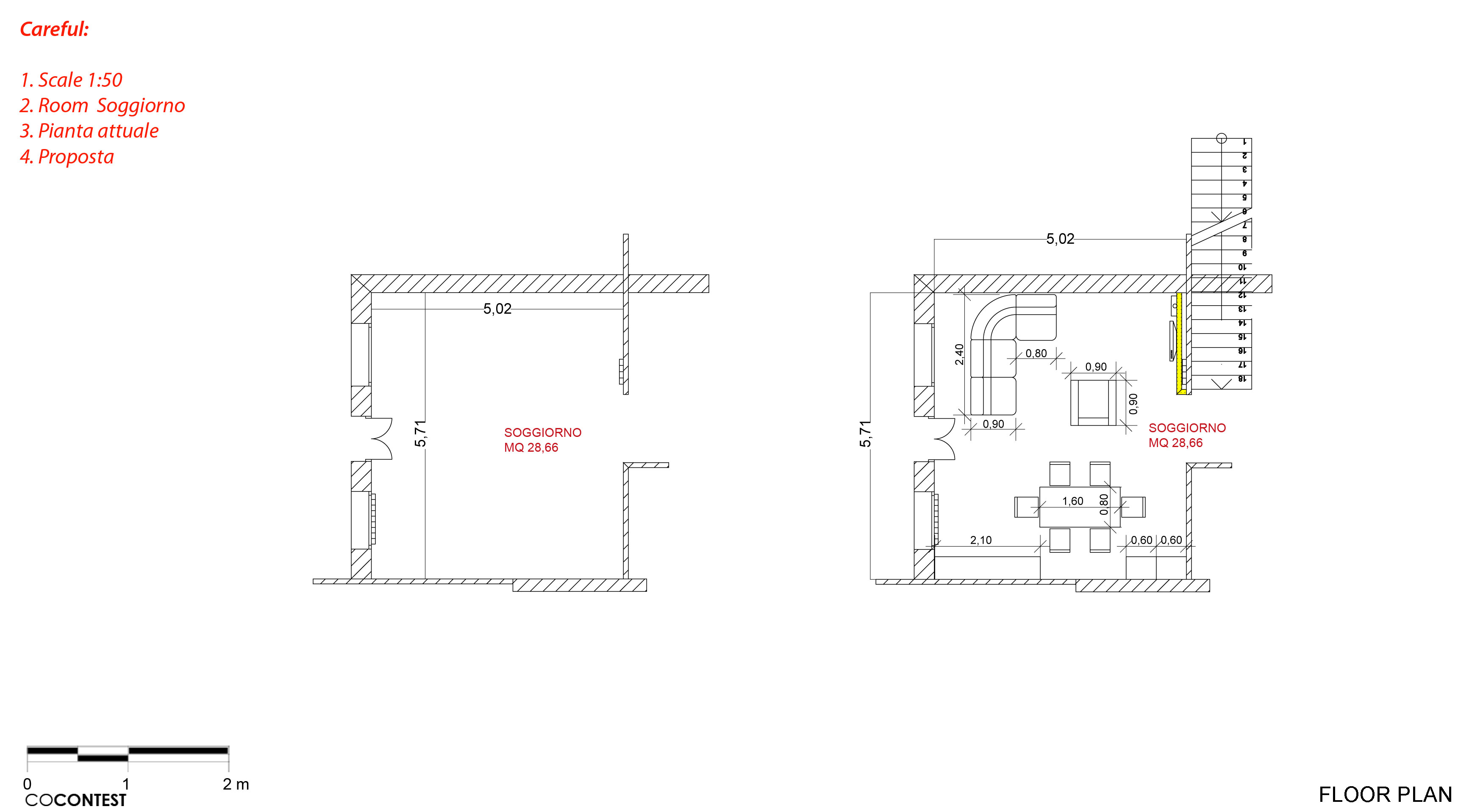
Descrizione
Avrei bisogno di idee per utilizzare al meglio lo spazio del salone, in termini di arredamento ed illuminazione. La casa è di nuova costruzione, la cucina è in ambiente separato ma non abitabile quindi il salone vorrei destinarlo ad un'area tv/relax e tavolo per il pranzo. Avrei anche necessità di riutilizzare una parete attrezzata di colore legno molto scuro e bianco, formata da due colonne (64x50x207 cm circa) ed una parte sospesa tra le due colonne (207x50x60 cm circa), la parte sospesa della parete attrezzata può, eventualmente, essere divisa dalle due colonne laterali. Le misure del salone sono (5.02mx5.71m), le porte finestre del salone sono esposte ad ovest.
Risorse