
Turin, TO, Italia
Residenziale - Appartamento
Descrizione
ENG:
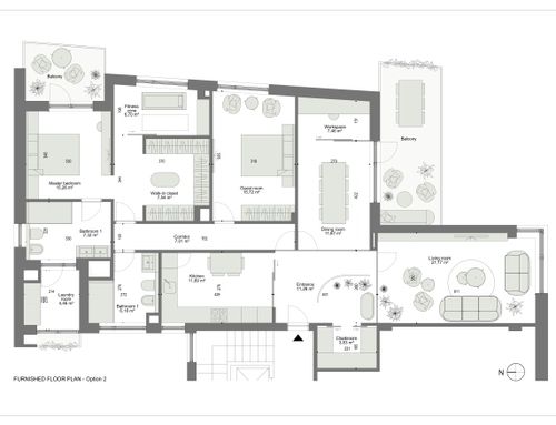
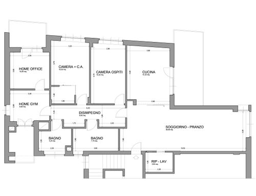
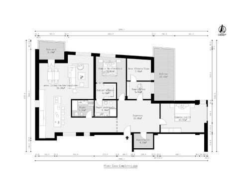
We love modern style and we would like to have a sitting room, a dining room, a master bedroom, and space for guests, home office and if possibile a small fitness area (Spin bike + yoga mat). We need 2 bathrooms. We would like the kitchen to be close to the dining room and the living room (separated but connected). The terrace (that faces south) must be easyly accessible to eat outside. The current kitchen is the northern part of the apartment. These are the requirements, but any original idea is warmly welcome! Thank you.
SPA:
Nos encanta el estilo moderno y nos gustaría tener una sala de estar, un comedor, un dormitorio principal y espacio para invitados, una oficina en casa y, si es posible, una pequeña zona de fitness (bicicleta estática y esterilla de yoga).
Necesitamos 2 baños.
Nos gustaría que la cocina estuviera cerca del comedor y del salón (separada pero conectada).
La terraza, que da al sur, debe ser fácilmente accesible para poder comer al aire libre.
Actualmente, la cocina se encuentra en la parte norte del apartamento.
ITA:
Amiamo lo stile moderno e ci piacerebbe avere un salotto, una sala da pranzo, una camera matrimoniale e dello spazio per ospiti, home office e, se possibile, una piccola area fitness (con cyclette e tappetino da yoga).
Abbiamo bisogno di 2 bagni.
Vorremmo che la cucina fosse vicina alla sala da pranzo e al soggiorno (separata ma connessa).
La terrazza, che è esposta a sud, deve essere facilmente accessibile per poter mangiare all’aperto.
Attualmente, la cucina si trova nella parte nord dell’appartamento.