
76125 Trani, Province of Barletta-Andria-Trani, Italy
Commerciale - B&B
Descrizione
ENG
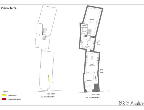
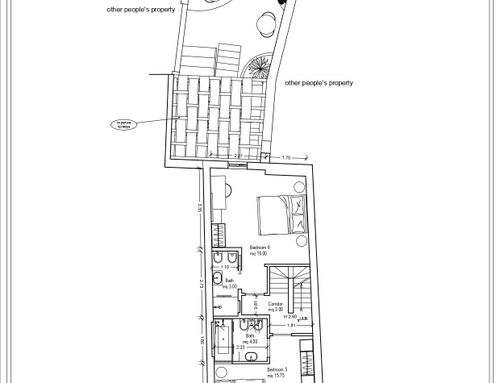
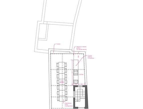
Hi everyone, I have a 240sqm building divided into 4 levels with a small private and exclusive garden where I would like to create a B&B. My intention is to create two rooms per floor with bathroom for the exclusive use of the room and to create an room for common use both on the terrace and in the private garden. The terrace you know overlooks the Port of Trani and has a spectacular view of the Cathedral of Trani could become a location for small private parties and private dinners. I would therefore foresee a small space for a kitchen that is also mobile.
I would like a modern style B&B with light and muted colors.
As for the private garden, which can be reached from the ground floor and the first floor, you could think of a common area for breakfast or a relaxation area by installing a whirlpool tub and therefore providing a cover for the garden "open and close "
SPA
Hola a todos, tengo un edificio de 240 metros dividido en 4 niveles con un pequeño jardín privado y exclusivo donde me gustaría crear un B&B. Mi intención es hacer dos habitaciones por planta con baño privado y crear una sala de uso común tanto en la pequeña terraza como en el jardín privado. La pequeña terraza que da al puerto de Trani y tiene una vista espectacular de la Catedral de Trani podría convertirse en un lugar para pequeñas fiestas privadas y cenas privadas. En ese caso, habilitaría un pequeño espacio para una cocina, incluso móvil. Me gustaría un B&B de estilo moderno con colores claros y suaves.
En cuanto al jardín privado, accesible desde la planta baja y el primer piso, se podría pensar en un área común para el desayuno o una zona de relajación instalando una bañera de hidromasaje y cubriendo así el jardín "abierto y cerrado".
ITA
Salve a tutti, ho una palazzina di 240 metri suddivisa in 4 livelli con un piccolo giardino privato ed esclusivo dove vorrei realizzare un B&B. La mia intenzione e' di realizzare due camere per piano con bagno ad uso esclusivo della camera e creare un ambiente ad uso comune sia sul terrazzino che nel giardino privato. Il terrazzino che si affaccia sul Porto di Trani, e ha una vista spettacolare della Cattedrale di Trani, potrebbe diventare una location per piccole feste private e cene riservate. Prevederei quindi un piccolo spazio per una cucina anche mobile.
Mi piacerebbe un B&B in stile moderno con colori chiari e tenui.
Per quanto riguarda il giardino privato, che è raggiungilo dal piano terra e dal primo piano, si potrebbe pensare ad uno spazio comune per le colazioni o ad uno spazio relax prevedendo l’installazione di una vasca idromassaggio e quindi prevedere ùna copertura del giardino “apri e chiudi”