38122 Trento, Italy
Residenziale - Appartamento
Descrizione
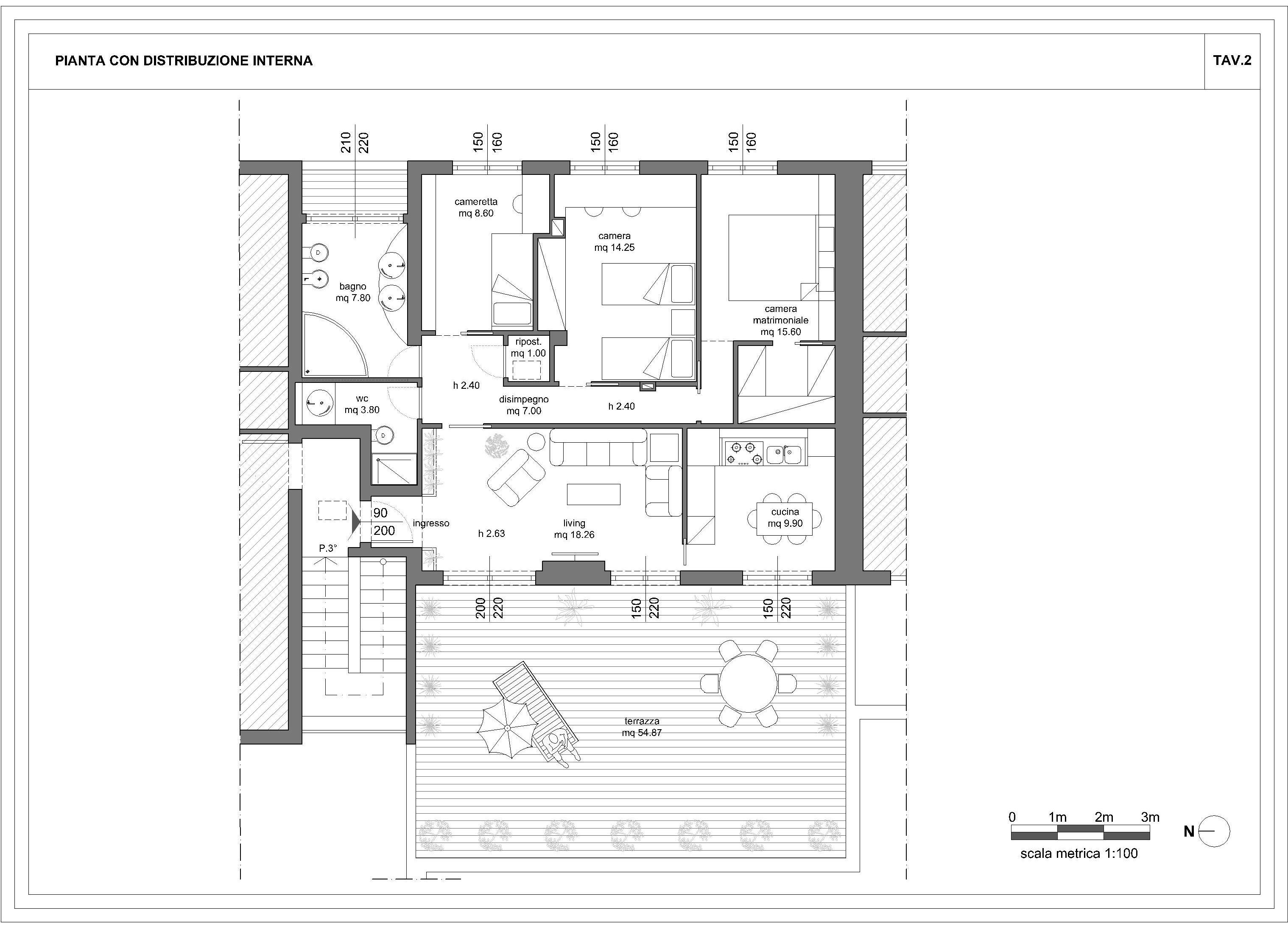
Buongiorno, abbiamo appena acquistato un appartamento situato all'ultimo piano di una piccola palazzina e vorremmo adeguarlo alle nostre esigenze.
Vorremmo cercare di recuperare quanto più spazio dal disbrigo creando una terza camera e riducendo lo spazio destinato ai bagni, pur mantenendone due.
Preferiamo un arredamento semplice, lineare, con colori neutri, con qualche soluzione originale ma mai "chiassosa".
ZONA GIORNO:
Preferibilmente che dia sulla terrazza, anche per sfruttarla al meglio a pranzo nelle giornate calde.
Abbiamo già una cucina (Artematica blu e acciaio e legno della Valcucine) a L da utilizzare con dimensioni 320cm x 190 cm a cui andrebbe aggiunto un frigorifero esterno.
Non ci dispiacerebbe avere una separazione tra la cucina e il salotto senza che sia netta come una parete ma piuttosto con l'arredamento o una vetrata/porta a vetri o un mezzo muro.
Nell'angolo in alto a dx del soggiorno c'è un camino (solo nostro) che si potrebbe sfruttare con una stufa con cui riscaldare la zona giorno.
ZONA NOTTE:
Vorremmo avere 3 camere: una matrimoniale da almeno 14 mq, come previsto dal nostro regolamento edilizio, una singola e una doppia (va bene anche la soluzione con il letto a castello).
Nella camera matrimoniale ci piacerebbe riutilizzare, se possibile, 5 pannelli attrezzati per cabina armadio larghi 87 cm e profondi 50 cm.
Per le altre due camere si dovrebbe dare maggiore importanza a letto/angolo studio/zona gioco, piuttosto che al guardaroba perché saranno abitate all'incirca per 1/3 del tempo da 3 ragazze di 15, 11 e 7 anni.
BAGNI:
Vorremmo avere due bagni. Se fosse possibile uno con doccia e uno con vasca (o al limite una doccia molto spaziosa). Il bagno più piccolo potrebbe avere solo doccia, wc e lavandino. Il bagno più grande invece dovrà avere inoltre il bidet e una parete lunga con lo specchio.
Da prevedere anche il posto per la lavatrice, magari a scomparsa. Entrambi i bagni hanno bisogno per legge di un antibagno se danno sulla zona giorno.
In allegato la piantina con tutte le misure e delle fotografie di come si trova attualmente il locale.
Tutti gli arredi presenti verranno sostituiti e c'è ampia facoltà di modificare la planimetria interna, a parte per le parti segnate in rosso.
Grazie a tutti quelli che vorranno partecipare.
Siamo a vostra disposizione per qualsiasi altra informazione.
Buon lavoro!
Laura e Sergio
Risorse