
Roma, Metropolitan City of Rome Capital, Italy
Residenziale - Appartamento
Dear client,
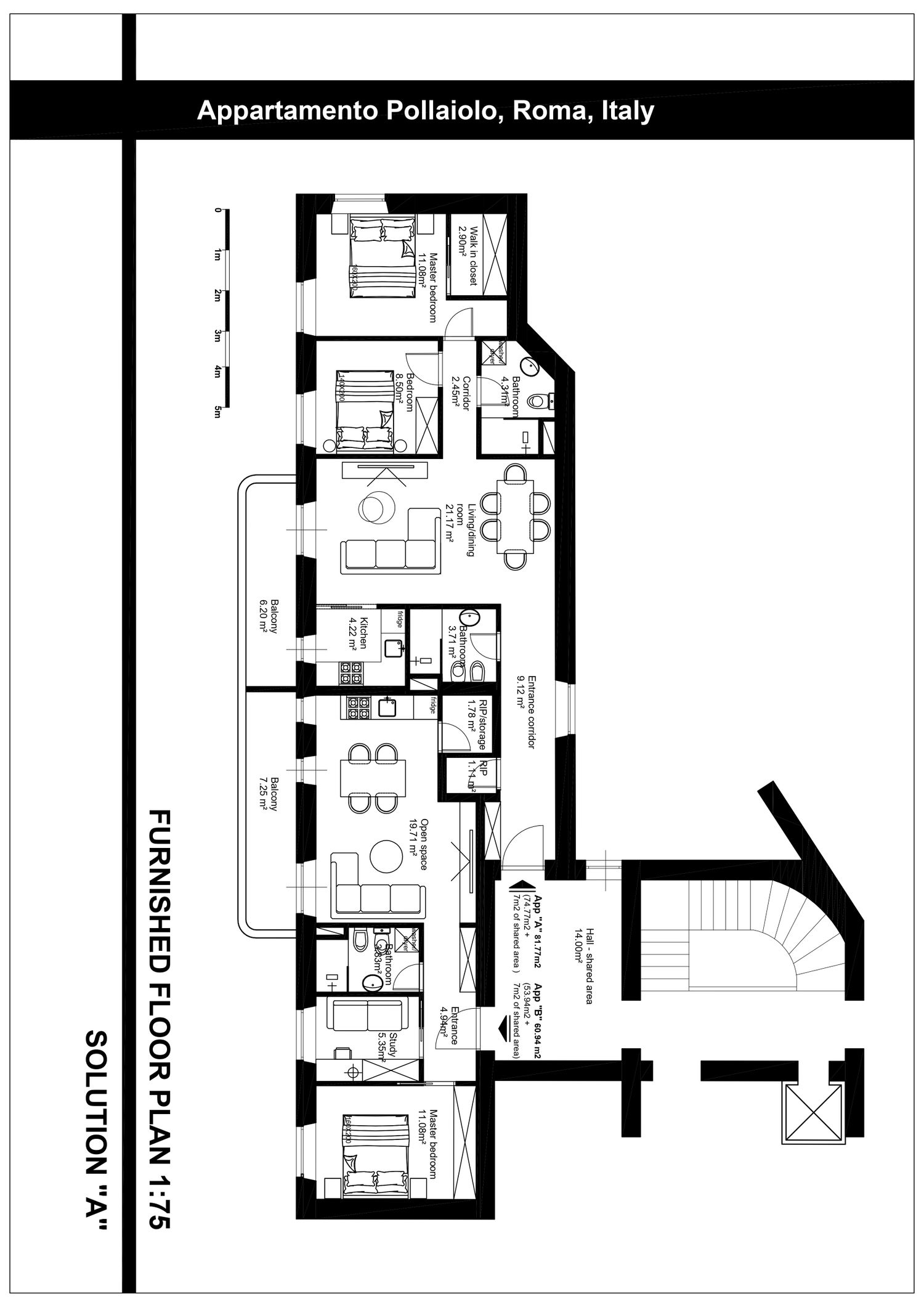
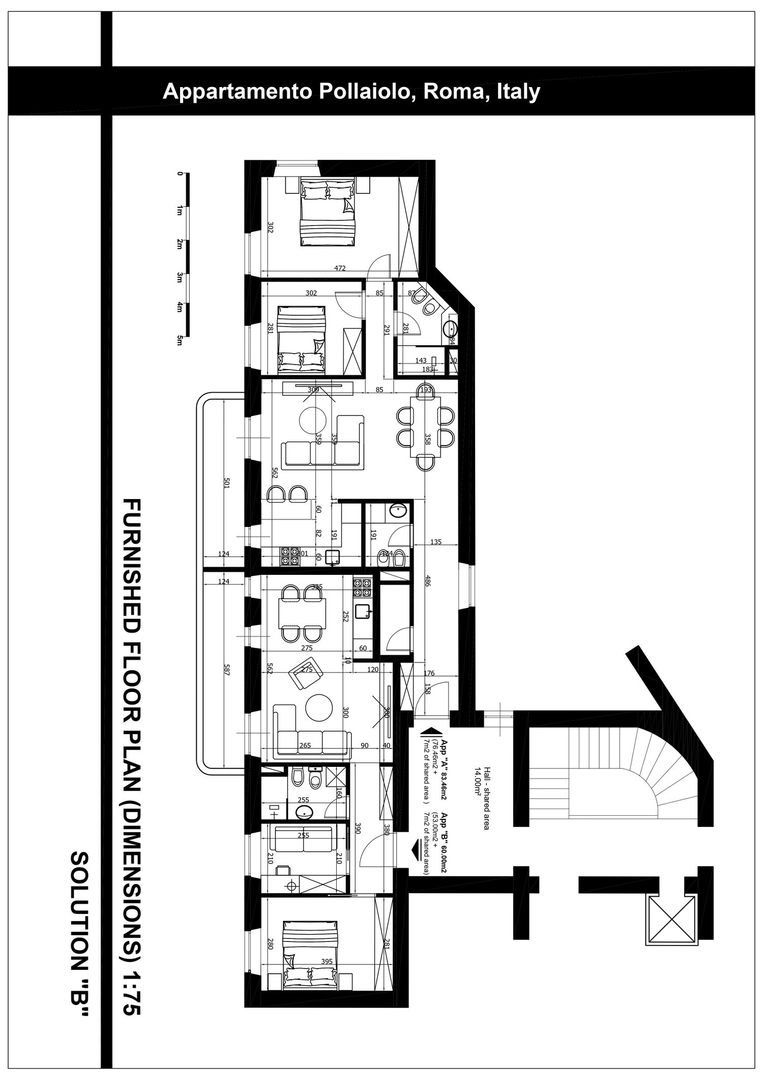
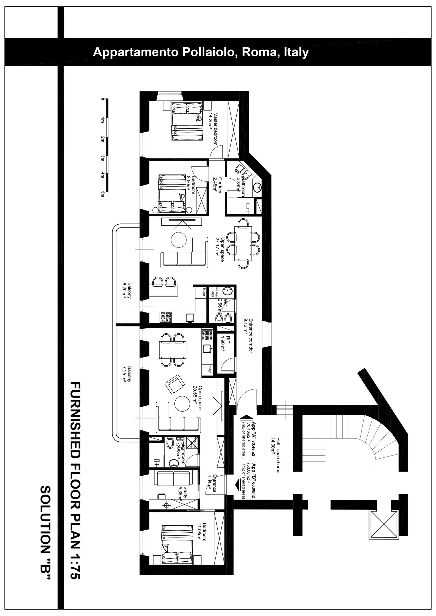
The goal of this project was to subdivide the existing property unit into two (or more) independent residential units, each with independent access from the shared corridor or common hallway, main rooms with natural light and ventilation, dedicated bathroom facilities, and separate, autonomous building services and utility systems. Based on your brief, I developed two alternative design solutions that address these requirements. Rendered images are also attached to help visualize the proposed layouts and spatial atmosphere.
I wish you luck with your renovation project!
Best regards!