πŸ”₯ CYBER MONDAY 24H: -60% su tutti i prezzi del sito! Solo fino a mezzanotte. Usa il codice CYBERMONDAY25 πŸ‘‰πŸΌ
img

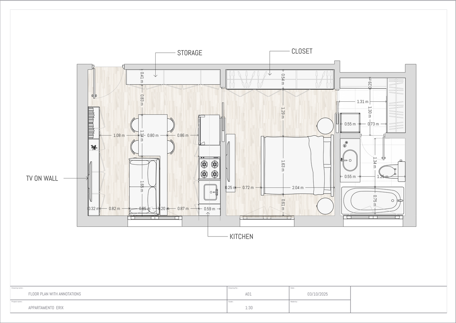
Appartamento Erix

Rome, Metropolitan City of Rome Capital, Italy

Residenziale - Appartamento

Irene Rueda

  • architect
  • Onex, Switzerland
Descrizione Progetto

The idea behind this project is to make the most of the vertical space by incorporating smart storage solutions. The social area is maximized through a multifunctional table that wraps around the sofa, which backs onto the kitchen β€” creating a subtle separation between the two spaces while keeping them visually and functionally connected. In the private area, the bedroom retains ample storage, and the bathroom is slightly reduced in size to make room for a walk-in closet. This approach allows every area to be efficiently utilized without requiring a large budget.

Leggi di PiΓΉ