
19013 Deiva Marina SP, Italy
Residenziale - Appartamento
Descrizione
Salve a tutti,
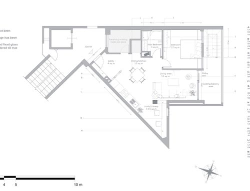
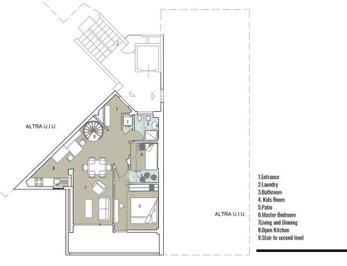
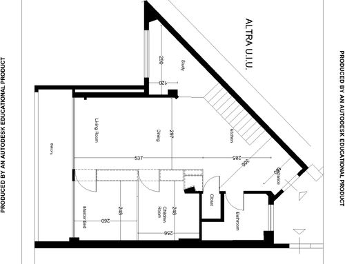
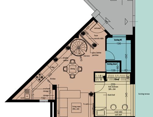
avremmo bisogno uno studio per quanto riguarda la distribuzione degli spazi interni di un'appartamento posto all'8 piano con solarium/terrazzo al piano superiore da annettere.
Avremmo bisogno di ricavare 1 camera matrimoniale + 1 camera con 2 letti singoli, una cucina a vista mentre il bagno e ripostiglio possono essere salvati come sono ora.
Si chiede inoltre di posizionare una scala a chiocciola (o altra tipologia) per accesso al terrazzo superiore.
La cosa per noi importante è quella di creare unico ambiente cucina, pranzo, soggiorno senza chiudere gli spazi e renderlo il più luminoso possibile.
Al seguente link troverete foto e pianta in dwg
https://www.dropbox.com/s/jbclvx9iv7t6uhq/foto%20e%20piantina%20appartamento.zip?dl=0
Hi Everyone,
we would need a study regarding the distribution of the interior spaces of an apartment on the 8th floor with solarium / terrace on the upper floor to be annexed.
We would need to get 1 double bedroom + 1 bedroom with 2 single beds, an open kitchen while the bathroom and closet can be saved as they are now.
It is also asked to place a spiral staircase (or other type) for access to the upper terrace.
The important thing for us is to create a single kitchen, dining, living room without closing the spaces and making it as bright as possible.
At the following link you will find photos and plan in dwg
https://www.dropbox.com/s/jbclvx9iv7t6uhq/foto%20e%20piantina%20appartamento.zip?dl=0
Hola a todos,
necesitaríamos un estudio sobre la distribución de los espacios interiores de un departamento en el piso 8 con solarium / terraza en el piso superior para anexar.
Necesitaríamos tener 1 habitación doble + 1 habitación con 2 camas individuales, una cocina abierta, mientras que el baño y el armario se pueden guardar como están ahora.
También se solicita colocar una escalera de caracol (u otro tipo) para acceder a la terraza superior.
Lo importante para nosotros es crear una sola cocina, comedor, sala de estar sin cerrar los espacios y hacerlo lo más luminoso posible.
En el siguiente enlace encontrará fotos y plano en dwg
https://www.dropbox.com/s/jbclvx9iv7t6uhq/foto%20e%20piantina%20appartamento.zip?dl=0