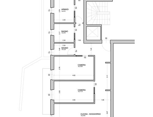
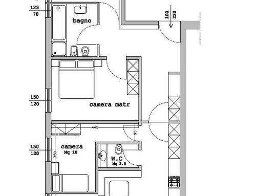
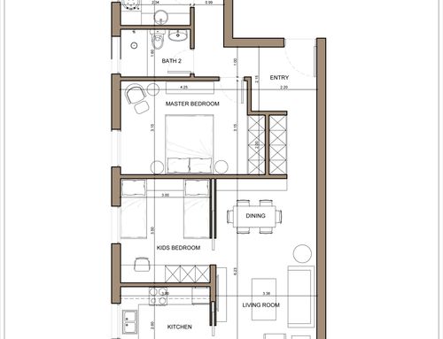
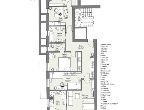
Descrizione
ENG
We'd like to have the space disposition of the house. We neeed to separate the kitchen from the living, we need kitchen with a small dining table, living room with sofa, table for 6 preferably with benches. We'd also like to find space to create a small bethroom of about 2 sqm. All the walls can be moved, the same is valid for the windows behind the space between walls.
------------------------------------
ITA
Vorremo ottenere una planimetria di come dividere cucina-soggiorno, spazio permettendo la cucina con piccolo tavolo, soggiorno con divano tavolo 6 persone preferibilmente con panche... inoltre dovremo riuscire ad inserire nella planimetria dell'appartamento un piccolissimo bagno ca. 2mq.. tutti i muri si possono spostare, evtl anche le finestre dietro dell'intercapedine...