
03029 Veroli, Province of Frosinone, Italy
Residenziale - Appartamento
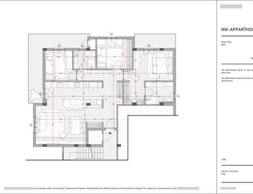
Descrizione
Entrando si trova l'ingresso, sulla parete di fronte il portone una cappottiera, sulla parete a destra del portone un attaccapanni e a sinistra del portone specchio a mezza luna con mensola svuota tasche.
A sinistra dell'ingresso un salotto open space (abbattere la parete - o parte di essa - che divide salotto da cucina). La cucina si sviluppa sulla parete in fondo dove si trova la porta finestra e su una penisola attaccata al pilastro, mentre la parete tv si sviluppa sulla parete di 5 metri a partire dalla parte dove si trova la finestra. La parete TV si preferisce con mobile colonna chiusa, colonna a giorno, e mensole orizzontali su cui mettere tv attaccata al muro su pannello con led.
Divano fronte tv, tavolo con sedie nella parte restante della sala, vicino l'ingresso dell'open space.
Illuminazione zona giorno con controsoffitto con strisce led.
Di fronte l'ingresso della cucina un ripostiglio.
Tramite corridoio si accede alle altre stanze.
Camera matrimoniale : letto di fronte la finestra con comò e angolo trucco sulla sua sx e armadio sulla sua destra.
Sulla testata del letto carta da parati e lampadari pendenti sui comodini.
Siamo una famiglia di 2 adulti e due bambini maschi (il primo 4 anni, il secondo in arrivo fra 2 mesi). Nella nostra casa ci dovrà essere anche uno spazio dedicato al lavoro, in quanto la mamma è una libera professionista che spesso lavora da casa e il padre lavora al pc da casa, anche se molto più saltuariamente.
L'altezza del piano è 2,80 metri.
Per quanto riguarda il pavimento potremmo avere sia un pavimento unico per tutto l'appartamento, che due finiture diverse tra la zona notte (come parquet/effetto legno/ecc..) e la zona giorno (effetto legno/gres/ecc..)
- - - ENGLISH VERSION: - - -
Upon entering the apartment, the entryway is the first space encountered. Directly across from the entrance door, a coat closet is situated along the wall, while to the right of the door, there is a coat rack. On the left, a half-moon mirror with an integrated shelf for keys or small items serves as a functional decorative piece.
To the left of the entrance, an open-plan living area is designed, with the wall separating the living room from the kitchen to be either partially or fully removed. The kitchen is to be positioned along the far wall, where a French door provides access to the exterior. A peninsula, attached to a supporting column, is intended to create a fluid connection between the kitchen and living space. The TV wall is planned for the 5-meter wall, beginning from the area near the window. For the TV wall, the preferred design is a combination of closed-column storage, open shelving, and horizontal shelves, with a wall-mounted TV positioned on a panel featuring integrated LED lighting.
The sofa should be placed facing the TV, while a dining table with chairs will be positioned in the remaining area of the living room, near the entrance to the open-plan space. The lighting for the living area is to be provided by a suspended ceiling with integrated LED strip lighting, ensuring a clean, modern aesthetic.
Opposite the kitchen entrance, a small utility room (or pantry) is to be included for additional storage. A corridor leads to the other areas of the apartment.
In the master bedroom, the bed will be positioned facing the window. To the left of the bed, a dressing table and mirror will create a functional vanity corner, while to the right, a wardrobe will be integrated into the design. The headboard wall will feature a decorative wallpaper, with pendant lamps suspended over the bedside tables to provide ambient lighting.
We are a family of two adults and two boys (the first is 4 years old, the second will arrive in two months). Our home should also include a space dedicated to work, as the mother is a freelancer who often works from home, and the father works from home on the computer, although much more occasionally.
The height of the ceiling is 2.80 meters.
As for the flooring, we could have either a single floor covering throughout the apartment, or two different finishes: one for the sleeping area (such as parquet/wood effect/etc.) and another for the living area (wood effect/ceramic tile/etc.).