
Messina, Province of Messina, Italy
Residenziale - Appartamento
Descrizione
Salve a tutti, ho un appartamento di 230 mq su 2 livelli con terrazza a livello di 130 mq che vorrei unire in un unico appartamento per mezzo di una scala interna.
Questa sarà la casa nella quale vivrò con la mia famiglia ( 2 adulti ed una bimbetta di 7 anni) mi auguro per molto tempo.
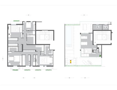
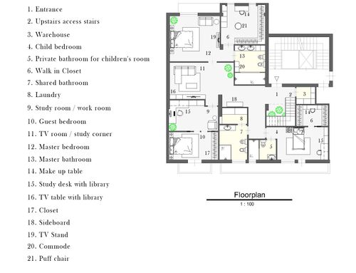
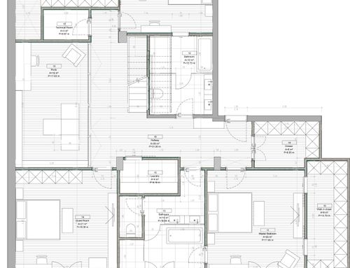
la casa come anticipato è divisa su due livelli ( 3° piano e 4° piano), al 3° piano vorrei realizzare la zona notte, dove ricavare n° 2 camere da letto con relative cabine armadio, n° 2 bagni divisi tra n° 1 per le donne ed n° 1 per me, ed uno studio ed una eventuale piccola camera per gli ospiti "improvvisi", nello spazio rimanente ovviamente andrà ricavata la scala di congiunzione dei due livelli, si avrà, inoltre, la possibilità di allargare il wc1 demolendo il muro di divisione dal rip1 (come indicato in planimetria piano 3°) e chiudendo contestualmente la porta d'ingresso d'accesso al sub 25 ricavando quindi un bagno più grande.
lo spazio rimanente potrebbe essere sfruttato per ricavare una zona (open space) di rappresentanza.
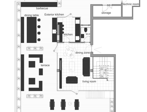
al 4° piano invece vorrei realizzare la zona giorno composta da cucina e zona pranzo/soggiorno, che si affaccia sul terrazzo, oltre ad un bagno al servizio del piano.
Nel terrazzo invece, mi piacerebbe sfruttarlo come zona relax attrezzandolo come zona pranzo nelle belle giornate , inserendo un BBQ e valutando la possibilità di avere una cucina simmetrica a quella interna per portare i fuochi all'esterno, vorrei realizzare anche una lavanderei ed un locale tecnico ed un scala di collegamento al lastrico solare dell'appartamento del 4° piano.
Specifico inoltre che il muro perimetrare del disimpegno (dis.) del 4° piano in realtà non esiste.
Hi everyone, I have a 230 sqm apartment on 2 levels with a 130 sqm terrace level that I would like to combine into a single apartment by means of an internal staircase.
This will be the house in which I will live with my family (2 adults and a 7 year old girl) I hope for a long time.
the house as anticipated is divided on two levels (3rd floor and 4th floor), on the 3rd floor I would like to create the sleeping area, where to obtain n ° 2 bedrooms with relative walk-in closets, n ° 2 bathrooms divided between n ° 1 for women and 1 for me, and a study and a possible small room for "sudden" guests, in the remaining space obviously the connecting staircase of the two levels will be obtained, you will also have the possibility of enlarging the wc1 by demolishing the dividing wall from rip1 (as indicated in the 3rd floor plan) and closing the entrance door to sub 25 at the same time, thus obtaining a larger bathroom.
the remaining space could be used to create a representative area (open space).
on the 4th floor, on the other hand, I would like to create the living area consisting of kitchen and dining / living area, which overlooks the terrace, as well as a bathroom serving the floor.
On the terrace, on the other hand, I would like to use it as a relaxation area equipping it as a dining area on fine days, inserting a BBQ and evaluating the possibility of having a kitchen symmetrical to the internal one to bring the fires outside, I would also like to create a laundry and a technical room and a staircase connecting the flat roof of the 4th floor apartment.
I also specify that the perimeter wall of the hallway (dis.) Of the 4th floor does not actually exist.
Hola a todos, tengo un apartamento de 230 m2 en 2 niveles con un nivel de terraza de 130 m2 que me gustaría combinar en un solo apartamento mediante una escalera interior.
Esta será la casa en la que viviré con mi familia (2 adultos y una niña de 7 años) espero por mucho tiempo.
la casa como se anticipó está dividida en dos niveles (3er piso y 4to piso), en el 3er piso me gustaría crear el área de dormir, donde obtener n ° 2 dormitorios con vestidores relativos, n ° 2 baños divididos entre n ° 1 para mujeres y 1 para mí, y un estudio y una posible habitación pequeña para invitados "repentinos", en el espacio restante obviamente se obtendrá la escalera de conexión de los dos niveles, también tendrá la posibilidad de agrandar el wc1 demoliendo el tabique de rip1 (como se indica en el plano del 3er piso) y al mismo tiempo cerrando la puerta de entrada al sub 25 obteniendo así un baño más grande.
el espacio restante podría usarse para crear un área representativa (espacio abierto).
en el cuarto piso, por otro lado, me gustaría crear la sala de estar que consta de cocina y comedor / sala de estar, que da a la terraza, así como un baño que sirve al piso.
En la terraza, en cambio, me gustaría utilizarla como zona de relax equipándola como zona de comedor en los días de buen tiempo, insertando una barbacoa y valorando la posibilidad de tener una cocina simétrica a la interior para llevar los fuegos al exterior. , También me gustaría crear un cuarto de lavado y una sala técnica. Y una escalera que conecte el techo plano del departamento del 4to piso.
También especifico que el muro perimetral del pasillo (dis.) Del 4º piso no existe realmente.