66054 Vasto, Province of Chieti, Italy
Residenziale - Appartamento
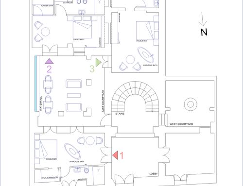
Descrizione
ITALIAN:
Buongiorno a tutti, ho un appartamento al centro storico facente parte di un palazzo storico di inizi 800. L'appartamente al piano terra consiste in 3 vani (Vano 7 and Vano 10 in the pdf file, di circa 25mq cadauno) che si affacciano su una corte interna. la disposizione dell'immobile rimane come da planimetria e non sono previste modifiche sulla struttura esistente, essendo tutti muri portanti. l'immobile e' attualmente sgombro e la mia idea sarebbe di arredarlo in maniera minimal e affittare per affitti brevi. In ogni stanza sara' necessario creare un bagno privato, L'idea sarebbe quella di fare una juniuor suite (es. vasca idromassaggio/jacuzzi per due persone e/o doccia comoda o altre soluzioni) in almeno una delle 3 stanze. La corte fa parte dell'area comune degli affituari, l'idea sarebbe quella di fare anche una parete verde e/o con giochi di acqua.
ENGLISH:
Hello everyone, I have an apartment in the historic center which is part of a historic building from the early 19th century. The apartment consists of 3 rooms in the basement (Piano Terra) (Vano7 and Vano 10 om the pdf file, each of about 25sqm) overlooking an internal courtyard. the layout of the property remains as per the plan and no changes are planned on the existing structure, as all are load-bearing walls. the property is currently empty and my idea would be to furnish it in a minimal way and rent for short term rentals. In each room it will be necessary to create a private bathroom. The idea would be to create a junior suite (eg whirlpool / jacuzzi for two people and / or comfortable shower or other solutions) in at least one of the 3 rooms. The courtyard is part of the common area of the tenants, the idea would be to also make a green wall and / or with water games.
SPA
Buenos días a todos, tengo un apartamento en el centro histórico que forma parte de un edificio histórico de principios del siglo XIX. El apartamento consta de 3 habitaciones (de unos 25 metros cuadrados cada una, Vano 7 and Vano 10 in the pdf file) que dan a un patio interior. La distribución del edificio se mantiene según el plano y no se prevé ningún cambio en la estructura existente, ya que todos los muros son de carga. En cada habitación será necesario crear un baño privado, la idea sería hacer una suite junior (por ejemplo, hidromasaje/jacuzzi para dos personas y/o una ducha cómoda u otras soluciones) en al menos una de las 3 habitaciones. El patio forma parte de la zona común de los inquilinos, la idea sería hacer también un muro verde y/o con elementos de agua.