
Silanus, NU, Italia
Residenziale - Appartamento
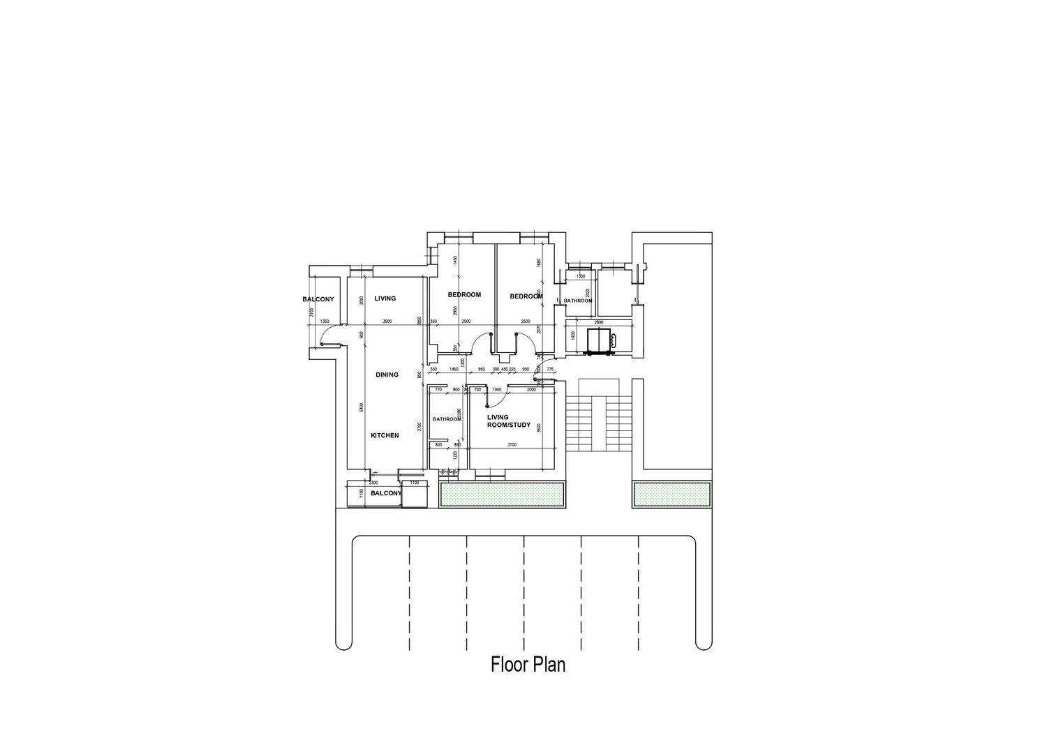
ect is more than just a renovation...it’s about giving fresh life to a classic 50s apartment, turning it into a warm, functional, and modern home. It all started with a desire for more privacy and comfort, so the bedrooms were moved to the peaceful north side, while the living areas to south for more natural sunlight.
The balcony became part of the new kitchen, with sliding glass doors that open up the space and make it feel larger. Every little detail was Designed with care: welcoming Livingroom ,Calm Brighter Bedrooms, a kitchen with touches of wood and glass, and a cozy color palette that avoids harsh tones like black, red, or grey—so everything feels fresh and welcoming.
Now the atmosphere is soft, calm, and filled with light. Natural brightness in every corner and the combination of light surfaces and warm textures creates a familiar vibe.
The design blends simplicity with character..beauty meets everyday practicality. It’s a space made to be enjoyed, built for real life and filled with quiet comfort in every corner.