
80059 Torre del Greco, Metropolitan City of Naples, Italy
Residenziale - Appartamento
Descrizione
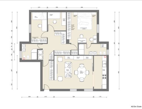
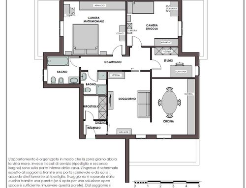
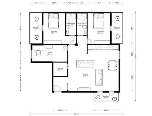
Vorrei ricavare 2 camere da letto e una zona ripostiglio, 2 bagni e uno spazio per lavorare o per la DAD. é importante che dall'ingresso vi sia un filtro visivo verso la zona living. Tenere conto degli arredi già disponibili ed unire elementi classici con elementi moderni di design in un contenitore che tenga conto del contesto che lo circonda e delle viste esterne nella disposizione degli spazi. é molto importante che vi siano le distanze per posizionare gli arredi come da allegato.
vi rimando alle coordinate su maps: https://goo.gl/maps/NLu45AoPyKoJ9jaZ7
immagini di riferimento: https://www.houzz.it/ideabooks/103026446/list/idee-di-luigi-cristo
ENG
I would like to create 2 bedrooms and a storage area, 2 bathrooms and a space to work or for the DAD. It is important that from the entrance there is a visual filter towards the living area. Take into account the furnishings already available and combine classic elements with modern design elements in a container that takes into account the context that surrounds it and the external views in the layout of the spaces. it is very important that there are distances to position the furniture as per attachment.
I refer you to the coordinates on maps: https://goo.gl/maps/NLu45AoPyKoJ9jaZ7
SPA
Me gustaría obtener 2 dormitorios y un área de almacenamiento, 2 baños y un espacio para trabajar o para el DAD. Es importante que desde la entrada haya un filtro visual hacia la zona de estar. Ten en cuenta el mobiliario ya disponible y combina elementos clásicos con elementos de diseño moderno en un contenedor que tiene en cuenta el contexto que lo rodea y las vistas externas en la disposición de los espacios. Es muy importante que existan distancias para colocar los muebles según el accesorio.
Os remito a las coordenadas en maps: https://goo.gl/maps/NLu45AoPyKoJ9jaZ7