🔥 CYBER MONDAY 24H: -60% su tutti i prezzi del sito! Solo fino a mezzanotte. Usa il codice CYBERMONDAY25 👉🏼
home / concorsi / apartment in the mountains
img

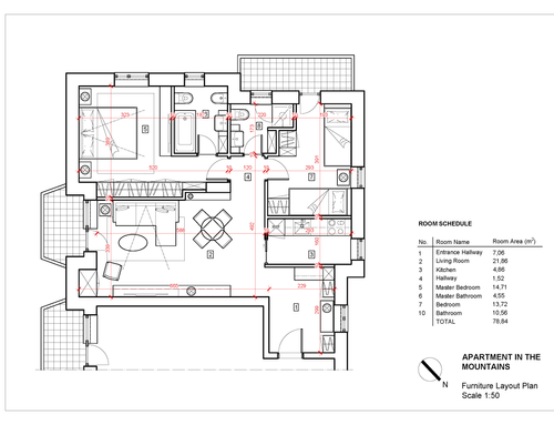
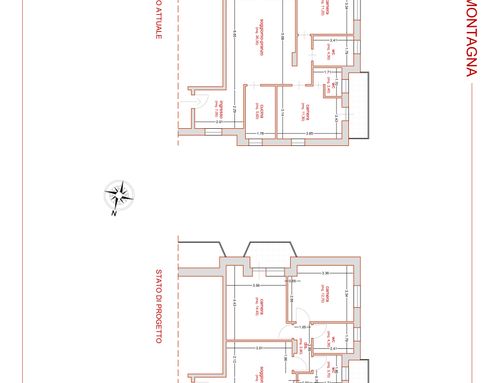
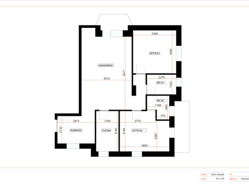
apartment in the mountains

Sauze d'Oulx, TO, Italia

Residenziale - Appartamento

  • 1° Posto € 126
  • 2° Posto € 42
  • 3° Posto € 21
  • 4° Posto € 11
  • 5° Posto € 11