
Florence, Metropolitan City of Florence, Italy
Residenziale - Appartamento
Descrizione
DESCRIZIONE IN ITALIANO RIPORTATA SOTTO
BUILDING:
this apartment is located in Florence (Italy) and comes from a 14th century building, probably the base of an ancient tower. It is located in front of a garden.
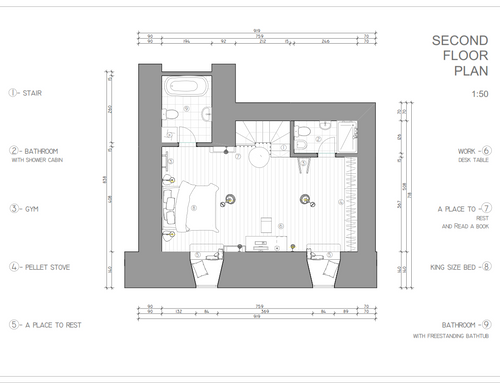
PLANT:
current layout is a sort of open space loft with ground floor of 35m2 (kitchen and living room). Old and ugly stairs (I would like to modify their design) bring to the upper floor where there are two bathrooms connected through a balcony. The upper floor is supported by a steel frame structure (pillars and beams, self alone standing) that were built in past in order to extend the entire surface of the upper floor. I would like to use this solution too, in order to maximize the entire surface of the upper floor. Each floor has 2,7 m high ceiling.
STYLE:
I have in mind a modern minimal style mixed to old elements (stoned wall, bricks ceiling at first floor), with a touch of industrial design (steel beams supporting the upper floor). I like colors that are suited to a young single man and good for enjoying relaxation (reading, listening music).
DESIGN INPUT:
I would like to locate the kitchen on the left side (looking from the entrance) at ground floor. Kitchen will preferably minimal, with minimal hanging cabinet (or none at all). I would rather prefer a visible exhaust ventilation cowl, centered on the kitchen wall. On the right side of ground floor open space I would like to recreate a living space with couch, furniture, hi-fi, video-projector, library.
I would like to re-design the stairs improving their aspect and functionality. At the moment the space under the stairs is used for a small toilette at ground floor: i would rather prefer to get rid of this toilette and use this space in other ways (small store for food? library? desk? hi-fi console?).
At first floor I would like to maintain a king size bed and some space for living and relaxing (some ideas: desk for my iMAC; informal couch). Previous project (visible in pictures) shows presence of 2 bedrooms at first floor. I would rather prefer an open space with 1 bed only.
I am looking forward to receive ideas that allows optimizing functionality of this small space (there are several corners that might be used for different purposes. i.e.: the big room available below the windows might be deepened and used to design a sofa on the wall, a storage for wine bottles, or a sort of small table bar for having a drink with a friend).
Bathrooms are not the main purpose of this project.
LIGHT:
This apartment doesn't have lot of natural light: need a solution that improves lightening for different kind of atmospheres (day lightening, evening/night lightening).
FINISHING:
For what concerns floor tiles i would avoid parquet at ground floor but i'd like to use it at first floor. Finishing shall be aligned to a modern minimal style with touch of industrial inspiration. I would like to leave the left wall at ground floor with stones (kitchen side), while I am thinking about a painted wall on the right side (living room).
---------------------------------------
ITALIAN
EDIFICIO:
l’appartmento si trova a Firenze e fa parte di una villa storica risalente al 1300. L’appartamento in questione ha le caratteristiche tipiche di una torre e si affaccia direttamente su un ampio spazio verde.
PIANTINA:
la pianta ufficiale di questo appartamento corrisponde ad un loft open space, con una superficie al piano terreno di circa 35 mq (dove si trovano cucina e spazio living). Le scale portano al primo piano dove il progetto ufficiale prevede due bagni collegati da un ballatoio. Il primo piano (bagno e ballatoio) sono supportati da una struttura autoportante di travi in acciaio che fu costruita nel progetto originario con lo scopo di estendere la superficie del primo piano oltre il ballatoio, fino alla parete dove sono posizionate le finestre. Mi piacerebbe sfruttare questa soluzione in modo da massimizzare l’utilizzo dell’intera superficie del primo piano. Entrambi i piani (terra e primo) hanno una altezza a soffitto di 2.7 m.
STILE:
Ho in mente uno stile moderno minimalista in cui si intersechino elementi della struttura orginaria (parete in pietra, soffitto a mattoncini), con un tocco di design industriale (travi in acciaio che supportano il soppalco). Sono orientato ad una gamma colori che sia adatta una un giovane uomo single e che crei un ambiente confortevole durante i momenti di relax(letture, ascolto di musica).
INDICAZIONI DI PROGETTAZIONE:
Vorrei posizionare la cucina sul lato sinistro del piano inferiore (lato sinistro guardando dall’ingresso). La cucina dovrà avere linee pulite che nascondano gli elementi tipici della cucina e la rendano più somigliante ad un mobile salotto. Vorrei evitare il più possibile la presenza di pensili sospesi e magari utilizzare una cappa a vista centrata sulla parete. Sul lato destro del piano terra vorrei ricreare uno spazio living con divano, mobile, posto per uno stereo, libreria e magari individuare una parete dovre proiettare il video (vorrei evitare l’utilizzo della TV).
Vorrei ridisegnare completamente le scale, creando una struttura esteticamente rilevante e funzionale. Al momento, lo spazio sottoscala è utilizzato per un bagno di servizio che non sono interessato a mantenere. Preferirei invece sfruttare lo spazio sotto scala per altre finalità : stanzino chiuso da utilizzare come dispensa per cibo; libreria; scrivania; console per stereo).
Al primo piano vorrei mantenere un unico spazio con una letto matrimoniale e uno spazio living per relax (alcune idee: scrivania con PC, divanetto informale). Rispetto alla realizzazione esistente (visibile nelle foto) che presenta 2 camere al piano di sopra, preferirei avere uno spazio unico ed un solo letto matrimoniale.
Mi piacerebbe ricevere idee interessanti per massimizzare l’utilizzo degli spazi disponibili all’interno di questo spazio non convenzionale (esempio: lo spessore delle pareti consente di sfruttare il volume sotto le finestre per ricavare dei divanetti, una cantinetta vini, oppure nella zona cucina una piccolo bancone dove prendere un aperitivo).
Al momento i bagni non sono l’elemento centrale della ristrutturazione.
LUCI:
l’illuminazione dell’appartamento non è ottimale, pertanto vorrei ricevere idee che aiutino a migliorare l’effento illuminante nel suo insieme e che consentano differenti atmosfere di luce (diurna e luce di atmosfera serale).
FINITURE:
al piano terreno sono orientato ad utilizzare gress porcellanato, mentre al primo piano preferirei parquet. Le finitire dovranno essere preferibilmente allineate ad uno stile moderno minimalista con tocco di ispirazione industriale. Vorrei mantenere la pietra originaria sulla parete di sinistra a piano terra (lato cucina), mentre sto pensando di ripristinare l’intonaco sulla parete a destra (lato salotto).